Znamení čtyř - architekti - Bytový dům Sámova
 
                                
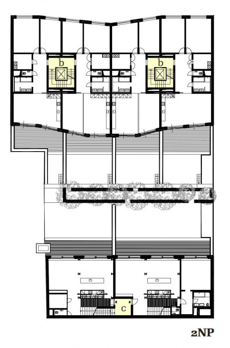
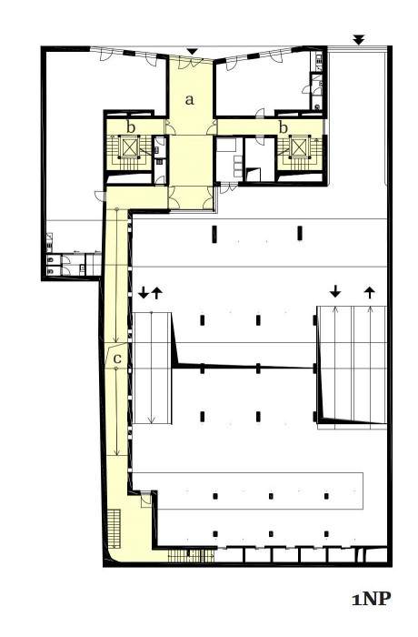
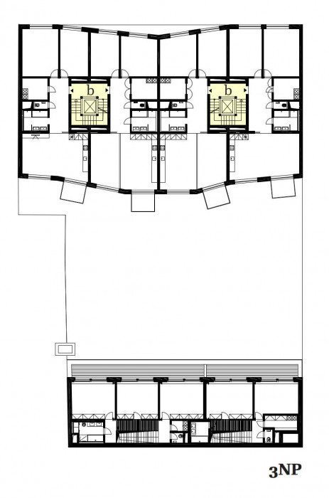
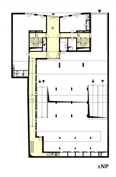
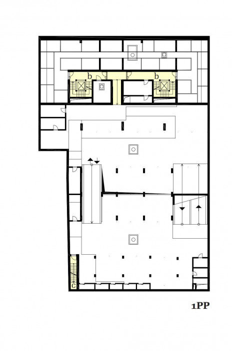
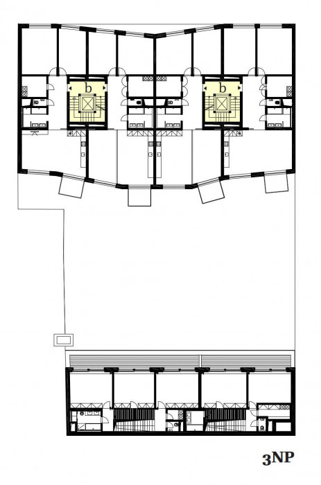
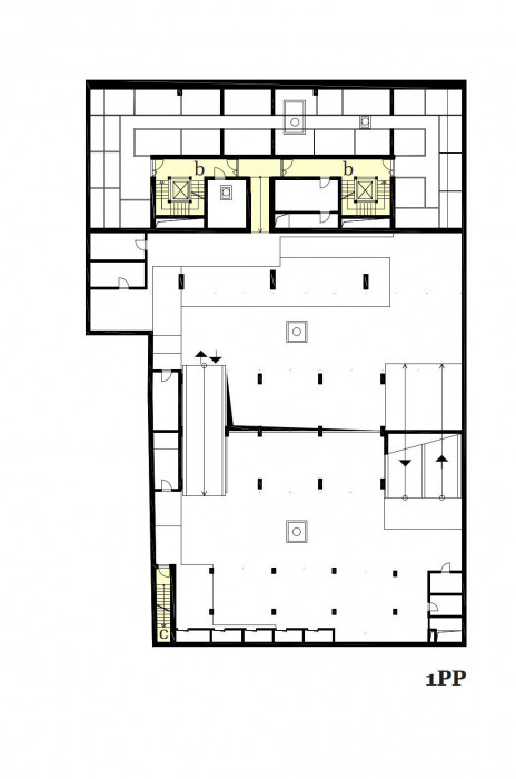
                                V široké proluce po bývalé tiskárně je umístěn bytový dům s jedním středovým vstupem obklopeným obchodním parterem a parkovacím suterénem. Stavba vyplňuje, stejně jako stavba původní, beze zbytku celý pozemek. Sestává z hlavní uliční budovy a dvorní vestavby na společném soklu/suterénu.
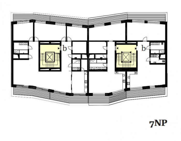
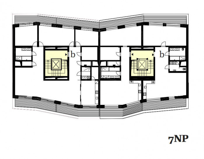
Každá ze dvou vertikálních komunikací uliční budovy obsluhuje dva velkorysé, klasicky příčně orientované byty na podlaží. Parkovací vícepodlažní suterén je polorampový. Koncept návrhu zachovává jednotu stavby s centrálním vstupem, analogicky s protějším bytovým domem z poloviny 20. století. Jednoduchý objem stavby je ale nepatrně ve středu prolomen, ustoupen. Do strohé ulice vnáší oživení.
Motiv inspirovaný stavbou Florin Court je dále rozvíjen na keramickém obkladu uliční fasády a na zámečnických výrobcích v interieru. Dvorní vestavba atelierových mezonetů odkazuje na tradiční drobné dřevěné stavby v zeleni vnitrobloků. Uliční fasáda je založena na okenní mřížce, opticky rozhýbané ve vodorovném směru.
Okna v krajích – navazující na sousední fasády – mají výraznější členění a vodorovnější proporci. Originálním principem fasády je použití keramického obkladu odkazující na meziválečnou modernu. Spárořez kachlíků 100 x 100 milimetru je zvolen diagonálně, barevná skladba zvýrazňuje horizontální linku a potlačuje vertikální směr.
- Ateliér: ZNAMENÍ ČTYŘ – ARCHITEKTI
- Země: Česká republika
- Město: Praha - Vršovice
- Datum projektu: 2010
- Realizace: 2020
Související projekty
Související ateliéry a firmy
Mohlo by vás zajímat
 
				 
				 
				 
				 
				 
				 
				 
				 
				 
				 
				 
				 
				 
				 
				 
				 
				 
				 
				 
				 
				 
				 
				 
				 
				 
				 
				 
				 
				 
				 
				 
				 
                             
                             
                             
                             
                             
                                 
                             
                             
                             
                             
                             
                             
                             
                             
                             
                             
                             
                             
                             
                             
                             
                             
                             
                             
                             
                             
                             
                             
                             
                             
                             
                     
                     
                     
             
            		 
            		 
            		 
            		 
            		 
                                                                                                             
                                                         
                                                         
                                                                                                             
                                                         
                                                         
                    