Znamení čtyř - architekti - Horská chata Krkonoše

Naší primární snahou jako autorů projektu a architektonické koncepce domu bylo navrhnout místo původní zchátralé horské chaty takovou stavbu, která by byla nejen kvalitní stavbou /architekturou/, ale byla i součástí přírodního prostředí a pozitivním způsobem spoluvytvářela „genia loci“. Přestože prvotním impulsem bylo zadání stavebníka realizovat vizuálně, technologicky a typologicky soudobý objekt nebylo možno nevnímat silný tradicionalistický prvek shodný pro kvalitní stavby v okolí tvořící typický charakter „krkonošské architektury“ jakousi cennou lokální značku, jenž je hodnotou, která se vytvářela v průběhu celého stavebního vývoje Krkonoš. Je to obdobný princip jaký se vyskytuje obecně u horských staveb zakarpatských nebo alpských.
Zároveň silně vnímáme některé příklady současných realizací v oblasti, které mnohdy na tuto estetiku zcela záměrně, v touze o čistě soudobý vzhled, rezignují. A přestože se v řadě případů nejedná o vysloveně špatné stavby, tak mnohdy působí nepatřičným dojmem a jsou zcela vytržené z kontextu. Naší snahou tedy bylo se inspirovat v tradiční architektuře /potažmo v původní podobě stávající chaty dle archivních plánů/ a pokusit se pouze pomocí lehkého posunu významu a tvarosloví identifikovat navrhovanou stavbu se současností 21. století. Tedy jakousi parafrázi na miesovské „méně je více...“
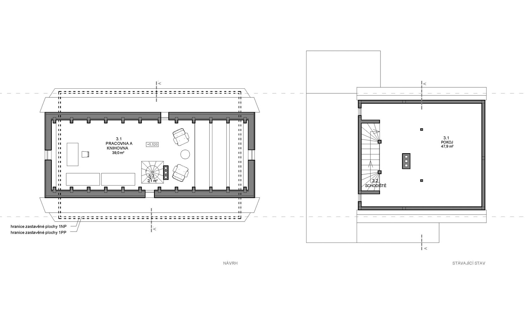
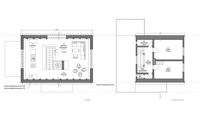
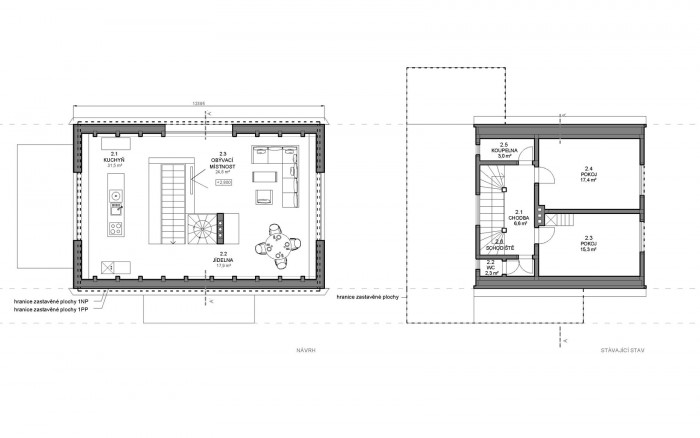
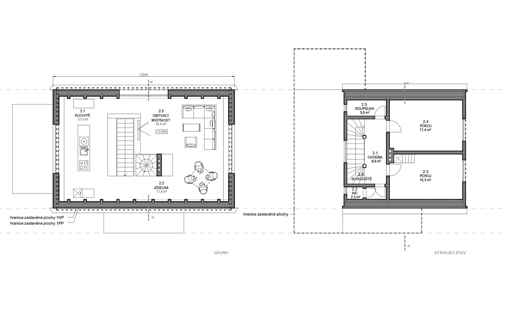
Nedílnou součástí typologie a tvarosloví tradičních staveb je promítnutí funkce jednotlivých částí domu do vnějšího vzhledu /funkční morfologie/. Společenské místnosti /kuchyně, obytné místnosti, jídelny/ jsou v přízemí tématizovány četnými okenními otvory s největším rozměrem. V horních patrech /povětšinou půdách a mansardách/ jsou umístěny ložnice prosvětlené menšími okny ve štítech, nebo střešními vikýři. Celkový vzhled doplňují malá technická okna v kamenné podezdívce.
Zde jsme se pokusili uplatnit výše uvedený přístup /typologická změna tradičních principů/ právě v typologickém posunu, kde hlavní společenská místnost – navíc s otevřeným mezonetem - je situována v patře a otevřená do krovu. Což se analogicky s tradičními postupy projevilo zvětšenými okenními otvory právě v patře a menšími okny v parteru.
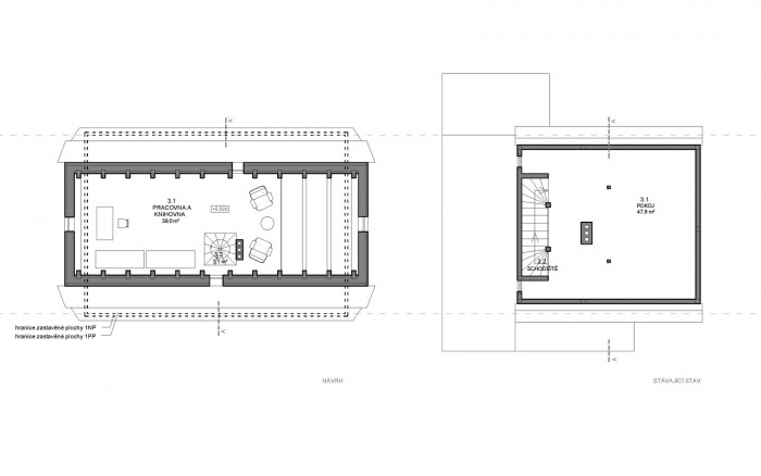
Interiér navržené stavby pak maximálně využívá konstrukčních výhod dřevěných lepených nosníků použitých na konstrukci celého střešního mansardového pláště. Absence podpor umožnila prostor mansardy v části otevřít na celou výšku čímž se získalo nečekaně nové měřítko stavby v porovnání s jejími vnějšími skromnými rozměry. Takto koncipovaný otevřený obytný prostor navíc umožňuje nerušený výhled do všech stran a i přes umístnění prostoru v patře zprostředkovává výjimečné propojení s okolím.
Vnější vzhled stavby je, jak již bylo řešeno výše, záměrně inspirován původní krkonošskou architekturou, ale tématizuje i prvky solitérní horské architektury – horské boudy s dominantní převýšenou hmotou střechy nad dřevěnou „podnoží“, kamennou podezdívkou a tradičním dřevěným obkladem ve štítu. Krkonošské štíty bývají často stupňovitě předsazené nad vstupním podlaží. Návrh tento motiv využívá a proměňuje ve stupňovité vychýlení štítové stěny směrem ven, takže hřeben střechy je viditelně delší než délka stavby u její základny. Toto řešení má i praktický význam, neboť lépe ochraňuje dřevěný obklad štítů proti povětrnostním vlivům a prodlužuje životnost dřevěného materiálu. Je to v našem pojetí přímý odkaz k soudobé architektuře používající často prvky astatičnosti a vychylování hmoty staveb nad jejich půdorys.
V površích fasád návrh důsledně používá přírodní materiály, které časem patinují, čímž dochází k procesu „pozitivního stárnutí“ obdobně jako u tradiční zástavby.
Průčelní stěna - štít horské boudy je široký, a má tři okenní osy. Při malé výšce stropu a pečlivém umístění v terénu působí stavba jako by byly vrostlá do okolního terénu a hlavní pozornost na sebe poutá mansardová střecha původního tvaru. Ve štítu je v jeho horní části umístěno kosočtvercové okno jako analogický odkaz na tradiční architekturu, která často podobným způsobem řešila spíše dekorativně větrací otvory v horních partiích štítů.
Charakteristickými barevnými odstíny jsou odstíny hnědé a šedé. Návrh se důsledně vyhýbá nevhodné barevnosti charakteristické pro některé nové stavby v lokalitě. Zejména pak kontrastní kombinaci bílé omítky a na tmavě hnědo mořenými dřevěnými obklady.
Pro navržený dům je charakteristická kombinace dřeva s lomovým kamenem. Obkladové dřevěné prvky jsou z cedru, nosné prvky jako trámy a sloupy jsou z lepeného smrku opatřeného měděnou lazurou. Dvoupodlažní sokl domu je obložen masivními 15cm tlustými žulovými štípanými kvádry. Jako střešní krytina byl navržen měděný plech v s vějířovitě rozmístěným falcem k posílení efektu směrem vzhůru se rozšiřující hmoty. Okna jsou z masivních lepených dubových profilů opatřených olejovou lazurou.
- Autoři: Martin Tycar, Juraj Matula, Richard Sidej
- Ateliér: ZNAMENÍ ČTYŘ – ARCHITEKTI
- Země: Česká republika
- Město: Špindlerův Mlýn
- Datum projektu: 2006
- Realizace: 2015
Související projekty
Související architekti
Související ateliéry a firmy
Mohlo by vás zajímat
























