Ministerstvo kultury posvětilo rekonverzi Domu Radost. Jak se funkcionalistická budova změní?
Jedna z nejhodnotnějších funkcionalistických památek v Praze má projít celkovou rekonverzí. Kromě nových stavebních zásahů se změní také funkce dnes převážně administrativní budovy – vzniknou v ní stovky malých nájemních bytů, kulturní sál, lázně a další služby. Spory památkářů nyní ukončilo ministerstvo kultury, které dalo návrhu zelenou.
EARCH.CZ , 23. 8. 2022
Bývalou budovu Všeobecného penzijního ústavu ze 30. let minulého století vlastnili posledních takřka 70 let odbory. V roce 2018 ale změnila majitele, kterými je dnes rodina Valových, zakladatelé společnosti SIKO. Následně došlo k přejmenování budovy na Dům Radost a představení plánu na její celkovou proměnu.
Funkcionalistická budova se těší značné pozornosti odborníků, kulturní památkou byla prohlášena už roku 1958, tedy pouhých 24 let po jejím dokončení avantgardními architekty Josefem Havlíčkem a Karlem Honzíkem. To je také důvod, proč část památkářů i odborné veřejnosti zpozorněla, když byl ohlášen projekt její rekonverze.
Více k tématu
Odbor památkové péče Magistrátu hlavního města Prahy návrh vypracovaný společností QARTA Architektura schválil, proti se však postavil Národní památkový ústav, kterému vadily především zamýšlené nástavby některých křídel a dostavby dvorů a obrátil se proto na ministerstvo kultury. To však dalo v červenci zapravdu magistrátním památkářům, takže z pohledu památkové péče byl projekt schválen a čeká už jen na územní rozhodnutí.

Po rekonverzi má v budově vzniknout kolem 600 malých nájemních bytů – polovina z nich by měla sloužit studentům a studentkám, neboť vedle Domu Radost sídlí Vysoká škola ekonomická. Byty mají být v režimu co-living, takže obyvatelé budou sdílet určité služby. Malometrážní jednotky bude možné také slučovat a vytvářet tak různé prostorové varianty. Kromě toho stavba pojme také další služby, jako je restaurace, kavárna, coworkingové prostory nebo obchody.
Jak se má cenná funkcionalistická stavba proměnit? „Základním východiskem revitalizace objektu je koncept propojení domu s okolím, jehož záměrem je mimo jiné vytvoření funkčního veřejného prostoru, kterého se (nejen) v této lokalitě nedostává a pro který bude budova Radosti multifunkčním zázemím,“ uvádí studio QARTA Architektura, které za návrhem proměny funkcionalistické památky stojí.

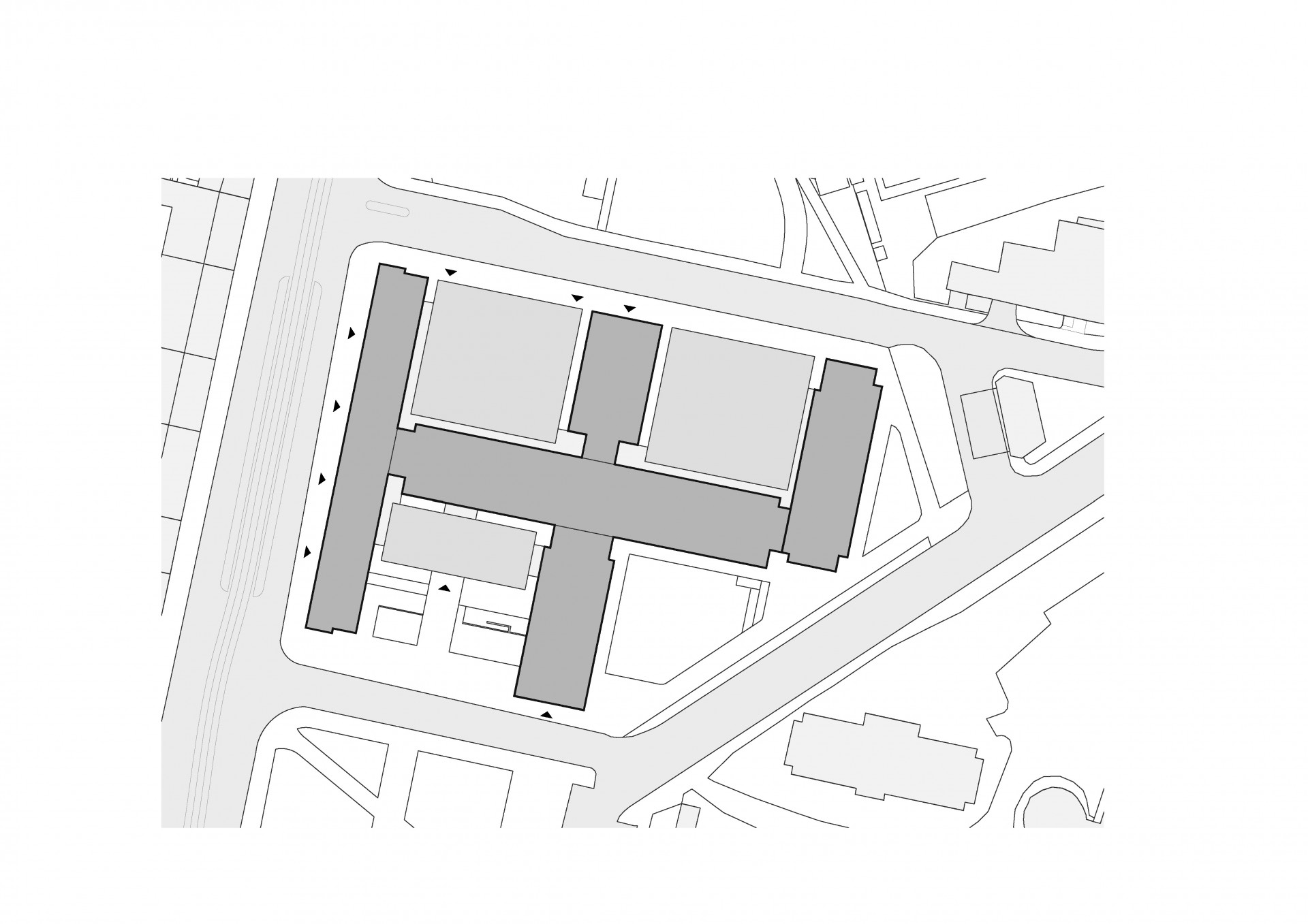
Nové přístavby a nástavby mají být viditelně odlišené. „Rekonstrukce a celková revitalizace respektuje a reflektuje významnou památku moderní architektury také v implementaci nových vrstev. Nové vrstvy se od stávajících vrstev formálně odlišují a budovu aktualizují pro potřeby dneška a dalších mnoha desetiletí,“ zdůrazňují architekti, kteří po jednání s památkáři upustili například od navrhovaných střešních pergol.
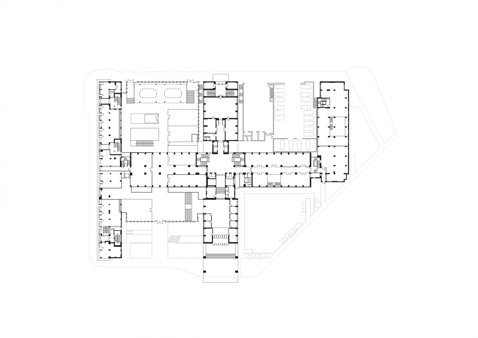
Vestavby do dvorů vymezených křížovým půdorysem Domu Radost pak budou pod úrovní vstupního podlaží obsahovat velkokapacitní multifunkční kulturní sál, fitness i lázně. Nové objemy ve dvorech mají mít fasádu z výtvarně pojatých skel. Účelem vestaveb je také větší otevření budovy vůči svému okolí a propojení jejích jednotlivých částí.

Co se týče změny interiérů, hodnotné původní prvky mají být zachovány. „V interiérech zůstávají zachovány historicky významné prostory a prvky, jako je kino Přítomnost, reprezentativní prostory zasedacích sálů a jejich předprostor s objekty telefonních budek, dále schodiště, zábradlí a související prvky. Celkově pak zůstávají v intaktní formě v součtu zachována celá dvě patra,“ upřesňují autoři návrhu.
Více o architektonickém návrhu se dozvíte zde.