
Architekt z ateliéru a3um si postavil praktický dům na míru svažitému pozemku
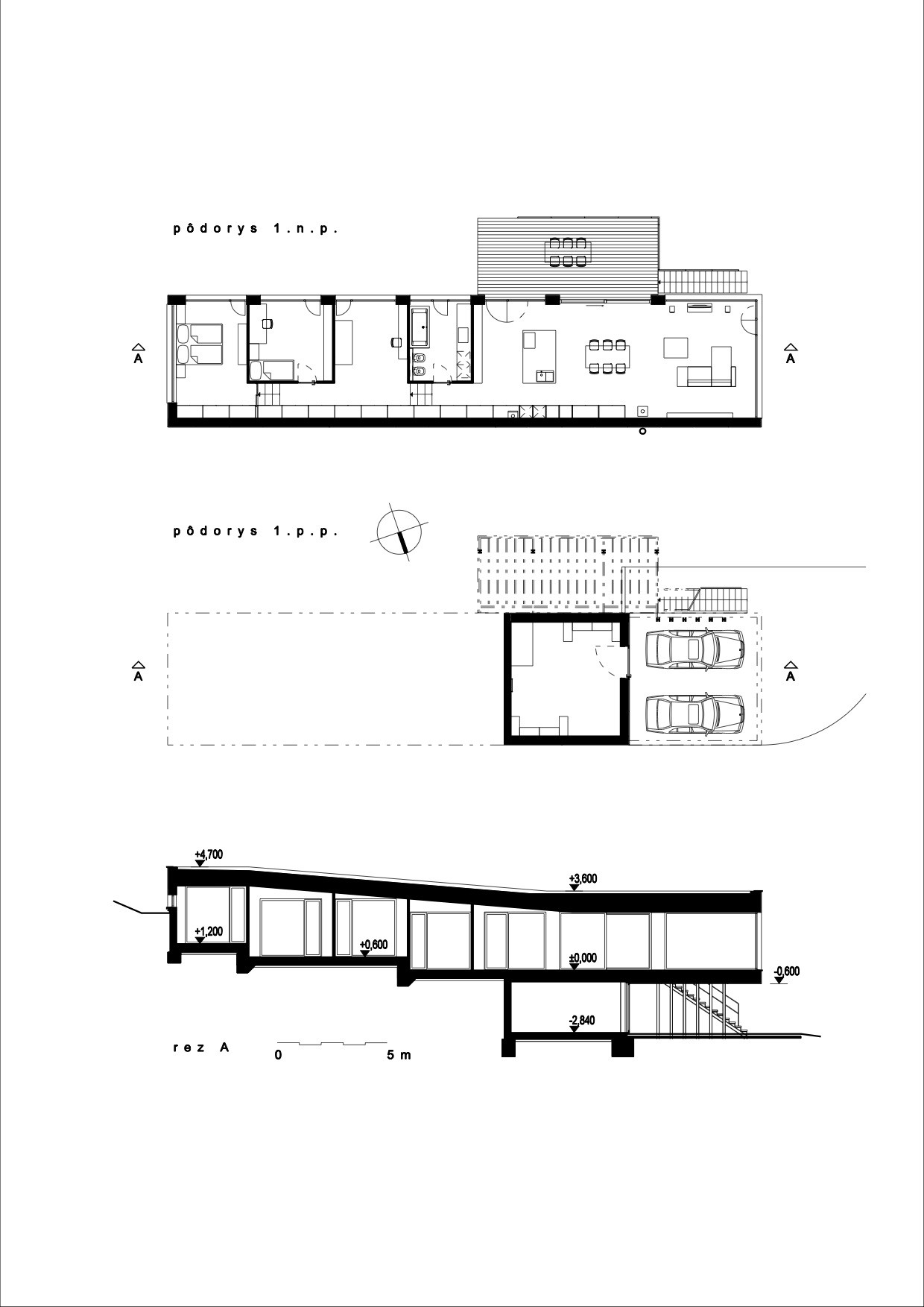
Krásný, ale zároveň komplikovaný pozemek v nejvýchodnějším rakouském městě Hainburg an der Donau si vybral pro stavbu svého rodinného domu jeden ze dvojice architektů z bratislavského ateliéru a3um. Svažitá parcela navazuje přímo na les a nabízí výhled na řeku Dunaj. Tvar domu reaguje na sklon a tvar pozemku - půdorysné řešení stavby se snaží minimalizovat nutné zásahy do terénu, na který dům navazuje zelenou střechou. Prakticky využitý prostor interiéru tvořený výhradně pohledovým betonem a dřevem vylučuje veškeré nadbytečné plochy, parkovací stání zastřešuje vykonzolovaná obytná místnost. Praktičnost ovládla celý koncept stavby.
a3um ateliér , 1. 10. 2018
- Autoři: Henrich Korec, Ladislav Jurík
- Ateliér: a3um ateliér, a3um ateliér
- Země: Rakousko
- Město: Hainburg an der Donau
- Datum projektu: 2015
- Realizace: 2017
- Zastavěná plocha: 162.00m2
- Plocha pozemku: 1 200.00m2