Architektura / administrativní stavby

Britské kanceláře ze slámy a konopí

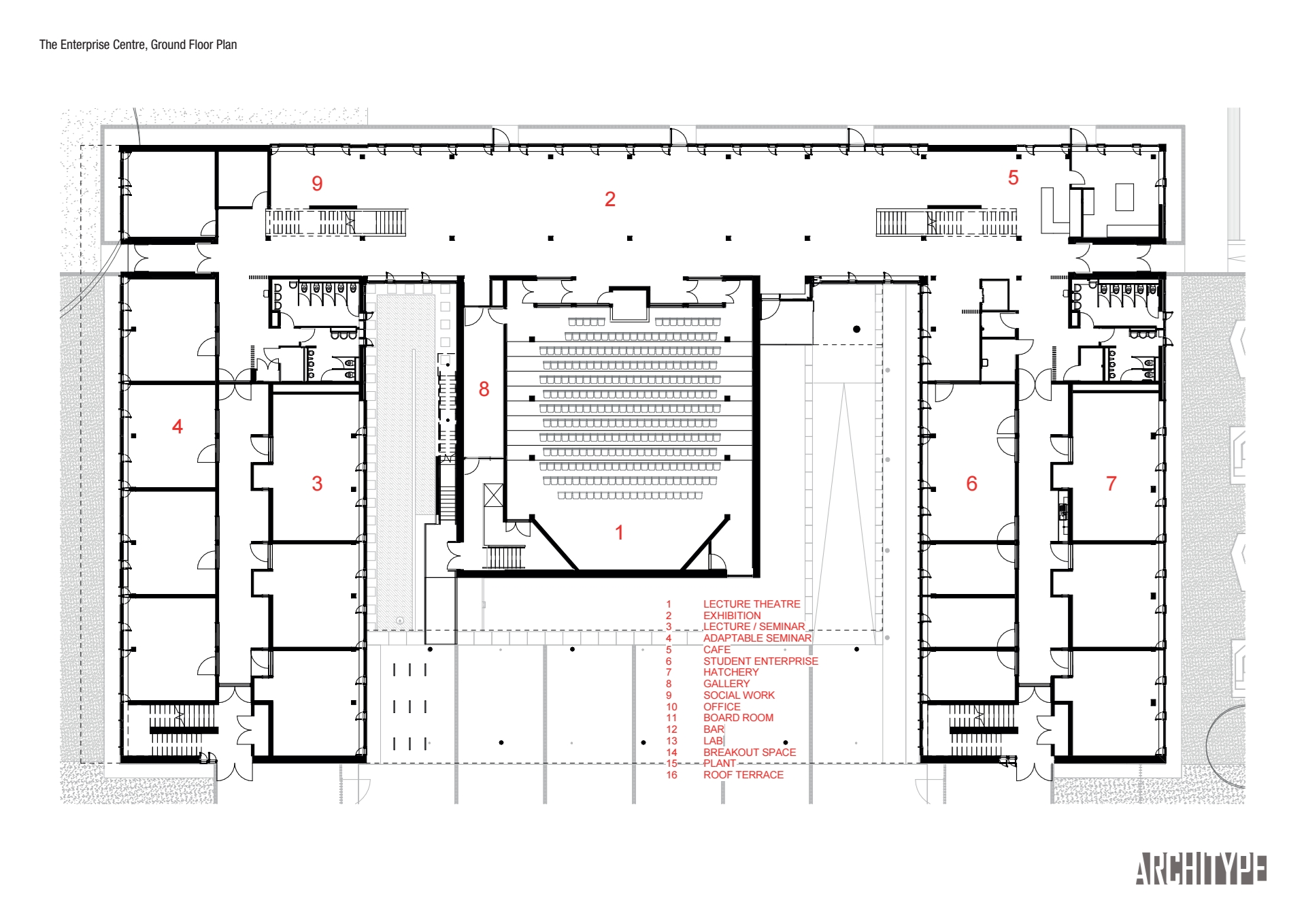
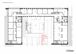
Ambiciózní projekt, The Enterprise Centre, je první kancelářskou budovou ve Velké Británii v pasivním standardu. Vyžívá lokální materiály s nízkou uhlíkovou stopou, které přizpůsobuje současným potřebám. Na cestě od idey k realizaci se toho architekti i firmy naučili tolik, že je tento proces stejně důležitý, jako konečný výsledek. Nejen proto se ale projekt dostal do výběru britské architektonické soutěže RIBA National Awards 2017.

EARCH.CZ , 19. 10. 2017

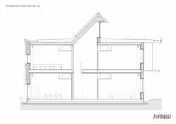
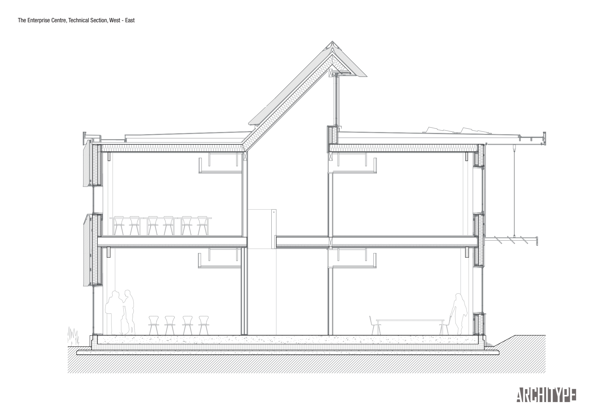
Vzhledem k množství materiálů, které byly na stavbě použity, by se dalo očekávat, že vznikne nepřehledný kompoziční mix bez estetické hodnoty. To se ale naštěstí nestalo, architektonickému studiu Architype se podařilo udržet materiály pod kontrolou. Každý má své přesné místo s ohledem na jeho vlastnosti, funkci a estetické hodnoty. Výzkum a experimenty dovolily místo klasických dřevěných konstrukcí použít kazetový systém se slámou. Známé historické došky se tak ze střechy dostaly na fasádu.

Rozložení budov je přehledné, návštěvník se v něm orientuj stejně tak snadno jako pracovník Univeristy of East Anglie, která v této budově také sídlí. Interiér stavby je vyplněn materiály bez toxinů. V patře se také nachází prostorná vyhlídka, ze které je otevřeným prostorem vidět na různá pracovní místa a jiné kanceláře. Každá část budovy je zpracována různě, jedna využívá povrchových materiálů z konopí, rákosu nebo jílu, jiná zase z netkaného textilu. Budova je ve využívání udržitelných materiálů průkopníkem. Je inspirujícím místem pro práci a dobrým příkladem pro další klienty, kterým záleží na životním prostředí.

  • Ateliér: Architype
  • Země: Vanuatu
  • Realizace: 2016
  • Realizace: 2016
  • autor: EARCH.CZ *
  • publikováno: * 19. 10. 2017
  • zdroj: * Riba Awards

Mohlo by vás zajímat

Generální partner
Hlavní partneři