
Bydlení ve skříni
Modulární architektura je v celé Latinské Americe velmi populární. Umožňuje totiž velmi rychlou výstavbu při zachování nízkých nákladů. Není překvapením, že pro projekt bytového domu na předměstí Buenos Aires zvolili architekti z IR arquitectura právě modulární řešení.
IR arquitectura , 18. 1. 2017
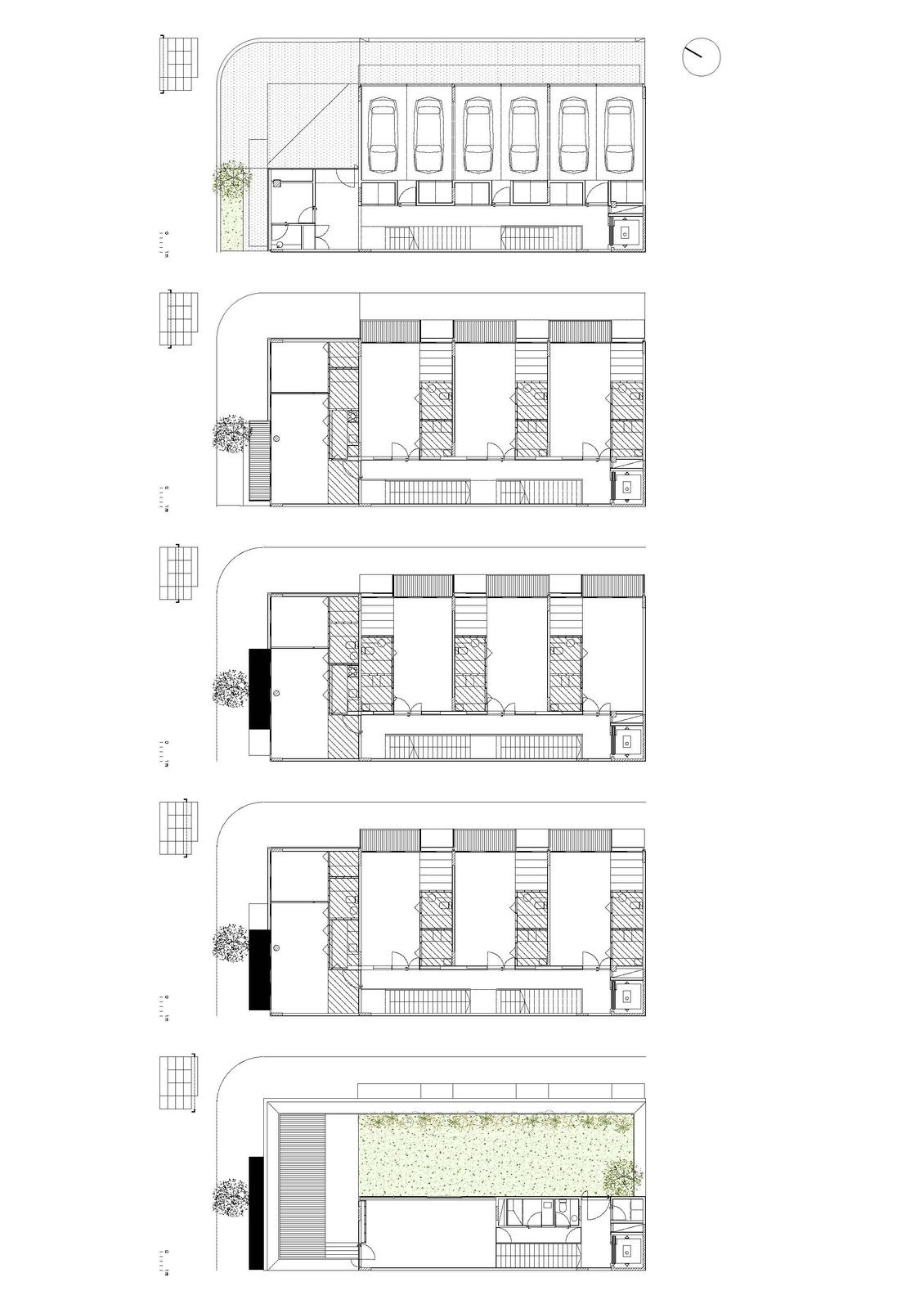
Dům na rohu ulic Ariac a Quintana nabízí 12 bytových jednotek. Jeho princip vychází z modulární struktury, jež byla zvolena pro svou flexibilitu a snadnou výstavbu. Na každém patře se nachází tři byty. Jednotlivé prostory v bytech (koupelna, kuchyně, sklad, skříň, záchod i ložnice) jsou rozděleny a organizovány jako jednotlivé části ve skříni – kousky, jež se napojují na celkový prostor bytu. Specifické řešení se snaží plně využít výšky stropu tři metry. Dostatečnou výškou prostoru je zajištěna příjemná cirkulace vzduchu v těch nejdůležitějších místech. Každé patro doplňuje čtvrtá jednotka větších rozměrů, jež je koncipována obdobným systémem. I zde dochází k rozdělení užitných zón jako ve skříni, což umožňuje plně využít prostor s nejlepším výhledem a charakterem.
Fasádu domu využívá přirozený koloběh a není nutné ji výrazně uživatelsky kontrolovat. Fasády reflektuje modulární uspořádání uvnitř domu. Polykarbonátové boxy rozšiřují vnitřní prostory a balkony, jež je tak možné využívat za každého počasí. Společné prostory domu reflektují sociální standart výstavby a vhodně ho doplňují. Velmi strohý charakter společných prostor je v přímém kontrastu s interiérem jednotlivých bytů.
Z energetického hledisky využívá dům recirkulace vody, jež mu umožňuje snížit spotřebu vody na 10% z původního odhadovaného objemu.
Více k tématu
- Autoři: Luciano Intile, Andres Rogers, Francisco Solari, Martin Zlobec, Federico Chain, Joy Zimmerman, Cynthia Szwarcberg
- Ateliér: IR arquitectura
- Země: Argentina
- Zodpovědný projektant: Ing. Ariel Fridman
- Město: Buenos Aires
- Datum projektu: 2011
- Realizace: 2013