
Doma jako na nekonečné dovolené. Starší řadový dům zkrásněl, jeho srdce je dřevené schodiště
Starší řadový dům potřeboval radikální proměnu nejen interiéru. Hlavním materiálem rekonstrukce je dřevo s kvalitním zpracováním, které změnilo atmosféru celého domu.
EARCH.CZ , 12. 10. 2023
„Klient, kterého jeho specializace „honí“ několikrát měsíčně doslova po celém světě, se rozhodl zakotvit s rodinnou v jednom ze starších řadových domů, snad shodou náhod „na dohled“ od letiště. V třípodlažním domku s polozapuštěným suterénem, s předzahrádkou i zahradou, s výhledem z vyšších podlaží daleko do bitevní bělohorské krajiny,“ uvádí počátek projektu architekti ze studia No Architects.
Více k tématu
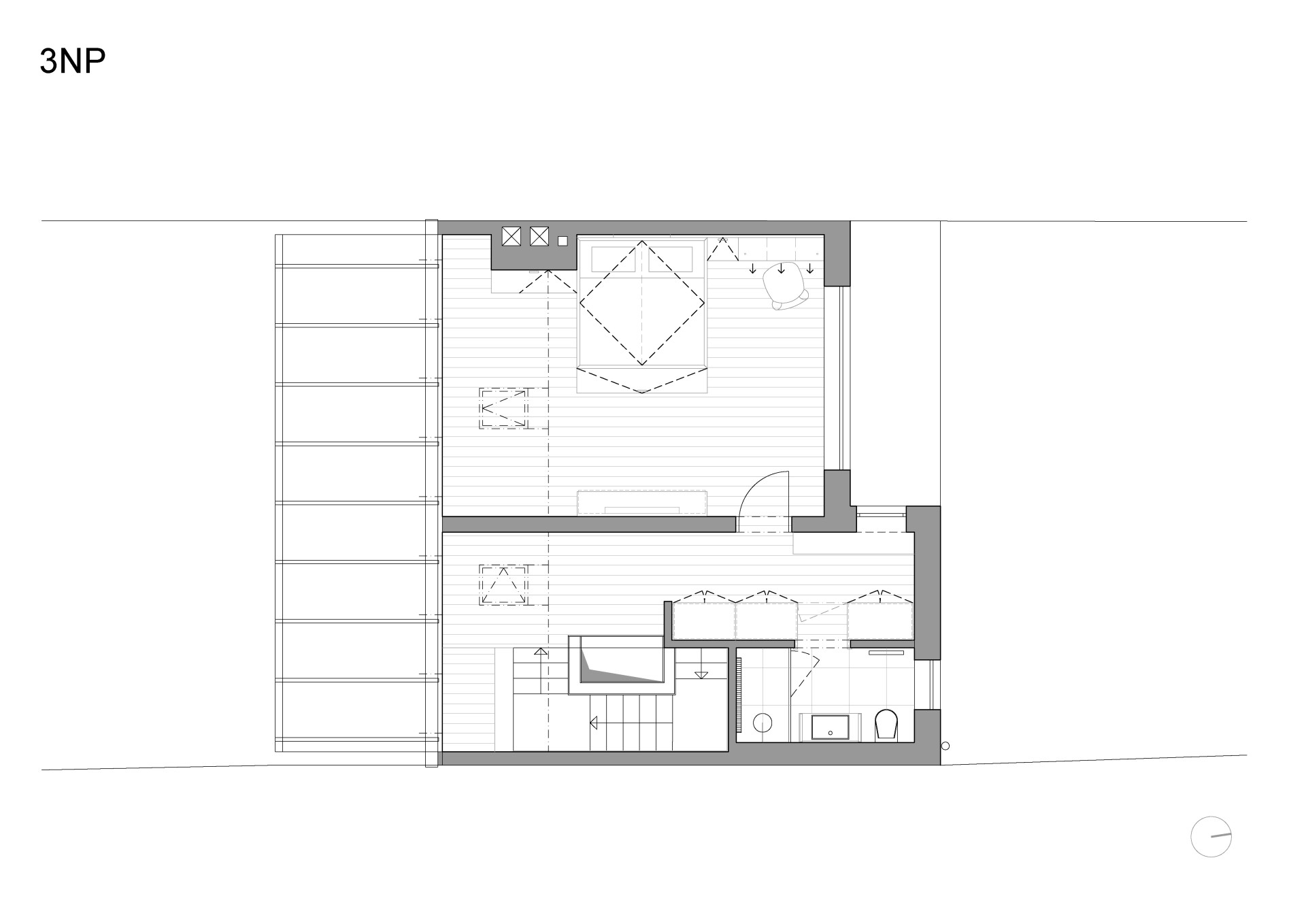
Dům, který si rodina koupila, byl sám o sobě kvalitní a velkorysý, potřeboval však nemalý zásah v interiéru a celkovou rehabilitaci, aby odpovídal potřebám života ve 21. století. Jednou z hlavních proměn interiéru se stalo schodiště. To původní, slovy autorů „jemně depresivní ocelové schodiště zazděné v tmavém koutě domu“, potřebovalo razantní změnu.
Architekti se tedy rozhodly vyříznout část podlahy. Nové schodiště tedy není stísněné, ale naopak prostorné a dostatečně prosvětlené. Úplně jednoduché to nebylo, jelikož původní strop z „hurdisek“ ze 70. let, který stavěli svépomocí původní majitelé. Ale když se něco chce, cesta se vždy najde.

A stálo to za to. Nové schodiště ze dřeva s výrazným a pečlivým řemeslným detailem je sice robustní, svou dimenzí a opakujícím se zjemňujícím dekorem šikmých perforací dodává celému interiéru jasnou tvář. Namísto stísněného komunikačního prvku se stává dominantním společenským prostorem volně propojující jednotlivá patra.
Jelikož byl původní dům zhotoven svépomocí skoro celý, museli architekti dbát dvojnásobné opatrnosti s radikálnějšími zásahy do konstrukcí. „Proto bylo nutné se statikem a stavbou prověřit každý krok dvakrát, abychom se nedočkali nepříjemných překvapení a předešli rizikům úrazu pro zhotovitele, kdyby někde v minulosti zedníci-laici něco podcenili,“ upřesňují.
Kromě celkové rehabilitace byla v domě kompletně vyměněna infrastruktura, vyměněna okna, zateplena fasáda, znovu postavena terasa, přestavěna střecha a mnoho dalšího. Dispozičně se provoz proměnil tak, aby maximálně využil potenciál domu. Kuchyň byla propojena s obývacím pokojem a vznikl souvislý velkorysý prostor spojující protilehlé stěny domu, došlo i k přesunům dalších místností.

Hlavním materiálem rekonstrukce interiéru se stalo, stejně jako u schodiště, dřevo v proměnlivých odstínech. Spojujícím znakem dřevěných prvků se stal dekor v podobě zrcadlově se opakujících diagonálních perforací ve dřevě a důmyslně provedený řemeslný detail. Tento dekor se neopakuje pouze na schodišti, ale také na černobílé podlaze v koupelně a chodbě.
„Interiér jsme dotvořili tak, jak jsme zvyklí – aby byl krásný pro jeho obyvatele a žilo se jim v něm jako na jedné nekonečné dovolené,“ uzavírají svůj počin architekti ze studia No Architects.

- Autoři: Jakub Filip Novák, Daniela Baráčková, Petra Doudová, Barbora Jelínek
- Ateliér: No Architects
- Spolupráce: Stavba: V.O.G.I. systém s.r.o., Truhlářské výrobky: Truhlářství Duspiva s.r.o.
- Země: Česká republika
- Město: Praha
- Projekt: 2019
- Realizace: 2022
- Užitná plocha: 238 m²