Dřevostavba od studia Prodesi/Domesi čerpá z tradice venkovských domů
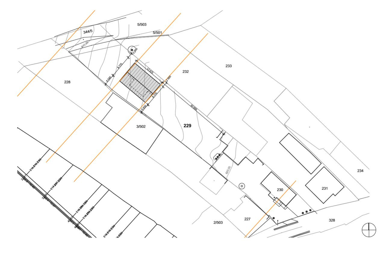
Stávající venkovské stavby v podhorské slovenské obci Veterná Poruba doplnila novostavba z dílny architektonicko-realizační kanceláře Prodesi/Domesi. Architekti navrhli tvarově jednoduchou dřevostavbu, která svou formou vychází z archetypálního tvarosloví místní tradiční zástavby. Investorovu touhu po úzkém propojení domu s okolím vyřešila prostorná zasklená terasa, která obyvatelům poskytuje panoramatický výhled na krajinu Nízkých Tater a zároveň chrání před drsnými povětrnostními podmínkami.
Prodesi/ Domesi , 5. 3. 2019
- Autoři: Václav Zahradníček, Hana Bartoňová
- Ateliér: Prodesi/ Domesi
- Země: Slovensko
- Realizace: 2016
- Zodpovědný projektant: Monika Moravcová
- Generální dodavatel: Domesi, s. r. o.
- Město: Veterná Poruba
- Realizace: 2016
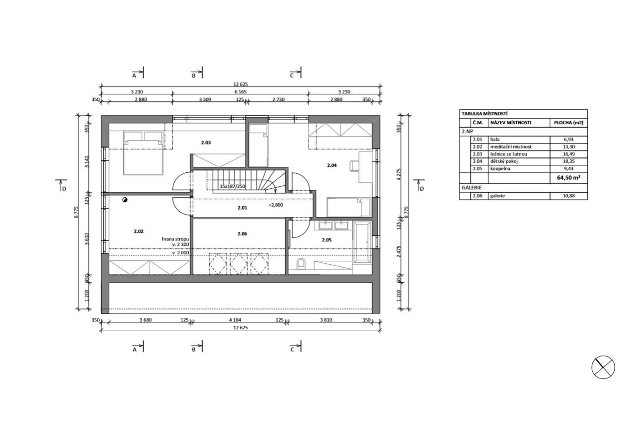
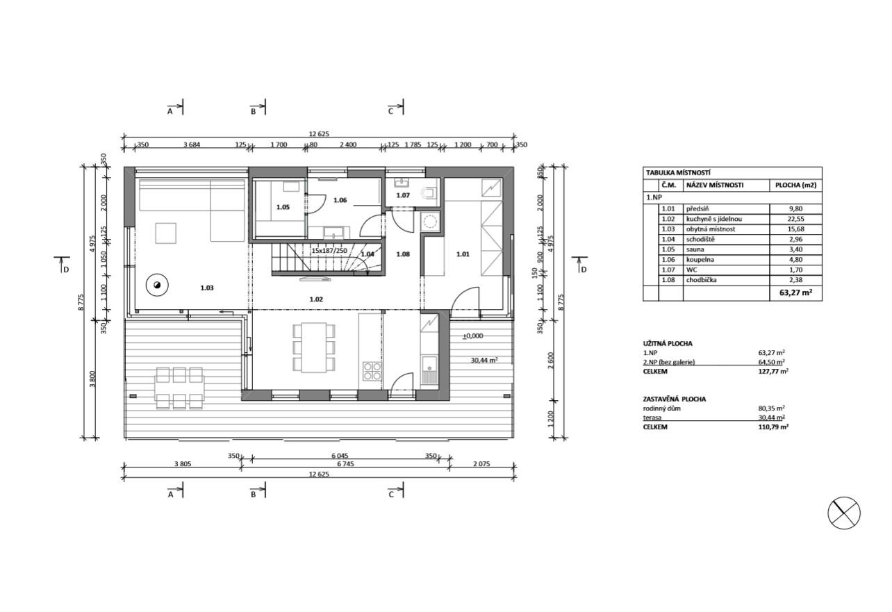
- Užitná plocha: 130.00m2