Dříve se zde opravovaly motory. Dnes se do areálu Agromotoru chodí za sportem, relaxací i dobrou kávou
Nové fitness a wellness centrum ve Velkém Meziříčí vytváří zázemí pro sport i odpočinek nejen pro místní. Vzniklo navíc ukázkovou synergií architektů, stavebníků a investorky, to se v architektonické praxi stává jen výjimečně.
EARCH.CZ , 26. 2. 2024 / Advertorial
Investor jako součást týmu
Na návrhu moderního fitness a wellness centra ve Velkém Meziříčím pracovali architekti z pražského studia Free Architects dva roky. Místní stavební firma poté návrh zrealizovala za pouhý rok. „Celá stavba vznikla díky nadlidskému úsilí investorky. Přestože se stavbou takového areálu neměla zkušenosti, byla od počátku členkou našeho týmu a kus práce odvedla i na stavbě,“ pochvaluje si spolupráci s investorkou architekt Petr Záluský.
Více k tématu
Sport a odpočinek nejen pro místní
Areál se nachází deset minut pěšky od historického jádra města u řeky Oslavy a cyklostezky, pět minut od dálnice D1. Je tedy dobře dosažitelný jak pěšky, tak při cyklovýletu nebo autem.
Na rovinném pozemku stojí tři hlavní provozy. Hlavní budova navazuje na charakter průmyslové zástavby. Směrem k rodinným domům jsou umístěny tenisové kurty, pumptrack (umělý okruh pro jízdu na kole), venkovní posilovna a dětské hřiště. Tento park s volnočasovými aktivitami zajišťuje rodinným domům určitou míru soukromí. Hlavní vjezd a na něj navazující parkoviště architekti navrhli k silnici a železnici tak, aby auta co nejméně rušila obyvatele žijící v okolí.

Důmyslné dispoziční řešení, v němž se návštěvník snadno zorientuje
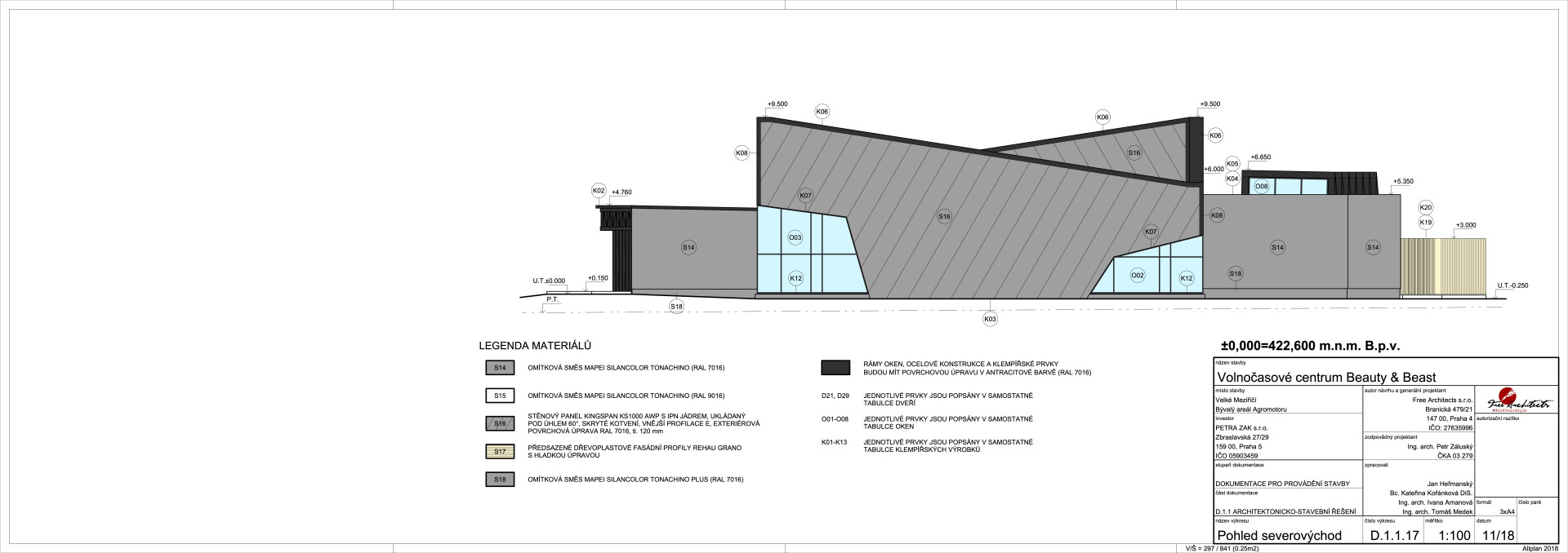
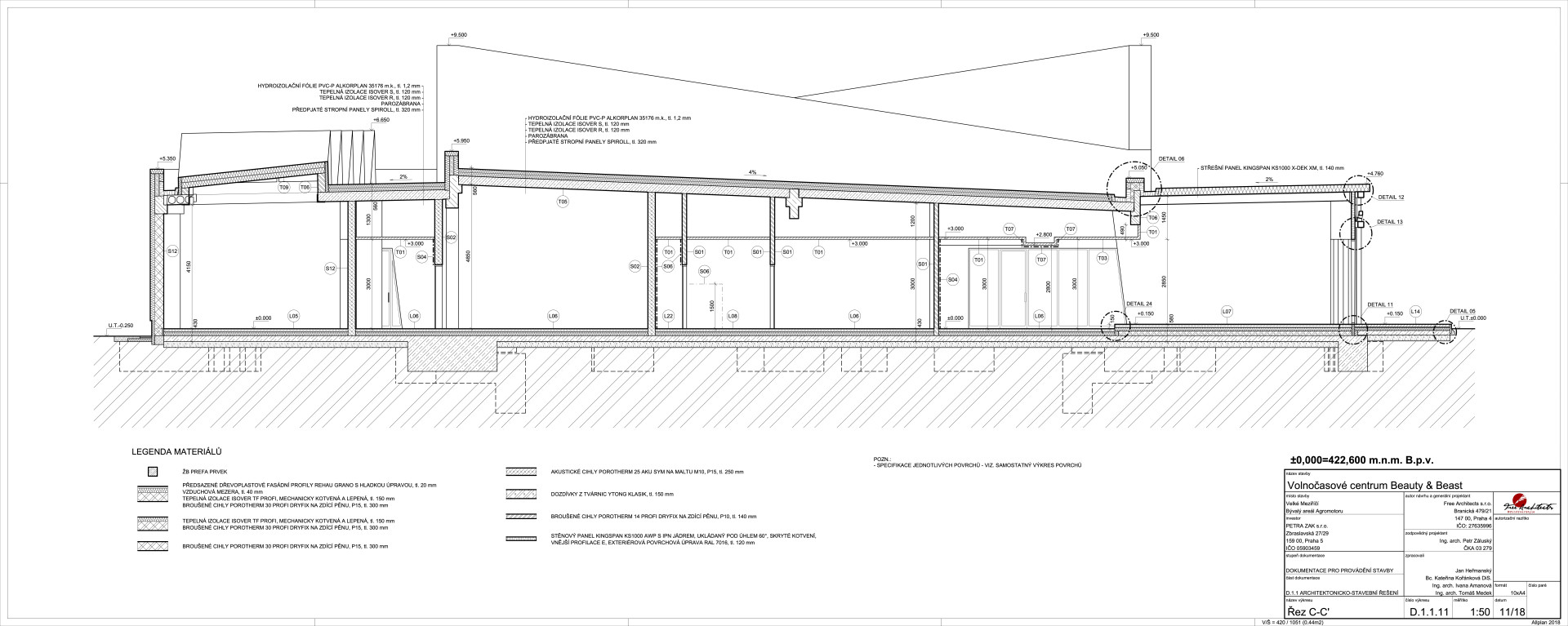
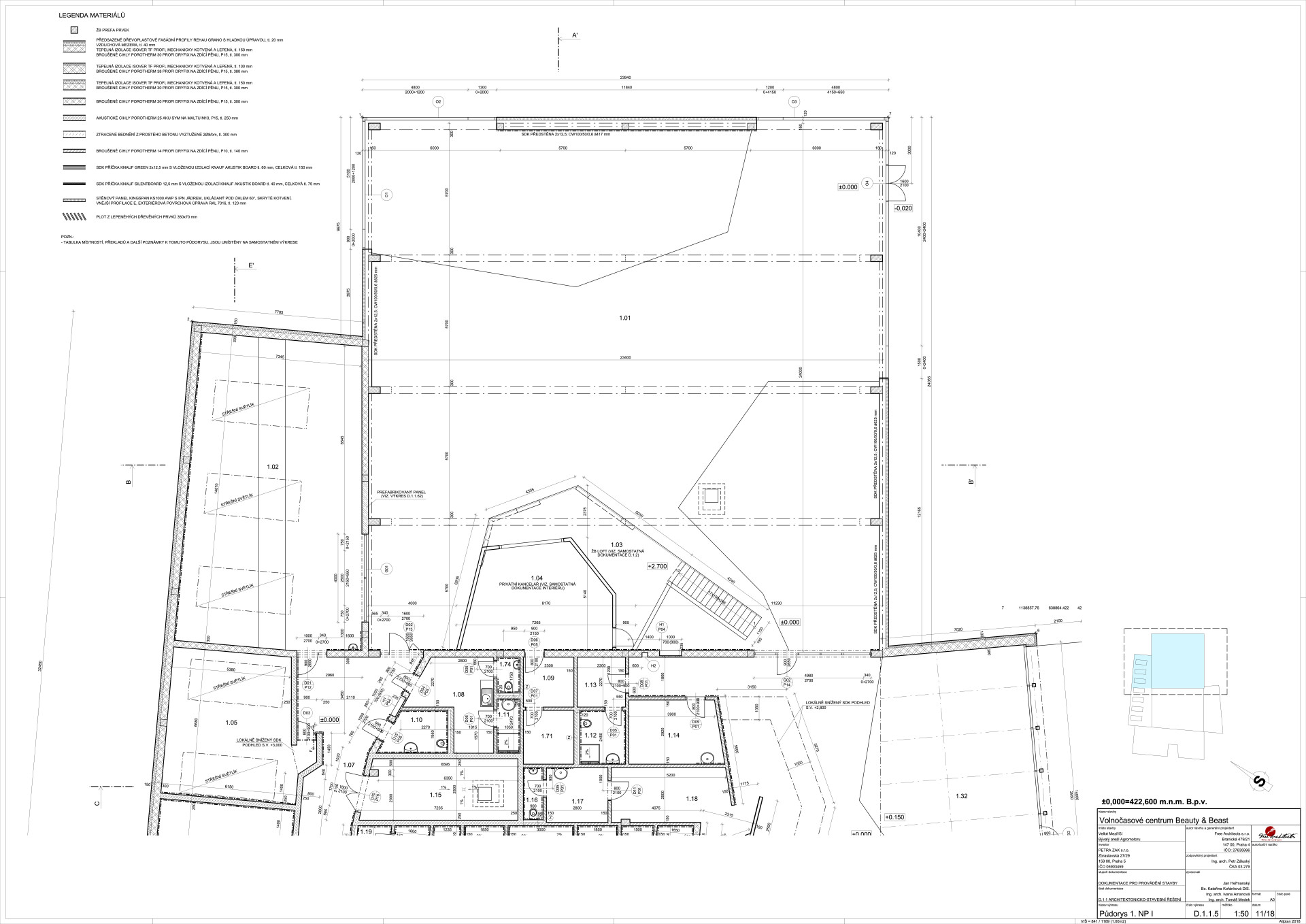
Architektura hlavní budovy odpovídá svým dispozičním řešením i dynamickým charakterem moderní sportovní stavbě. Hmotové členění objektu prozrazuje pět funkčně odlišných částí. Sportovně-relaxační centrum je tak pro návštěvníka srozumitelné a snadno se v něm zorientuje i návštěvník, který přišel poprvé.
Dominantní sportovní hala s fitness centrem má světlou výšku přesahující šest metrů. Free Architects nejsou v navrhování posiloven nováčky. „Navrhujeme je už dvacet let, ale většině z nich něco chybí. Beauty&Beast má všechno a v ideálním poměru,“ dodávají. Sál obsahuje plochu pro volné váhy, kardio zónu, plochu pro stroje kladkové i kotoučové a část pro funkční a kruhové tréninky. Vysoká světlá výška navíc umožnila část prostoru rozdělit loftovým mezipatrem s kanceláří, pod nímž se mohou sportovci v intimnějším prostoru protáhnout a zklidnit své myšlenky před tréninkem.

„Objekt vznikl v prostoru bývalého průmyslového areálu a industriální výraz jsme v jeho architektuře zachovali. Posilovna je vlastně hala s betonovými nosníky, trapézovými plechy, velkými prosklenými plochami a plechovou fasádou,“ říkají o architektuře posilovny autoři.
V proskleném pavilonu se nachází kavárna s vnitřním i venkovním sezením. Otevírá se směrem do parku a její charakter i design zamýšleli autoři jako nezávislou část na okolním provozu s vlastní odlišnou atmosférou. Hojně ji využívají nejen hosté sportovního centra, ale i kolemjdoucí nebo cyklisté.

Sektor s menšími sály slouží skupinovým lekcím. Ve dvou z nich se cvičí jóga a aerobic. Největší je navržen pro crossfit s připojenou horolezeckou stěnou. V letních měsících se může prostor pro cvičení zvětšit až do přilehlého parku. Do skupinových sálů vnáší horní rozptýlené světlo pilové světlíky. Je v nich díky tomu větší soukromí a volné stěny mohou být využity efektivněji.
Dřevem opláštěný pavilon v sobě skrývá prostor určený k relaxaci a odpočinku – veřejné lázně, privátní SPA pro šest osob a masérnu. Centrálním bodem se stalo uzavřené atrium se zenovou zahradou, do které je průhled ze SPA.
V těžišti celého provozu se poté nachází poslední funkční celek tohoto centra – šatny a technické zázemí.
Díky skvělé spolupráci mezi architekty, stavební firmou a investorkou vzniklo v bývalém brownfieldu dobře vybavené sportovní a relaxační centrum, které poskytuje prostor pro volnočasové aktivity nejen lidem z Velkého Meziříčí, ale i z okolí Brna. Funkční areál dokazuje, že stavět na nevyužívaných průmyslových plochách ve městě je i přes veškeré úsilí často lepším řešením než zastavovat půdu na jeho okraji.

Cesta k Allplanu
S Nemetschkem, jehož je Allplan součástí, se majitel studia Free Architects poprvé setkal v roce 1998, kdy si těsně před dokončením studia na vysoké škole myslel, že pracuje efektivně v AutoCadu. „Jeden kamarád mě ale rychle vyvedl z omylu a pomohl mi připravit něco, co by mi trvalo tři dny za jediný večer (no dobře nocovku) a to včetně výkazu výměr. Nemetschek ale nebyl nástroj šitý na studentské experimenty, a proto jsem jej v hlavě ještě na dlouho odložil do kategorie znám, ale nevyužiji,“ popisuje své začátky s Allplanem vedoucí architekt Free Architects Petr Záluský.
Od této příhody uplynulo dvacet let a dnes již v ateliéru sídlícím v Praze projektují, vizualizují a připravují prováděcí dokumentace. Nástroje z počátku milénia jako AutoCad a 3DSmax v kombinaci s excelem přestaly stačit a ateliér proto nově začal pracovat v Allplanu. „Věděl jsem, že v době, kdy konkurenční programy vůbec neexistovaly, měl Nemetschek už BIM,“ říká architekt Záluský.

Začátky v Allplanu prý nebyly jednoduché, ale nakonec to restartovalo celý tým, protože si všichni museli pomáhat. Firma se navíc personálně ozdravila. Každý byl najednou začátečník a odpadli lidé neochotní se učit něco nového.
Největším přínosem Allplanu je pro studio Free Architects možnost týmové práce na projektu a diferenciace úkolů. Někdo se soustředí na HSV, jiný PSV, další řeší pouze řezy a detaily, jiný zase dělá reporty nebo 2D výkresy. „Allplan nám pomohl vyrůst z bačkůrek do pořádných bot,“ zakončuje Petr Záluský.
- Ateliér: Free Architects
- Spolupráce: Karolína Záluská, Vilém Klvaňa, Ivana Amanová, Jan Heřmanský
- Země: Česká republika
- Město: Velké Meziříčí
- Adresa: Pod Strání 2279, 594 01 Velké Meziříčí
- Projekt: 2018
- Realizace: 2020
- Náklady: 90 mil. Kč bez DPH
- Plocha pozemku: 7556 m²
- Zastavěná plocha: 1939,5 m²
- Obestavěný prostor: 9887,7 m³
- Parkové úpravy: 3000 m²
- Plochy venkovních sportovišť: 1032 m²