Jednoduché bydlení pro minimalistickou rodinu. Další rodinný dům od dvojice Stempel & Tesař tentokrát v Řepích
Dům mohl být příliš dominantní, nebo naopak orientovaný do slepých stěn sousedních staveb. Ani jedno se nestalo. Na stísněném pozemku v Řepích vyrostla stavba vzdušná a přiměřená. Je to další projekt ateliéru Stempel & Tesař architekti, jejichž tvorbu právě představuje výstava v centrále ČSOB.
EARCH.CZ , 6. 2. 2025
Ateliér Stempel & Tesař architekti má po 17 letech své existence na kontě spoustu rodinných domů. Každý je jiný, na míru klientům, jde o novostavby i rekonstrukce. Více jak dvacet svých top rodinných domů se teď rozhodli vystavit v centrále ČSOB v Praze 5. Stavby na ní představují modely a velkoformátové fotografie.
Vzdušný dům na hluboké parcele
Řešit soukromé individuální bydlení architekty Jána Stempela a Jana Jakuba Tesaře prý stále baví, a tak jejich portfolio zatím každý rok rozšíří nějaká novinka. V roce 2024 to byl například rodinný dům v Řepích, o němž autoři říkají, že je to taková jednoduchá stavba pro minimalistickou rodinu.
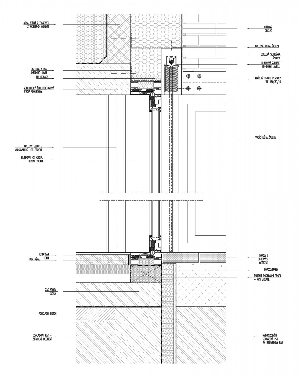
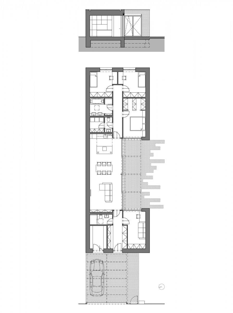
Střídmost se propsala do celková estetiky a tvaru domu. Je jednopodlažní, složený ze za sebou skládaných kubických hmot. Směrem k ulici se obrací svou krátkou boční stranou, s fasádou obloženou cihelnými pásky v tmavé barvě.

Rodinný dům v Řepích je hlubokých, respektive dlouhý, táhne se dozadu po protáhlé parcele. Na té nebylo prostoru nazbyt. Vznikla rozdělením pozemku sousedního domu, a tak se zformoval poměrně stísněný prostor.
„Na minimálním pozemku jsme se museli vypořádat s řadou problémů,“ říkají architekti. Třeba výhled z obývacího pokoje, který má prosklenou stěnu, směřoval na garáž souseda. Pohled na ni zatraktivnila nástěnná malba od Jana Šerýcha.
Obývací pokoj s kuchyní a jídelním prostorem je doslova středem domu. Od ulice se do něj vstupuje chodbou vedoucí mezi technickou místností, koupelnou a pracovnou. Interiér je záměrně světlý, na stropech je odhalený beton, vestavné vybavení převážně bílé. Zútulnění pomáhají dřevěné prvky a objevují se také antracitové detaily. V této barvě jsou rovněž rámy oken, a to zevnitř i zvenku, kde ladí ke stejnobarevnému přístřešku na automobil.
Hlavní obytný prostor je oproti krajním hmotám zúžený, domu tak dal jakési drobné poloatrium, do něhož se vstupuje prosklenou stěnou obývacího pokoje. Vyjít se odsud dá také do zbytku malé zahrady, za jejíž podobou stojí krajinářská architektka Lucie Vogelová z ateliéru Terra Florida.

Ložnice, které jsou v domě celkem tři, se nacházejí v nejzadnější části stavby. Směřují tak do klidu zahrady a jsou co nejdál od ulice. Ateliéru Stempel & Tesař architekti se v Řepích obecně podařilo vytvořit rodinný dům s důrazem na soukromí. Z ulice do něj kvůli jeho natočení není v podstatě vidět.
„Vždy, když se nakonec povede stísněný pozemek využít, je to pozitivní signál, že města lze stále zahušťovat a stavět bez nutnosti rozšiřování dopravní infrastruktury,“ dodávají architekti ještě k pozemku.
Více k tématu
Výstava Stempel & Tesař architekti
Rodinný dům v Řepích se řadí mezi realizace Stempel & Tesař architekti, na které ateliér od klientů dostal výjimečně pozitivní ohlasy. Podle investorů splňuje vše, co si přáli. „Když se podaří naplnit všechna očekávání klientů, je to důvod k oslavě,“ říkají Ján Stempel a Jan Jakub Tesař.
Řadu klientsky, ale také architektonicky, úspěšných rodinných domů si je možné prohlédnout na v úvodu zmíněné výstavě, která začala 5. února 2025. K vidění je třeba experimentální vila Sidonius, o níž jsme na EARCH.cz psali nedávno, v architektonických soutěžích oceňovaný dům ve Všenorech nebo citlivě rekonstruovaný mlýn na Slapech se skleněným průřezem. A pak ještě dvě desítky dalších rodinných domů.
- Ateliér: Stempel Tesař architekti
- Autoři: Ján Stempel, Jan Jakub Tesař
- Spolupráce: Aleš Herold
- Země: Česká republika
- Město: Praha - Řepy
- Projekt: 2017
- Realizace: 2024
- Užitná plocha: 132 m²
- Zastavěná plocha: 168 m²
- Plocha pozemku: 549 m²
- Obestavěný prostor: 710 m³
- Krajinářská architektura: Lucie Vogelová – Terra Florida v.o.s.
- Fotograf: Filip Šlapal