Dům, který zaparkujete kdekoli. Do sériové výroby míří český mobilní domek z hliníku
Architekti ateliéru Artikul se mohou pochlubit, že postavili dům přímo před Průmyslovým palácem na Výstavišti v pražských Holešovicích. Bez stavebního povolení. Příště ho postaví třeba na hřebenech hor. Ani tam nebudou potřebovat souhlas stavebního úřadu. Jejich Mobile Hut, domek v hliníkovém designu, který zároveň ctí základní archetypální tvar českého domu se sedlovou střechou, má totiž kola a byl homologován jako přípojné vozidlo - má svůj technický průkaz i SPZ a postavit ho, přesněji zaparkovat ho můžete se souhlasem majitele pozemku v podstatě kdekoli, kam s ním dojedete. Je totiž nezávislý a energeticky soběstačný. Pro čtyři lidi až na dva týdny.
Schüco CZ s.r.o. , 15. 1. 2019
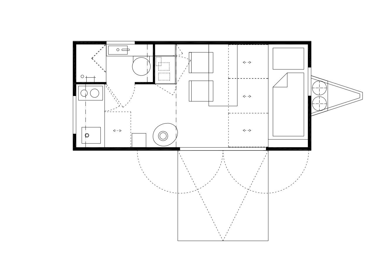
Na začátku projektu Mobile Hut byl nápad MUDr. Jana V. Raimana, světově vyhlášeného ortodontisty, který byl vždy zapáleným cestovatelem. Ve volných chvílích hledal cesty do přírody, na venkov a především nezávislost. Aby mohl vyrazit, už jako student si ve svém autě montoval různé lůžkové úpravy a úložné prostory. To mu ale nestačilo. Časem chtěl řešení, které bude nejen pohodlné, ale bude také moderní, stylové a soběstačné, přitom dostatečně mobilní. Na trhu nenašel nic, co by vyhovovalo jeho představám, až se potkal s architekty z ateliéru Artikul. Jan Gabriel a Jakub Vlček se tehdy již delší dobu zabývali stavbou domů z kontejnerů. Jejich vkus a vnímání kontrastu mezi přírodou a moderním způsobem života MUDr. Jana V. Raimana zaujalo, společně se pustili do práce a zrodil se dům na kolech Mobile Hut. Míry a váhy: 5 metrů na délku, 2,3 m na šířku a 3,9 m na výšku, váha 2100 kg. Užitná plocha 15 metrů čtverečních a k tomu ještě 4 metry terasy. Moderní domek v hliníkovém designu, přesto svým tvarem inspirovaný klasickým českým domem se sedlovou střechou a komínem. Designový i praktický, nezávislý a soběstačný.
Mobile Hut souzní se současným trendem nomádského životního stylu
„Mobile Hut je výsledkem hledání nové formy mobilního bydlení. Jde o designový domek, který nabízí plnohodnotný komfort pro žití s tím rozdílem, že se dá navíc ještě "zabalit" a kamkoli převézt. Produkt na pomezí architektury a designu má za cíl otevřít nové způsoby dočasného bydlení v předražených městech a na místech, kde nelze běžně stavět. Obydlí souzní se současným trendem nomádského stylu života a nabízí svým uživatelům možnost utéct od stereotypních návyků konzumní společnosti a přiblížit se přírodě,“ představuje koncept Mobile Hut Ing. arch. Jan Gabriel, jeden z autorů projektu.
Více k tématu

Dům, který může jezdit devadesátkou
K přesunu domku Mobile Hut nepotřebujete jeřáb ani náklaďák, jen větší osobní auto s tažným zařízením, tzv. koulí. Domek na kolech schválila do provozu DEKRA jako přípojné vozidlo kategorie O2, má svůj technický průkaz a SPZ. Podvozek je součástí konstrukce, nese podlahu, proto na Mobile Hut právo nepohlíží jako na stavbu. Je to ale pořád dům, i když zároveň legislativně to je vozidlo s maximální povolenou rychlostí 90 km/h.
Sendvičový panel tvoří hliníkový plech, PUR pěna a smrková deska
Vývoj včetně designu domku na kolech trval zhruba dva roky. „Kloubí se tu moderní design a tradiční přístup. Chtěli jsme, aby dům byl vždy v kontrastu s místem, kde se zrovna bude nacházet, proto jsme navrhli hliníkový plášť. Ale zároveň jsme chtěli, aby dům měl základní archetypální tvar českého stavení a zachoval se ten pocit klasického domu se sedlovou střechou a komínem. Není to tedy jen nějaká nadesignovaná bouda, ale jednotlivé věci jdou ruku v ruce, tvar domu, detaily konstrukce, technické vybavení a obrovská funkčnost domu jsou výsledkem dlouhého vývoje a testování,“ vysvětluje Ing. Arch. Jakub Vlček.
V podstatě celá konstrukce je sendvičová, slepená z hliníkového plechu, jádro tvoří polyuretanová pěna, které současně funguje jako izolace, interiér je obložen masivní smrkovou biodeskou. Sendvičové panely architektům pomohla vyvinout společnost z Vysokého Mýta, která vyrábí panely pro skříňové nástavby nákladních automobilů či chladírenské boxy. „Mají velké zkušenosti s lepením a technologií těsnosti pláště. Sendvič je slepený bez jakýchkoli výztuh a obrovská výhoda je v tom, že celý dům je velmi lehký - včetně podvozku a veškerého vybavení váží lehce přes dvě tuny,“ pokračuje Ing. arch. Jakub Vlček.
Hliníkový design domku si řekl o okna a dveře Schüco
Do vodotěsného pláště z eloxovaného hliníku nešlo osadit nic jiného než hliníková okna a dveře. „To byl první důvod, proč jsme si vybrali Schüco. A druhý spočíval v tom, že Schüco nabízí jednoznačně největší škálu různých oken a konstrukcí, které jsme potřebovali do tohoto projektu, tzn. lehká okna, přitom izolačně s dobrými parametry, která se navíc otvírají ven a se stavební hloubkou rámů jen pět centimetrů. Žádný jiný výrobce nám nebyl schopen toto splnit,“ chválí Schüco Ing. arch. Jakub Vlček. Tepelně izolované hliníkové profily Schüco AWS 50 pro okna s pohledovou šířkou pouze 40 mm a Schüco ADS 50pro dveře s dvojitým bezpečnostním sklem dodávala na míru společnost A.R. OKENNÍ TECHNIKA. Rámy byly přímo ve výrobě vlepeny do sendvičových panelů, což zvýšilo odolnost konstrukce, a až když byl dům hotový, montovala se křídla.
Mobile Hut lze připojit na sítě, ale může být pro čtyři osoby soběstačný až dva týdny
Základní verze Mobile Hut je připojitelná na sítě, tzn. na vodu a elektřinu, ve variantě „off grid“ je na sítích dům nezávislý - je vybaven solárními panely, má hi-tech baterie, filtry a nádrže na vodu, nezávislé plynové topení a kamna na dřevo, takže pro čtyři osoby je soběstačný až na dva týdny bez jakékoliv přípojky v kterémkoli ročním období.
Dům je promyšlen do posledního nýtku. Každý milimetr prostoru je vyřešen tak účelně, že do něj sbalíte byt o velikosti 2+kk. Pomocí polohování vestavěného nábytku se může přizpůsobit dispozice různým funkcím, na vyvýšeném lůžku v přízemí s dvěma řadami výsuvných šuplíků se po rozložení vyspí dva lidé a nahoře v patře je ještě manželská postel. Plně vybavená kuchyň má dvě plynové plotýnky, nerezový dřez či vestavěné elektrické zásuvky pro další spotřebiče. Okna se vyklápějí ven, aby neubírala prostor uvnitř, plnohodnotná koupelna má sprchový kout, umyvadlo a chemickou toaletu. A srdcem domečku jsou krbová kamna na dřevo. Sklopná terasa přidá k užitné ploše interiéru (15 metrů čtverečních) další 4 metry.
Mobile Hut představili jeho tvůrci během říjnového Design Bloku, kdy parkoval právě před Průmyslovým palácem a noc v něm na zkoušku strávili i sami architekti. Koncept, který se zpočátku rodil jako naplnění představ jednoho člověka, si už během práce na projektu našel tolik příznivců, že se Mobile Hut chystá na sériovou výrobu.
Více na www.mobilehut.eu, www.artikul.eu a www.schueco.cz.
- Ateliér: ARTIKUL architekti
- Autoři: Jan Gabriel, Jakub Vlček, Pavel Lejdar
- Země: Česká republika
- Subdodavatel: Schüco CZ s.r.o.
- Datum projektu: 2016
- Realizace: 2018
- Užitná plocha: 15.00m2




