
Architektura
/
rodinné domy
Dům na konci vsi
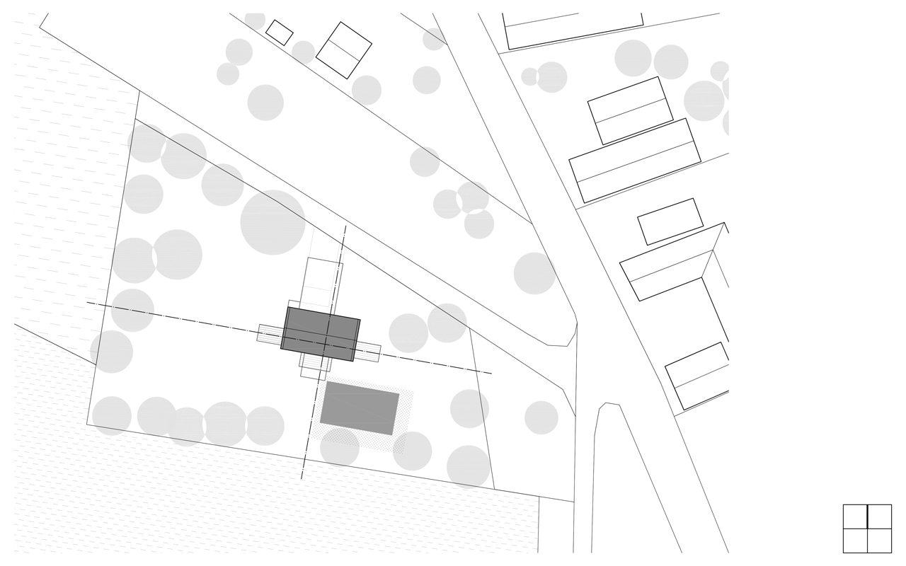
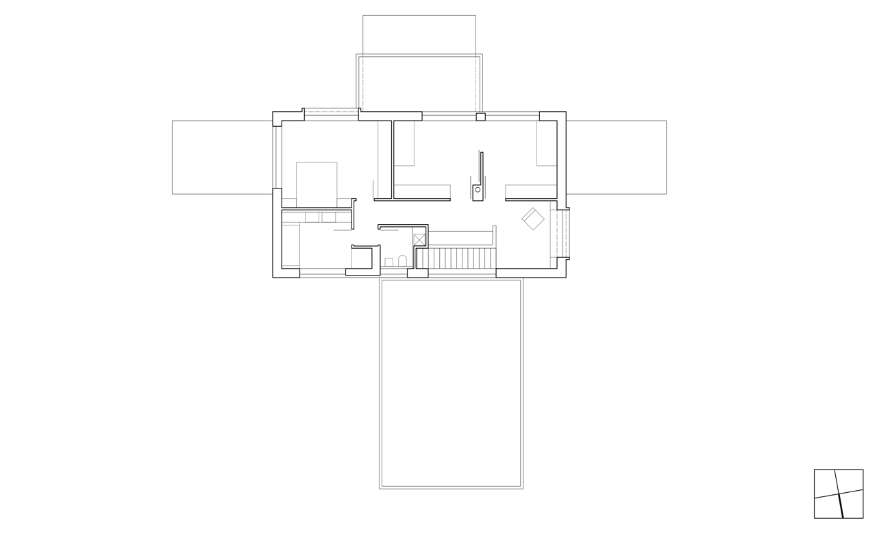
Dům pro rodinu se dvěma dětmi je posazen na pozemek na okraji obce Bohumileč. Pozemek na konci obce z jedné strany sousedí s okolními chalupami, z druhé se otevírá do kraje. Vzrostlá zeleň vytváří domu vlastní svět, do něhož je většinu roku zcela ponořen.
Mimosa Architekti , 15. 8. 2016
- Ateliér: Mimosa Architekti
- Země: Česká republika
- Město: Rokytno
- Ulice, číslo: Bohumileč
- PSČ: 533 04
- Datum projektu: 2008
- Realizace: 2010
- Užitná plocha: 148.00m2
- Zastavěná plocha: 101.00m2
- Plocha pozemku: 2 806.00m2
- Foto ©: Lucie Mlynářová