
Vypadá jako chata. Rodinný dům s dřevěnou fasádou navazuje na chatařskou tradici, ale uvnitř je veškeré pohodlí i vlastní galerie
Rodinný dům v klidné přírodě nedaleko Štěchovic u Prahy je výsledkem ukázkové spolupráce mezi klientem, architekty a krajináři. Je díky tomu dotažený do posledního detailu a propojený s přírodou kolem.
Sára Kročková , 21. 4. 2024
Spolupráce s architekty od samého začátku
Bezmála dva roky hledali klienti spolu s architekty vhodný pozemek pro realizaci jejich nového domu – chtěli, aby k nim silně promlouval. Ten pravý našli na okraji lesa v prudkém svahu nedaleko potoka, a to v blízkosti Štěchovic u Prahy.
Silný koncept domu pomohl architektům ze studia edit! definovat příkrý svah. Drobnou pitoreskní hmotu vytaženou do výšky zarazili do terénu tak, aby nebyl zásah člověka v místě téměř patrný.

Citace chatařské estetiky
Území táhnoucí se směrem od Štěchovic je oblíbeným místem chatařů, a právě chatařskou estetiku rodinný dům cituje. Současná železobetonová konstrukce domu se zvenku zahaluje dřevěným obkladem, který bude v čase stárnout stejně jako zdejší chatky.
S krajinářskými úpravami pomáhala architektům krajinářka Jitka Tomsová z ateliéru Rouge. Pozemek společně rozčlenili do několika funkčních částí dle venkovních aktivit. Zahrada je navržená tak, aby ponechala možnost dostavby, jež by mohla sloužit pro přátelé a hosty, anebo jako dílna.

Vášeň pro umění
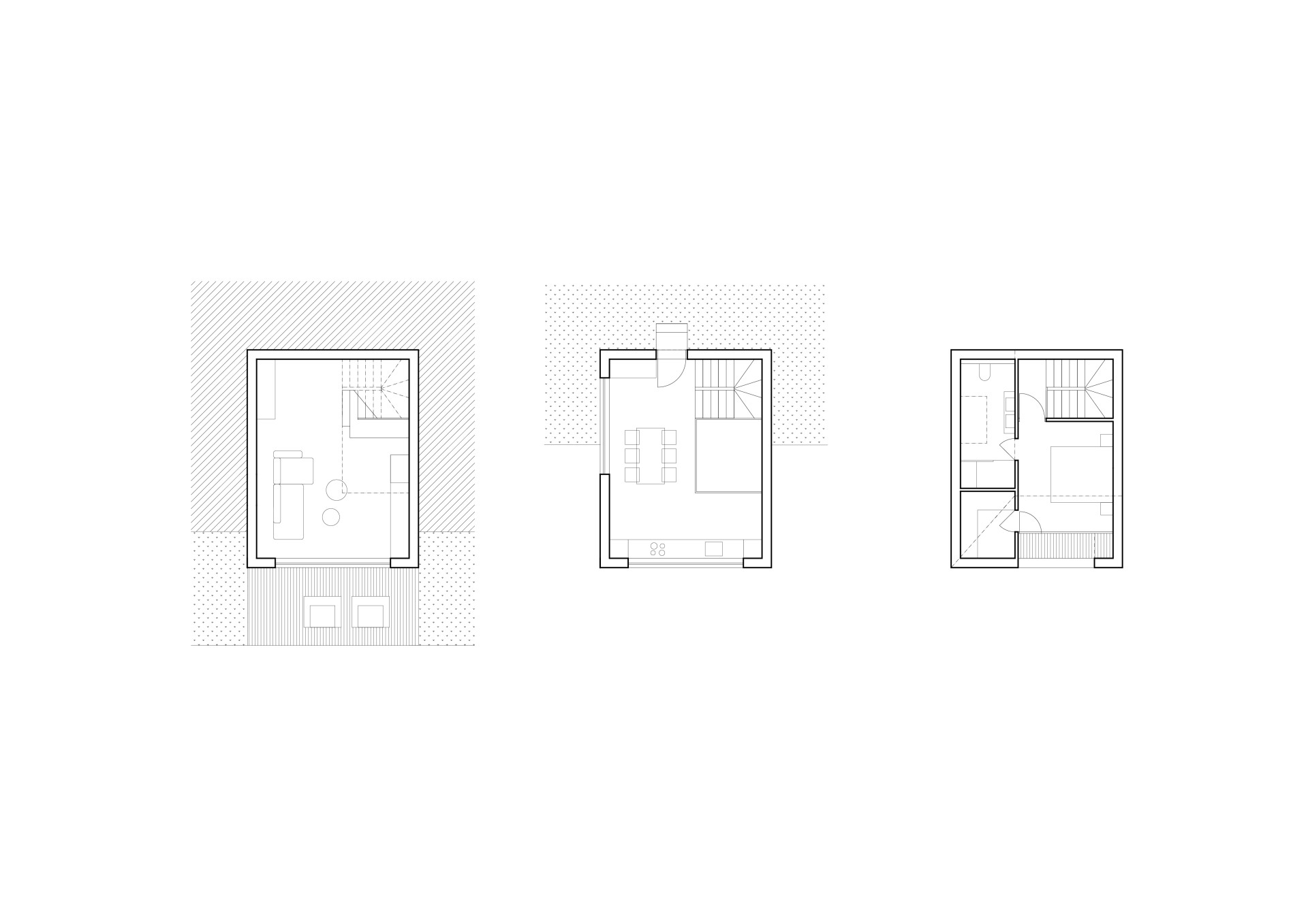
I přesto, že se na první pohled může dům zdát malý, vešla se do něj tři patra ukrývající nejen obytné prostory, ale i místo pro umění. Jednotlivá podlaží propojuje výrazné skulpturální schodiště, které se stalo dominantou interiéru.
V nejnižším patře přímo navazujícím na zahradu se nachází obývací pokoj. Ten je navíc pomocí vertikální galerie vizuálně propojený s kuchyní. Nejvyšší místo v domě s nádhernými výhledy na řeku Vltavu si zasloužila ložnice se zázemím.

„Vertikální prostor propojující tři obytná patra měl od počátku sloužit jako galerie, stálá výstava děl ze sbírky současného umění patřící majitelům, do základu jsme proto zvolili bílou barvu. Ta byla aplikována také na schody a zábradlí, které návštěvníky exhibicí provádí, a které mělo do budoucna posloužit jako malířské plátno vybranému umělci. Minimalistický základ interiéru je doplněn o řemeslné prvky a eklektické dekorace,“ říkají o nezvyklém propojení domu s galerií architekti.
Více k tématu
Projekt předurčený k úspěchu
Majitelé brali od počátku projekt vlastního rodinného domu zodpovědně. Již samotný pozemek vybírali s architekty, návrh poté vznikal v intenzivním dialogu nejen s nimi, ale i krajinářkou a věnovala se péče každému detailu. Výsledkem je dům, kde se dobře žije jeho obyvatelům, ale je v souladu i se svým okolím.
- Autoři: Ivan Boroš, Juraj Calaj, Vítězslav Danda
- Ateliér: edit! architects
- Země: Česká republika
- Město: Štěchovice
- Projekt: 2019
- Realizace: 2022
- Náklady: 8 mil. CZK
- Fotograf: Jan Pernekr
- Generální zhotovitel stavby: Block Building s.r.o.
- Zámečnické práce, schodiště: ČEKOV s.r.o.
- Krajinářský architekt: Jitka Tomsová