Architektura / rodinné domy

Dům ve tvaru trojcípé hvězdy od architekta Vlacha člení pozemek podle způsobu využívání

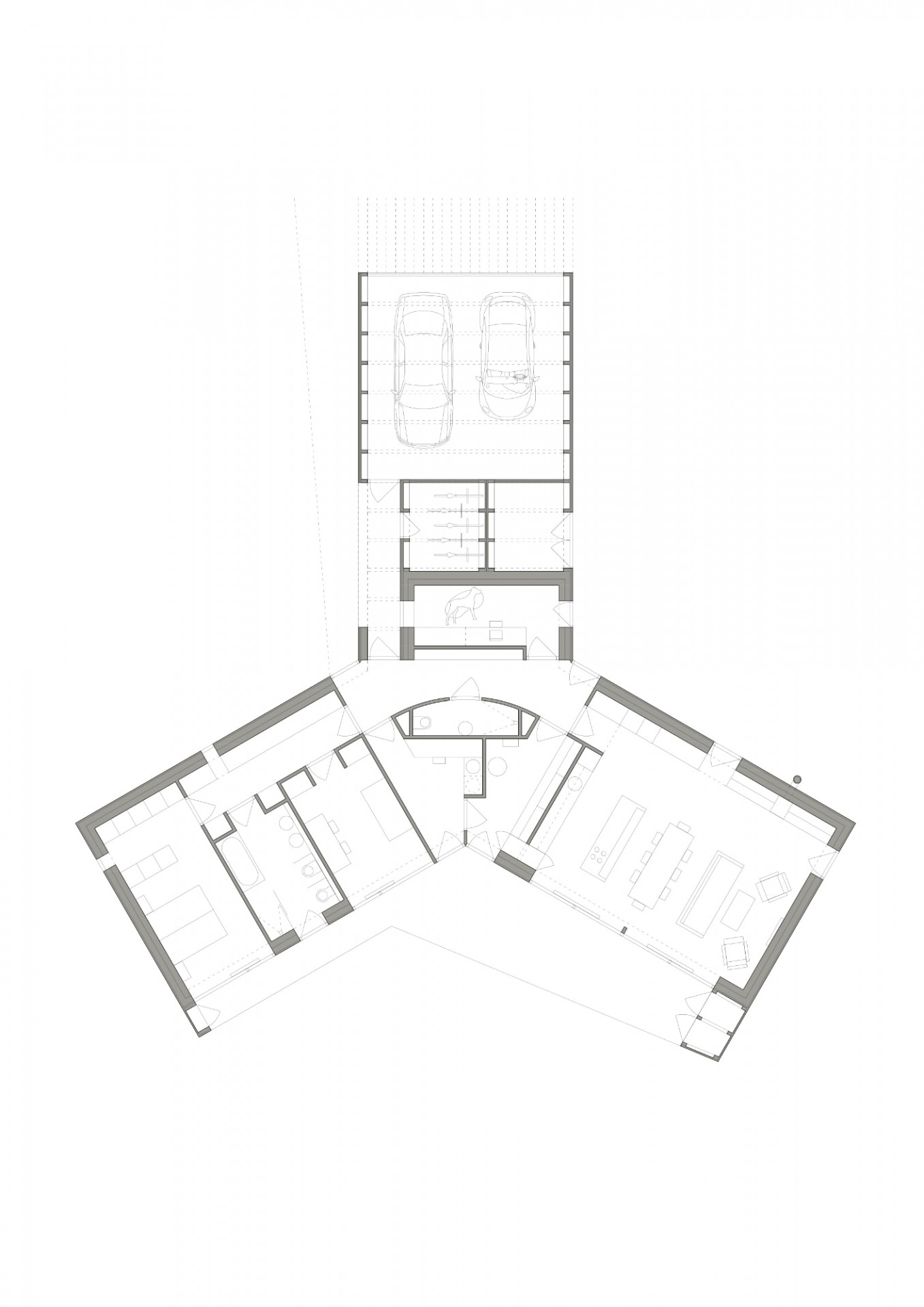
Jednopodlažní rodinný dům na rovinatém pozemku na Náchodsku uspořádal architekt Viktor Vlach do tvaru symetrické trojcípé hvězdy, čímž vznikly jednotlivé funkčně oddělené zóny v interiéru i zahradě. Dům zahalený zčásti do dřevěného pláště nabízí majitelům také prostornou krytou terasu s výhledy do krajiny.

Viktor Vlach , 2. 2. 2021

  • autor: Viktor Vlach *
  • publikováno: * 2. 2. 2021
  • zdroj: * Autorská zpráva

Klíčová slova:

plochá střecha terasa

Nabídky práce

Mohlo by vás zajímat

Generální partner
Hlavní partneři