Architektura / rodinné domy

Dvojice Schaufler-Roskovec umístila rodinný dům za Prahou na úpatí prudkého svahu

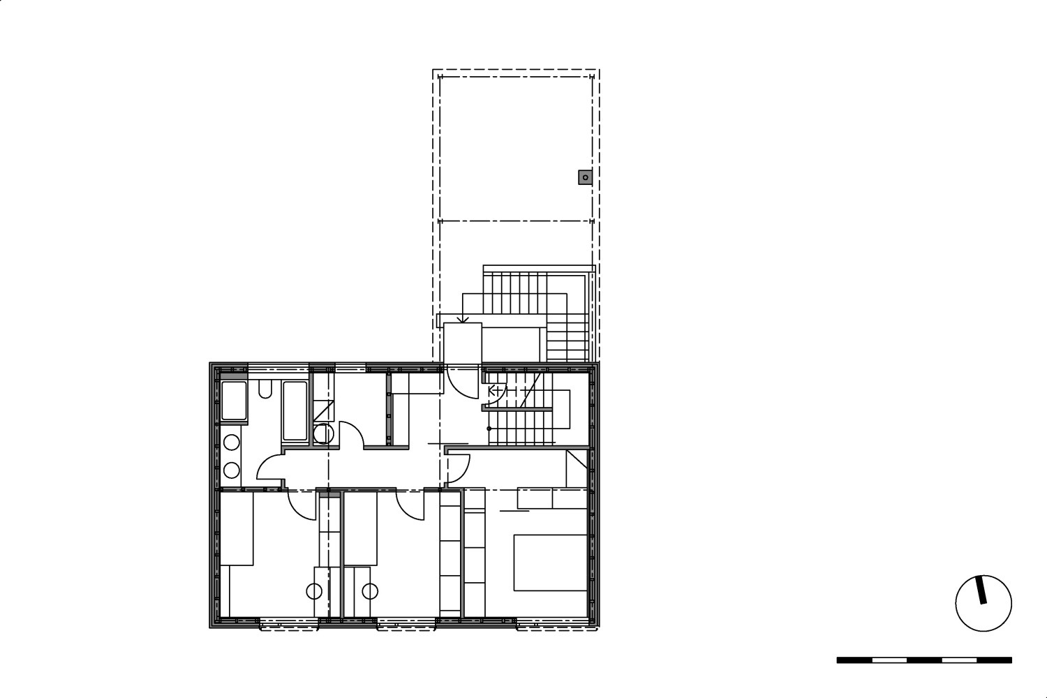
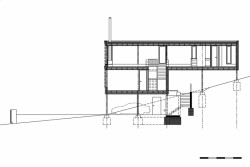
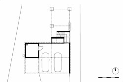
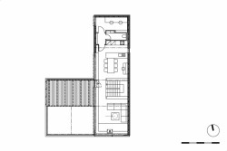
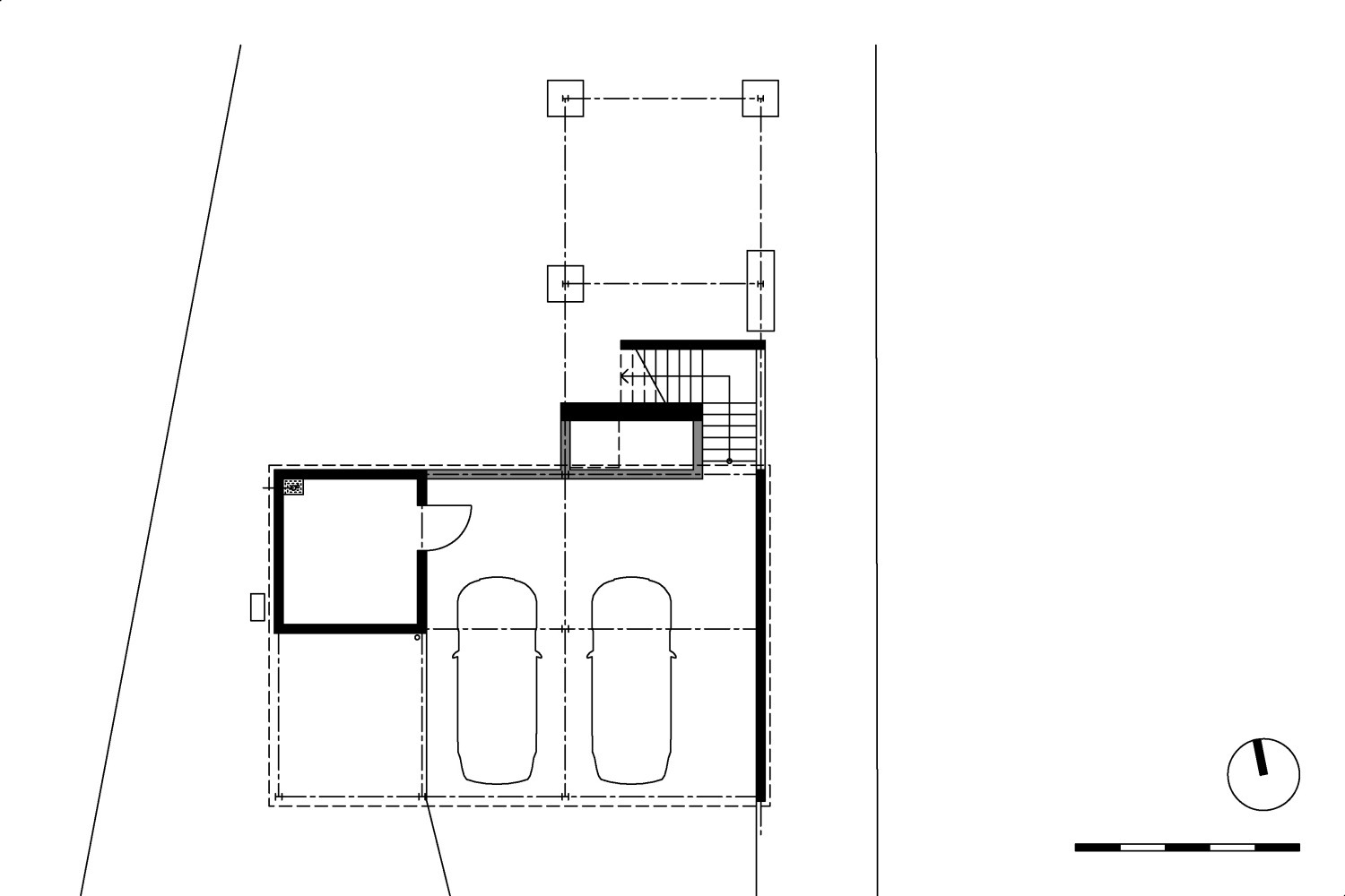
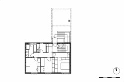
Do klidné chatové oblasti středočeských Řevnic navrhl ateliér Schaufler-Roskovec rodinný dům, který se svým řešením vypořádává s úzkým stoupajícím pozemkem. Dvoupodlažní dřevostavbu architekti posadili na ocelovou konstrukci, čímž vznikl krytý prostor pro parkování, které tak nemusí zbytečně ubírat ze zbytku rovinné části pozemku. Díky vyzdvižení hmoty nad terén navíc obě obytná patra získala panoramatický výhled do okolí, který se uživatelům domu otevírá pomocí celoprosklených stěn.

SCHAUFLER-ROSKOVEC, s.r.o. , 21. 1. 2019

  • Ateliér: SCHAUFLER-ROSKOVEC, s.r.o.
  • Autoři: Radovan Schaufler, Jakub Roskovec
  • Země: Česká republika
  • Město: Řevnice
  • Datum projektu: 2013
  • Realizace: 2014
  • Užitná plocha: 134.00m<sup>2</sup>
  • Zastavěná plocha: 125.00m<sup>2</sup>
  • autor: SCHAUFLER-ROSKOVEC, s.r.o. *
  • publikováno: * 21. 1. 2019
  • zdroj: * Autorská zpráva

Mohlo by vás zajímat

Generální partner
Hlavní partneři