Architektura / rodinné domy

Schaufler-Roskovec navrhli na okraji Prahy dřevostavbu s výhledem do údolí Berounky

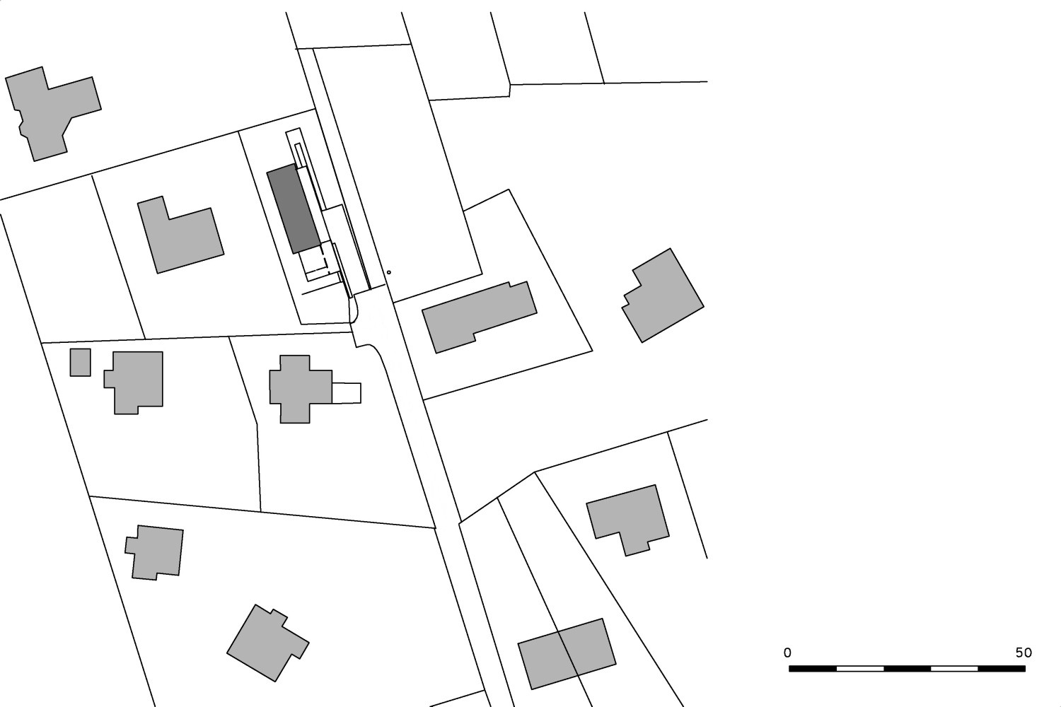
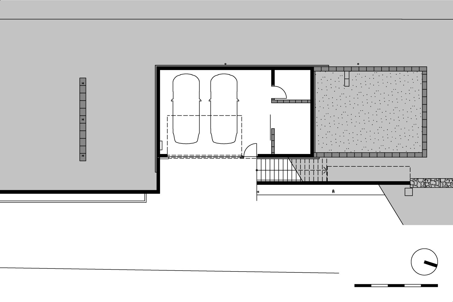
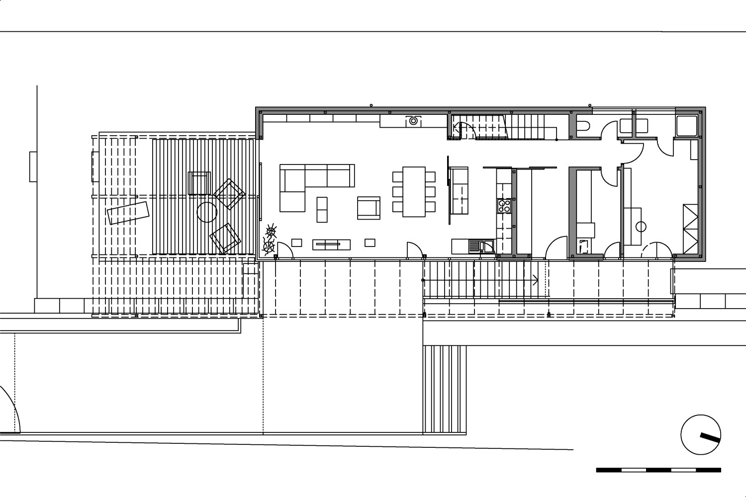
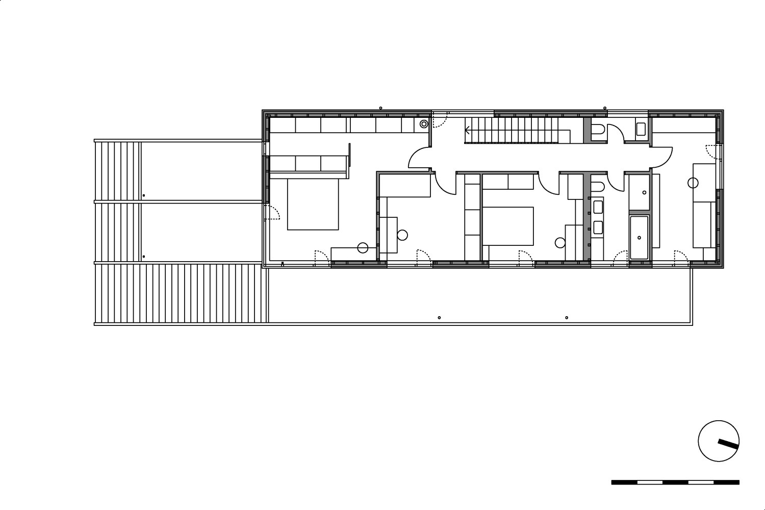
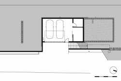
Ukrytá v korunách ovocných stromů shlíží ze svažitého pozemku do údolí, kde se klikatí řeka Berounka. Architekti Radovan Schaufler a Jakub Roskovec svým návrhem rodinného domu v okrajové pražské čtvrti Radotín vytěžili po stránce rozměrů stavby z úzkého a svažujícího se pozemku maximum. Na klesající terén navázali pevnou železobetonovou stěnou doplněnou gabionovými koši, horní obytná patra pak již tvoří lehká dřevostavba, jež se pomocí velkoplošného prosklení otevírá okolní přírodě.

SCHAUFLER-ROSKOVEC, s.r.o. , 2. 1. 2019

  • Autoři: Radovan Schaufler, Jakub Roskovec
  • Ateliér: SCHAUFLER-ROSKOVEC, s.r.o.
  • Země: Česká republika
  • Realizace: 2016
  • Město: Praha - Radotín
  • Datum projektu: 2015
  • Realizace: 2016
  • Užitná plocha: 189.00m2
  • Zastavěná plocha: 113.00m2
  • autor: SCHAUFLER-ROSKOVEC, s.r.o. *
  • publikováno: * 2. 1. 2019
  • zdroj: * Autorská zpráva

Mohlo by vás zajímat

Generální partner
Hlavní partneři