 
					
                    				Estonští architekti představili šetrný mobilní domek Koda House
Estonská skupina KODASEMA vyvinula prototyp soběstačného prefabrikovaného domku „KODA HOUSE“ postaveného na principech modulární architektury. S plochou skromných 25 metrů čtverečních, kterou obklopuje vakuově izolovaná betonová obálka, Estonci reagují nejen na nedostatek dostupného bydlení, ale také na problematiku vysoké energetické náročnosti, kterou stavitelství globálně vykazuje.
Tereza Hůrská , 13. 2. 2020
S nápadem, jak alespoň částečně přispět k řešení krize bydlení, která trápí nejen Londýn ale celé Spojené království a další země Evropy, přišla před třemi lety estonská architektonicko-inženýrská společnost KODASEMA. Ta vytvořila návrh malého, šetrného, mobilního domku, který by mohl snadno a efektivně zabrat prázdné pozemky ve městech a nabídnout tak bydlení těm, kteří si koupi a realizaci vlastní nemovitosti nemohou dovolit. Odpověď na globální problematiku v oblasti bydlení estonští architekti zhmotnili do podoby modulární „mikro stavby“ o ploše pouhých 25 metrů čtverečních, která může kromě bydlení sloužit také jako kancelář, učebna, dílna či kavárna.
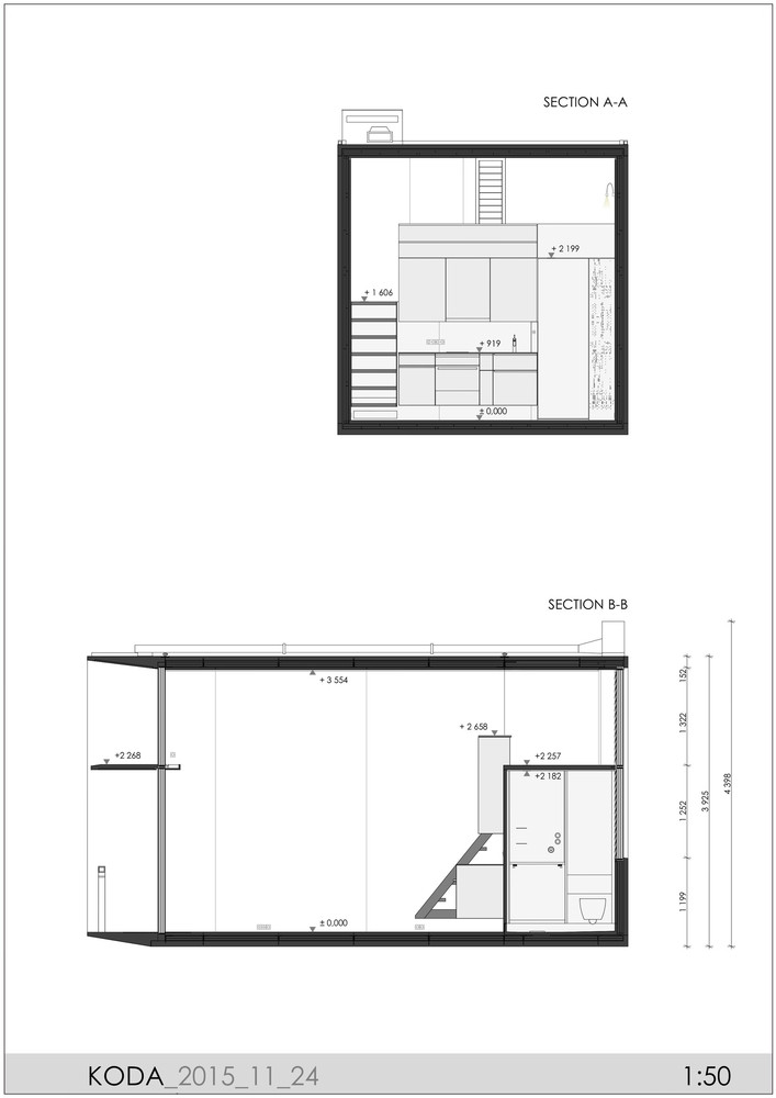
Britský prototyp projektu KODA HOUSE disponuje obytným prostorem bezprostředně navazujícím na vstup do objektu, koupelnou ukrytou za kuchyňským koutem a spacím patrem. Celá otevřená dispozice je „zabalena“ do vakuově izolovaných betonových stěn, které dům bezpečně chrání z hlediska akustické i energetické izolace. Vstupní fasáda je pak po celé ploše zasklena izolačním čtyřsklem.
Více k tématu
 
                    Vzhledem k tomu, že mezi hlavní body filosofie skupiny KODASEMA patří eliminace energetické spotřeby staveb, využívá KODA HOUSE principu solárních panelů, které jsou instalovány na střeše. Do objektu je dále integrován inteligentní systém LED osvětlení a řízeného větrání.
Nespornými výhodami KODA HOUSE jsou však především jeho jednoduchá realizovatelnost (jak jeho autoři tvrdí, dům je možné postavit i demontovat během pouhých 7 hodin) a v neposlední řadě pak také jeho cena okolo 4 a půl milionu korun, která v sobě zahrnuje veškeré výdaje od nákladů na projekt, přípravu pozemku až po realizaci samotného objektu a jeho připojení na inženýrské sítě. Další z výhod estonského projektu je fakt, že nepotřebuje základy, což umožňuje jeho snadné přemístění bez zásadních zásahů do pozemku.
- Země: Velká Británie
- Město: Watford
- Realizace: 2016
- Zastavěná plocha: 25.00m2
 
                             
                             
                             
                             
                             
                                 
            		 
            		 
                     
                     
                             
                             
                             
                             
                             
                             
                             
                             
                             
                             
                             
                             
    
	 
            		 
            		 
            		 
            		 
            		 
            		 
            		 
            		 
                     
                     
                     
            		 
            		 
            		 
            		 
            		 
                     
					 
                                                         
                                                         
                                                         
                                                         
				 
				 
				 
				 
				 
				 
				 
				 
				 
				 
				 
				 
				 
				