
Francouzští J+e architectes navrhli pro své rodiny společné bydlení s vlastním ateliérem na venkově
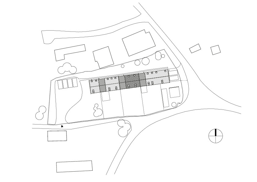
Na jihu Bretaně u drobného městečka Erdeven se kamarádi, bývalý spolužáci a nynější kolegové ze studia j+e architectes rozhodli realizovat nový koncept vlastního společného bydlení. Na třech sousedících pozemcích tak vybudovali jeden podlouhlý objekt propojující hned tři rodinné domy, ateliér architektů a další společné prostory do jednoho kompaktního celku.
Tereza Staňková , 18. 8. 2022 / Advertorial
Na blízku oceánu
Benjamin Jardel a Nicolas Epaillard, zakladatelé ateliéru j+e architectes, se znají již z dob svého studia na architektonické fakultě v Bretani. Právě z jejich přátelství vzešla v roce 2013 i myšlenka společného bydlení a konečný návrh projektu pod názvem Les Pieds Vertes, v překladu “zelené nohy”. Důležitým tématem velkorysého a v mnoha ohledech inovativního projektu byla také celková ohleduplnost k životnímu prostředí včetně eliminace emisí uhíku díky použití lokálních materiálů a práci se sluncem. Izolaci domu kupříkladu zajišťuje výplň ze slámy a konopí.
Více k tématu

Bydlení a ateliér v jednom
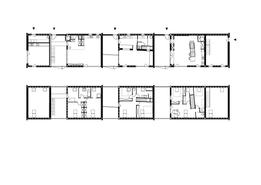
Celý objekt je rozdělen na čtyři hlavní části – tři byty rodin a samotnou architektonickou kancelář. Architekti to tak mají do své práce jen pár kroků. Jednotky jsou propojeny prosklenými atrii, sami majitelé o nich mluví jako o sklenících, která do interiéru přívádějí dostatek denního světla a slouží také k akumutaci tepla ze slunečního záření. Kromě jednotlivých bytů a kanceláře dům nabízí taky společné prostory, jako je prádelna, zeleninová zahrada, společenská místnost nebo parkovací stání.

Les Pieds Vertes, j + e architekti / Benjamin Jardel, Nicolas Epaillard © Antoine Mercusot
Regulacím navzdory
Umístění domu v ochranném krajinném pásmu lokality Erdeven a s tím spojené přísné regulace do velké míry určily finální tvar novostavby – místní regulativy totiž nařizují přesně danou výšku hřebene a sedlovou střechu pod úhlem 45 stupňů. Architektům se nicméně povedlo prosadit alespoň to, aby dvoupodlažní objekt pokrývaly štípané dřevěné šindele namísto (pro tento region typické) bílé omítky. A svolení dostali i v případě zelené střechy.

Světlo hraje prim
Vzhledem k řešení stavby bylo potřeba, aby architekti detailně promysleli práci se světlem, které se nakonec stalo stěžejním tématem celého projektu – i díky zmiňovaným „skleníkům“. „Během procesu navrhování jsme důkladně zvažovali správnou intenzitu denního světla v každé místnosti. Slunce tak skrze vertikální okna zaplavuje obývací pokoje, zatímco střešní okna VELUX zajišťují dostatečné množství denního světla v ložnicích,“ popisuje jeden z architektů (a spolumajitelů) budovy Benjamin Jardel.
„Sluneční světlo oživuje naši architekturu a je zároveň naším primárním zdrojem energie pro vytápění. Díky účinné izolaci a materiálům s vysokou schopností akumulace dokážeme pomocí systému s dvojitým průtokem tepelnou energii distribuovat v celém domě. Denní světlo nás tak udržuje v neustálém kontaktu s naším prostředím, jeho účinek doslova cítíme po celém těle,“ vysvětluje architekt další důležitý aspekt projektu.



- Autoři: Benjamin Jardel, Nicolas Epaillard
- Země: Francie
- Město: Erdeven
- Datum projektu: 2013
- Realizace: 2018