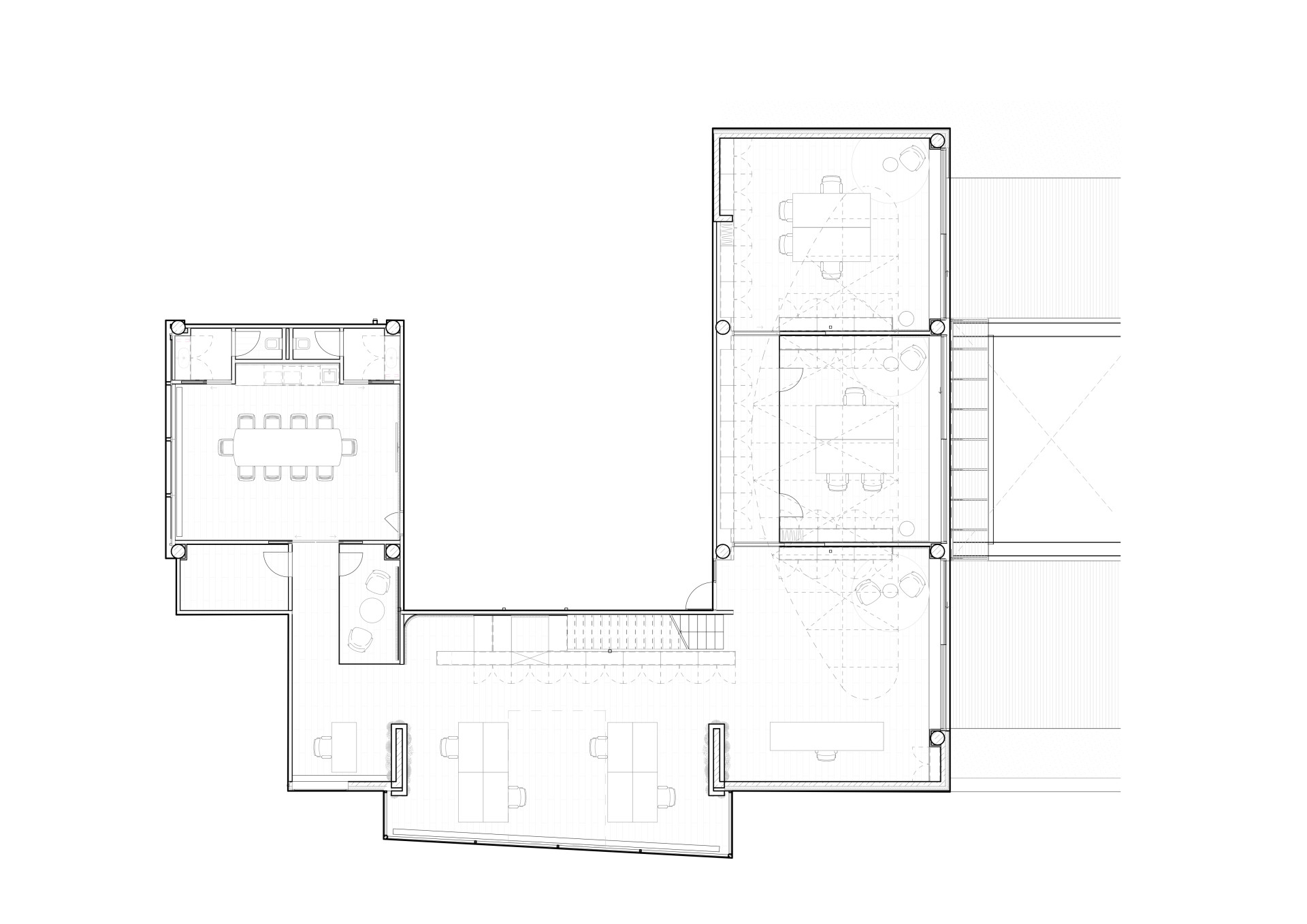
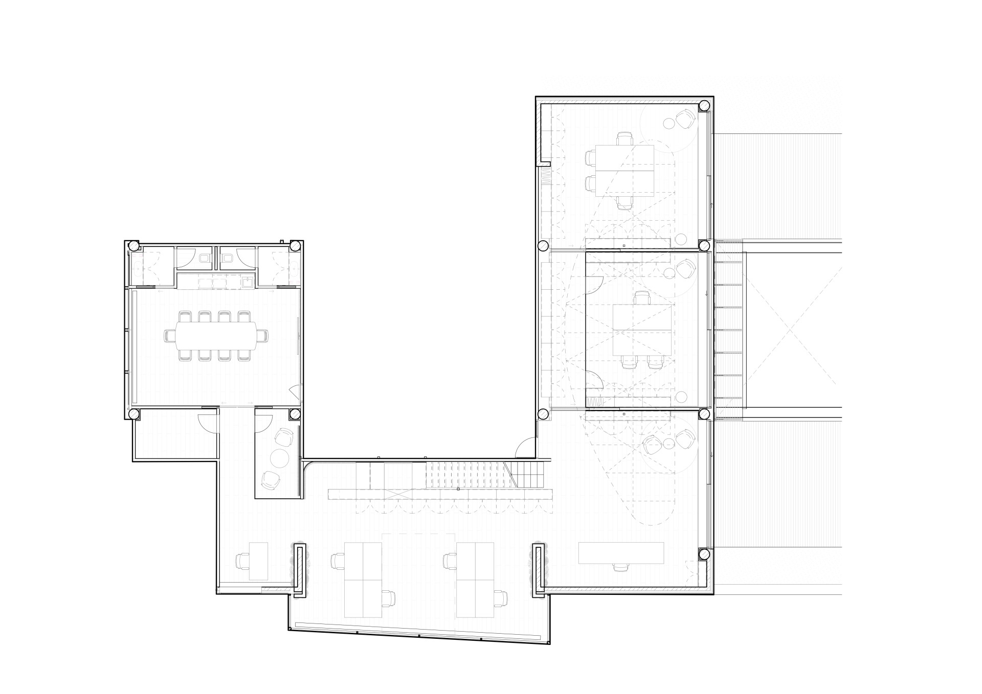
Prostor prokouknul odstraněním příček a podhledů. (Kanceláře Deveron v Blueriot; CISARSTUDIO)
Prostor prokouknul odstraněním příček a podhledů. (Kanceláře Deveron v Blueriot; CISARSTUDIO) Foto: Alex Shoots Buildings
Architektura / administrativní stavby

Velryba pod betonovou klenbou. Kanceláře inspirované letectvím a oceánem

Investor je nadšenec do letectví a oceánů, a tak se tyto světy propsaly i do kanceláří jeho firmy. Rozměrný objekt přezdívaný křídlo velryby prozářil původně potemnělé prostory administračky z devadesátých let.

EARCH.CZ , 4. 12. 2025

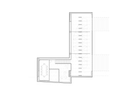
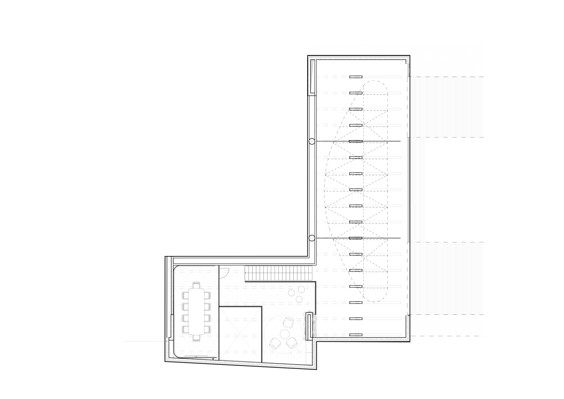
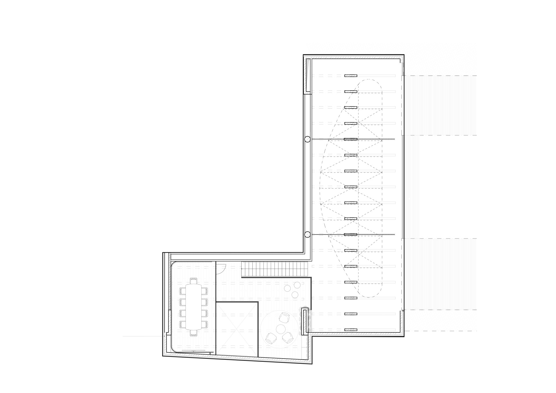
Administrativní budova stojící kousek od Rozvadovské spojky v Praze zvenčí nevypadá nijak výjimečně – pochází z 90. let a její vnitřní prostory trápily obvyklé neduhy: příčky blokovaly světlo, podhledy snižovaly stropy a atmosféra tady prostě nebyla nic moc.

Architekt Tomáš Císař se svým studiem CISARSTUDIO tyto vstupní problémy odstranil. Rekonstrukce prostor přeměnila na otevřené a prosvětlené kanceláře, v nichž nyní sídlí firma Deveron. „Zadáním bylo vytvořit kanceláře, které propojí funkčnost s výrazným konceptem, jenž by odpovídal osobním vášnivým zájmům investora – letectví a potápění,“ vysvětluje Tomáš Císař v autorské zprávě.

Foto: Křídlo velryby a obrácený trup lodi

Když se sejmuly devadesátkové sádrokartonové podhledy, odhalila se klenba z monolitického betonu, která dnes definuje charakter celého kancelářského prostoru a podle Tomáše Císaře připomíná obrácený trup lodi.

Klenba současně slouží jako pozadí „velrybího křídla“ – akusticko-světelného objektu, který prochází velkou částí kanceláří. Měří celkem 16 metrů, je z hliníku a komponentů 3D tisku, potažený polyvinylovou fólií. „Objekt je inspirovaný kostrou plejtváka a lehkostí Blériotova letadla. Oceán a nebe, hloubka a vzlet, se zde spojují v harmonickém spojení přírody, techniky a lidské kreativity,“ komentuje velrybí křídlo Tomáš Císař.

Foto: Korálově červená a různé odstíny modré jsou odvozené z vášně investora pro letectví a oceán.

Odkazy na letectví a oceán prostupují celým interiérem – jsou totiž vášní investora. Hliníkové a nerezové detaily se v kancelářích mísí třeba s korálově červenou, jež má upomínat na legendárního „Rudého barona“ – letce Manfreda von Richthofen, což byl nejúspěšnější stíhač první světové války. Rudý baron se mu přezdívalo podle barvy letadla.

Korálová červená se v prostorech potkává ještě s oceánskou a nebeskou modrou. Vše pohromadě drží neutrální betonová šeď stropu a pak bílá, která se objevuje na stolech nebo třeba perforovaných dvířkách jinak barevných úložných prostor. A do kanceláří se dostala také zeleň, popínavky porůstají původní pilíře.

„Světlo, materiály a scénografie podporují energii prostoru a inspirují k práci,“ dodává ještě Tomáš Císař. A prostor je také prakticky rozdělený na několik středních open spaců, jsou v něm zasedačky, kuchyňka, recepce s lounge, prostě všechno, co současné kancelářské provozy potřebují.

  • Autoři: Tomáš Císař
  • Ateliér: CISARSTUDIO
  • Země: Česká republika
  • Realizace: 2024
  • Investor: Deveron
  • Adresa: K Hájům 1233/2, 155 00 Praha
  • Realizace: 2024
  • Užitná plocha: 340 m²
  • Fotograf: Alex Shoots Buildings
  • Podhledy: Barrisol
  • Skleněné příčky: Verti
  • Nábytek a akustické stěny: Cre8
  • Alucobondové obklady: Feal
  • Vestavěný nábytek: Fs Interier
  • Svítidla: Teto Lightning
  • Nástěnné malby: Ganbold Dalajn
  • Elektro koncové prvky: Monobrand

Mohlo by vás zajímat

Generální partner
Hlavní partneři