Rodinná vila, která využila svažitý terén ke svému prospěchu. (Block House v Šáreckém údolí v Praze; Studio MA)
Rodinná vila, která využila svažitý terén ke svému prospěchu. (Block House v Šáreckém údolí v Praze; Studio MA) Foto: Václav Novák
Architektura / rodinné domy

Rodinná vila, která využila svažitý terén ke svému prospěchu

Propojení moderní architektury s okolní přírodou dokazuje rodinná vila Block House. Ačkoliv stojí dům ve svažitém terénu, není zde překážkou, naopak příležitostí k architektonickému vyjádření, jež akcentuje přirozený charakter místa a obohacuje život jeho obyvatel.

Aquamarine Spa / EARCH.CZ , 4. 12. 2025 / Advertorial

Ačkoliv se tato část Prahy nachází jen kousek od rušného centra, v okolí Divoké Šárky jako by město ustoupilo klidu venkova. Mezi rozmanitými rodinnými domy, od tradičních staveb po moderní novostavby, vzniká prostředí, které spojuje přírodu s moderním způsobem života. Patří sem i Block House od Studia MA, dům, který propojuje současnou architekturu s působivou přírodou a dokazuje, že „venkovský“ klid lze zažít i uprostřed Prahy.

Foto: Pohled z ulice

Zadáním byla moderní a dynamická stavba zároveň akcentující krásy Šáreckého údolí. Právě výhled do údolí a propojení s přírodou byly pro zadavatele zásadní. „O domě a o jeho kompozici jsme přemýšleli tak, abychom právě ty výhledy maximalizovali a směřovali vše ke krásnému výhledu jak na kostel, tak do zahrady,“ popisuje kompozici stavby hlavní architekt Studia MA Dan Merta. Výsledek přináší volnost a klid. Na jedné straně domu volnost otevřeného výhledu do okolí, na straně druhé klidné zákoutí soukromí zahrady s nerezovým bazénem.

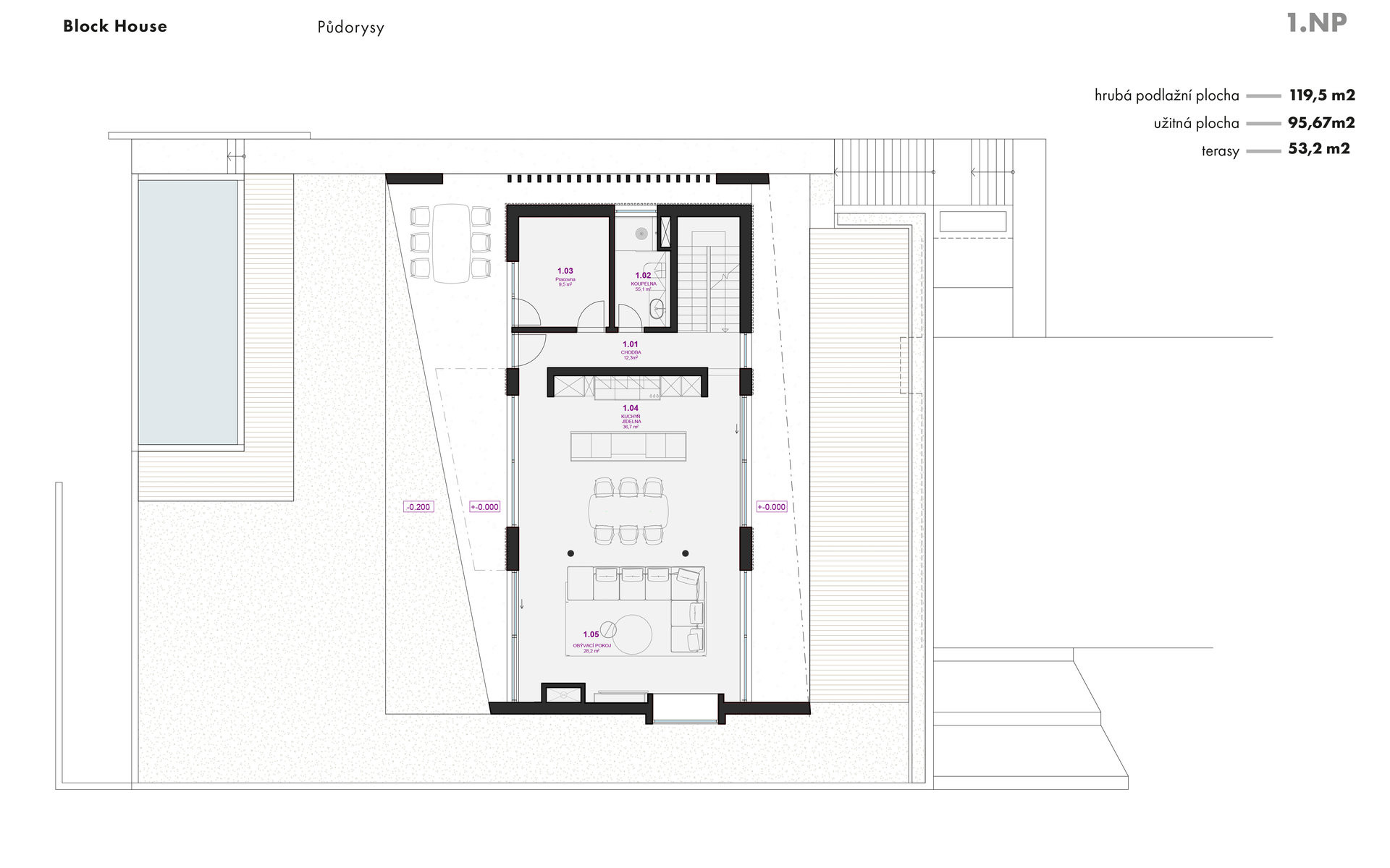
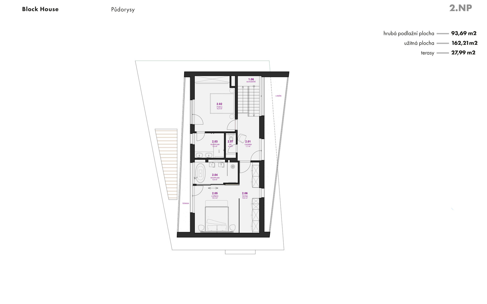
Projekt vznikal v letech 2021–2025 a jeho architektura stojí na dialogu s krajinou, výhledy a precizní prací s hmotou. Dispozice stavby vychází z nelehkého svažitého terénu, který využívá ke svému prospěchu. Řešením nerovnosti terénu se stalo vertikální rozdělení prostoru pomocí tří kvádrů, tedy bloků situovaných v 10°–13° úhlu, po nichž dům získal své jméno. Bíle omítnuté bloky jsou zde ústředním motivem, doplněné o dřevěné lamely, jež odlehčují strohost funkcionalisticky čisté architektury a propojují ji lépe s okolní přírodou. 

Foto: Dispozice stavby složené z bloků vytváří optický klam i odstínění interiéru

Šikmé bloky přitom vytvářejí optický klam. Základní geometrie dispozice je pravoúhlá, aby nebyly v interiéru šikmé stěny. K té architekti Studia MA předsadili přesahy, které geometricky rozehráli. Přesahy přitom nejsou jen vizuálním prvkem činícím architekturu objektu atraktivní, ale zároveň mají svou funkci. Zajišťují, aby se dům vlivem rozsáhlých prosklení nepřehříval a poskytují stín a přístřeší, kdy majitelům v přízemí přirozeně vzniká zastřešená terasa. Jsou ale také logicky orientovány vůči výhledům a vzhledem k zastínění, jak zmíněného slunce, tak pohledů od sousedů.

Dům, vyvýšený vzhledem k terénu, se tak otevírá výhledům do okolní krajiny a zároveň poskytuje dostatek soukromí. Nádherné výhledy do krajiny Šáreckého údolí se nám přitom nabízejí při každé příležitosti, ať už z přední terasy, z interiéru domu či z nejvyšších úrovní zahrady. Otevřenost stavby nabízí průhledy domem i mezi stěnami vnitřní dispozice a vnějších sešikmených bloků, rámujících výhled na dejvický kostel sv. Matěje.

Uspořádání projektu je zónované v návaznosti na svah, měnící se světlo během dne a denní rytmus rodiny. Block House je prosklenými stěnami orientován na východ/západ. Z jižní strany, v nižší úrovni terénu svým prvním patrem s garážemi, zázemím a soukromým spa, přirozeně navazuje na ulici. Vyšší patra s obytnými prostory se otevírají do zahrady, jež je ze severní strany krytá a vytváří tichou soukromou zenovou oázu. Pozemek dále pokračuje výše, do přirozenější části zahrady, která zde plynule navazuje na okolní louky a lesy.

Krajina a sepjetí s přírodou je přitom základním motivem. Návrh zahrady pracuje s organickými křivkami po boku přímých linií dělících stěn, čímž kontrastuje s přísnou geometrií domu. Důraz je kladen na využití benefitů svažitého terénu, který jednak nabízí výhledy, ale také rozčlenění do stupňů. Terénní úpravy umožnily vytvoření rovných ploch trávníku vhodných pro rodinné vyžití. Ze severní strany domu tak vzniklo klidné privátní zákoutí s bazénem a prostorem pro relaxaci.

„Zasazení bazénu bylo součástí návrhu celé kompozice zahrady, kdy jsme ho umístili tak, aby byl zakomponován hezky do svahu a k opěrným stěnám a doplnil tak tuto přírodní kompozici a zenovou část zahrady,“ popisuje umístění bazénu Dan Merta. Nerezový bazén Imaginox zvolil pro jeho unikátní čistý design, čistotu a dlouhodobou kvalitu materiálu, který nedegraduje. Celý dům je ovládán moderními Smart Home technologiemi, k nimž je možné připojit také bazénovou technologii. Bazén v klidové zóně i jeho plně automatizovaná technologie, která se o údržbu bazénu stará sama, tak nenarušuje pohodlí obyvatelů domu.

Také promyšlené zasazení bazénu do celkové kompozice je důkazem, že Block House využívá maximum z charakteru pozemku a nabízí harmonický život s klidem přírody na dosah.

Mohlo by vás zajímat

Generální partner
Hlavní partneři