
Gutgut přestavěli výrobní halu v post-industriálním areálu v Bratislavě
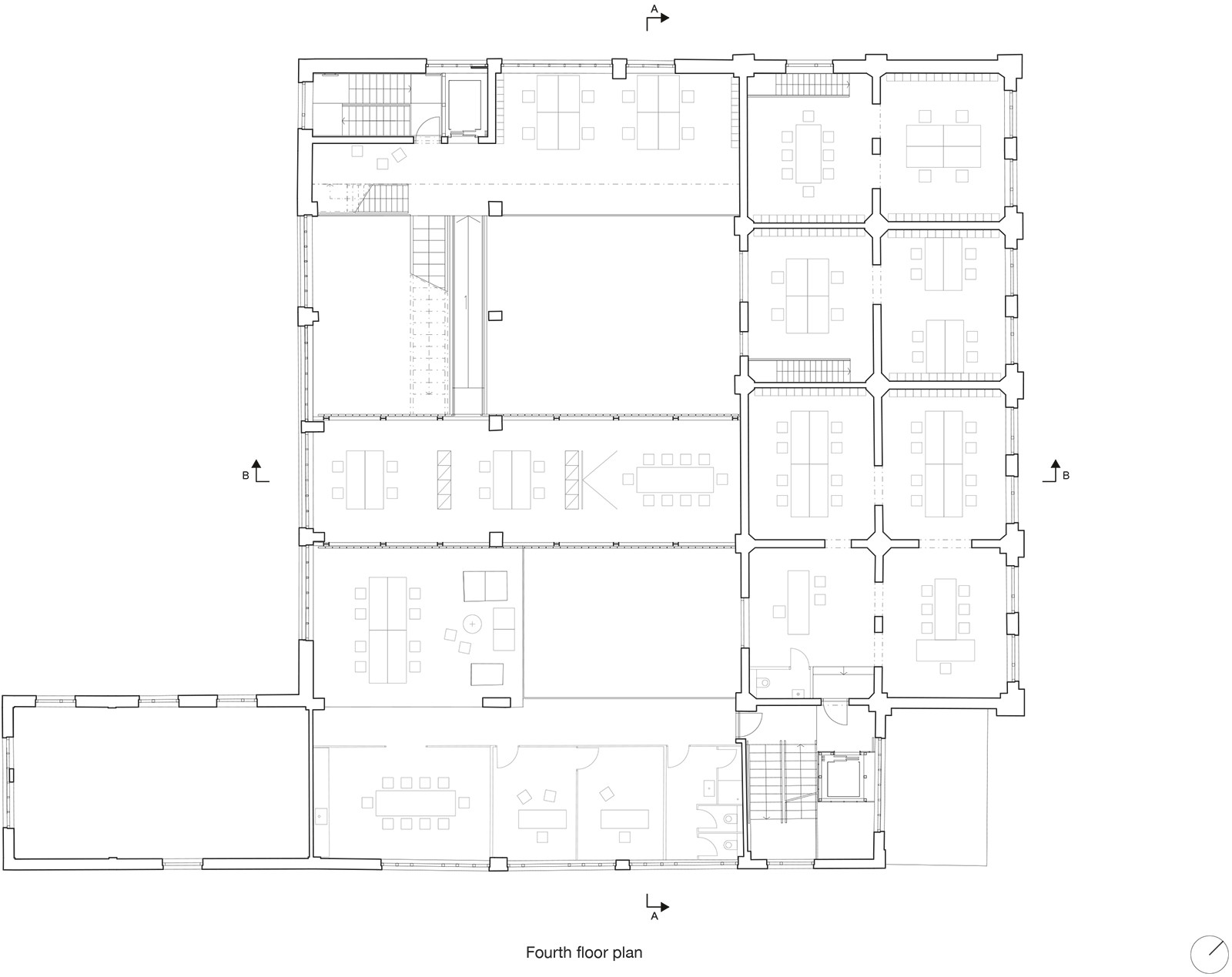
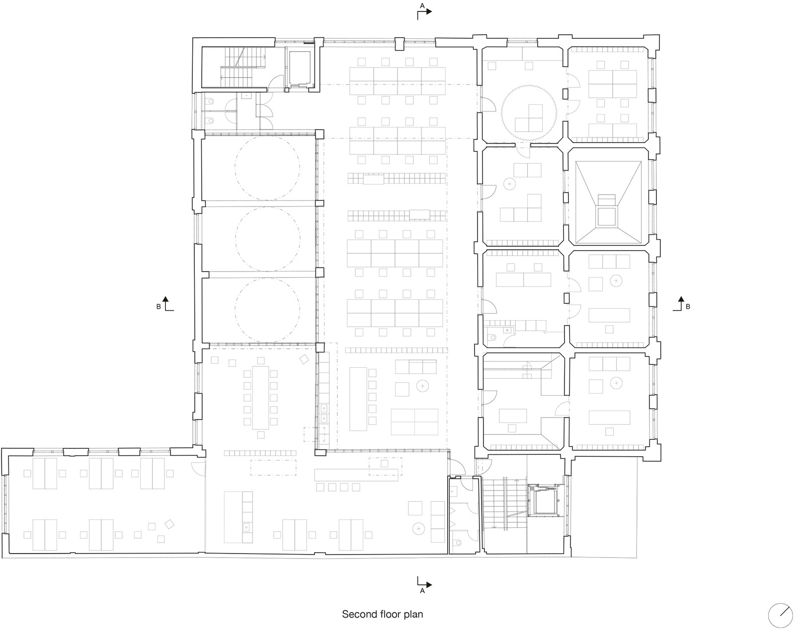
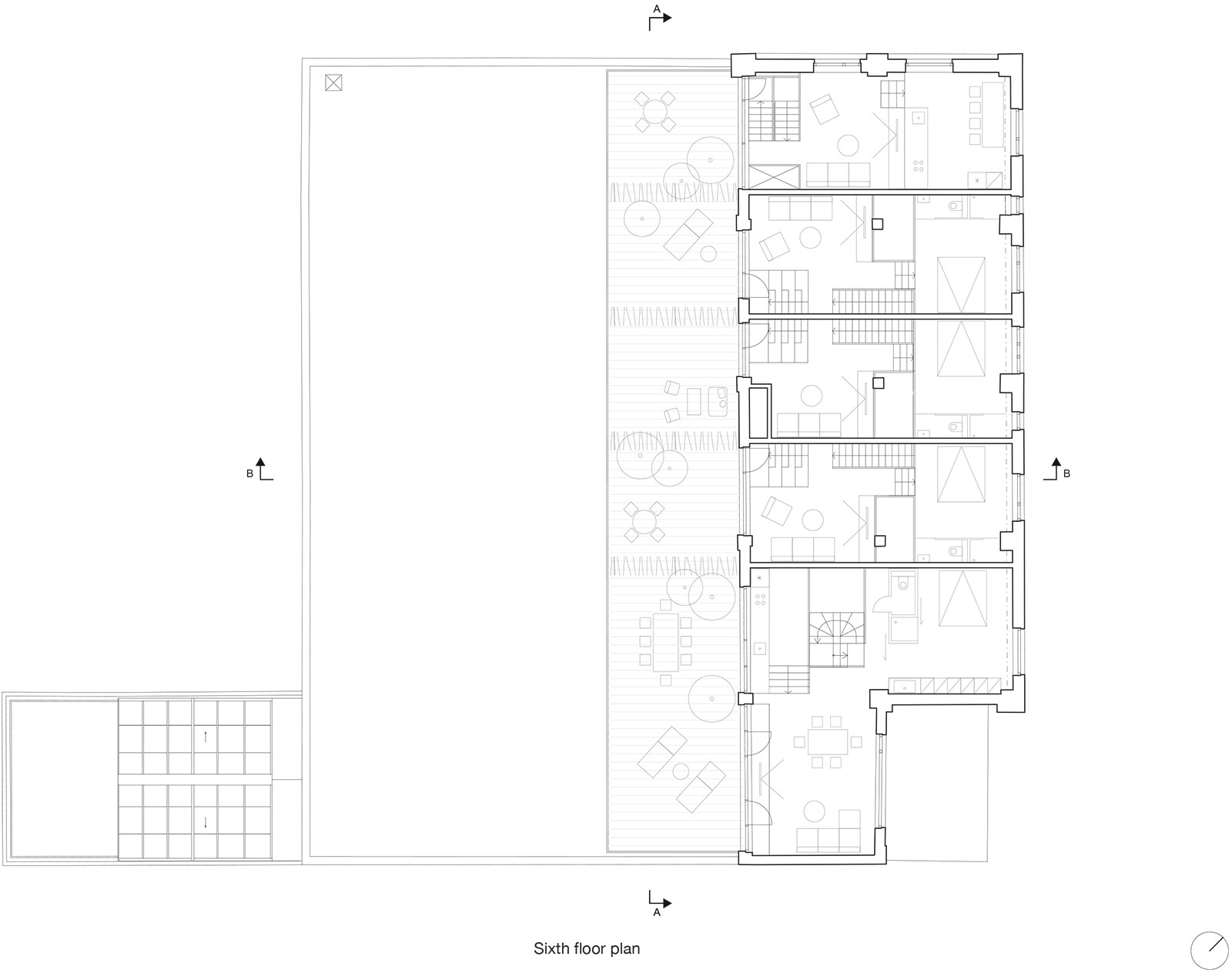
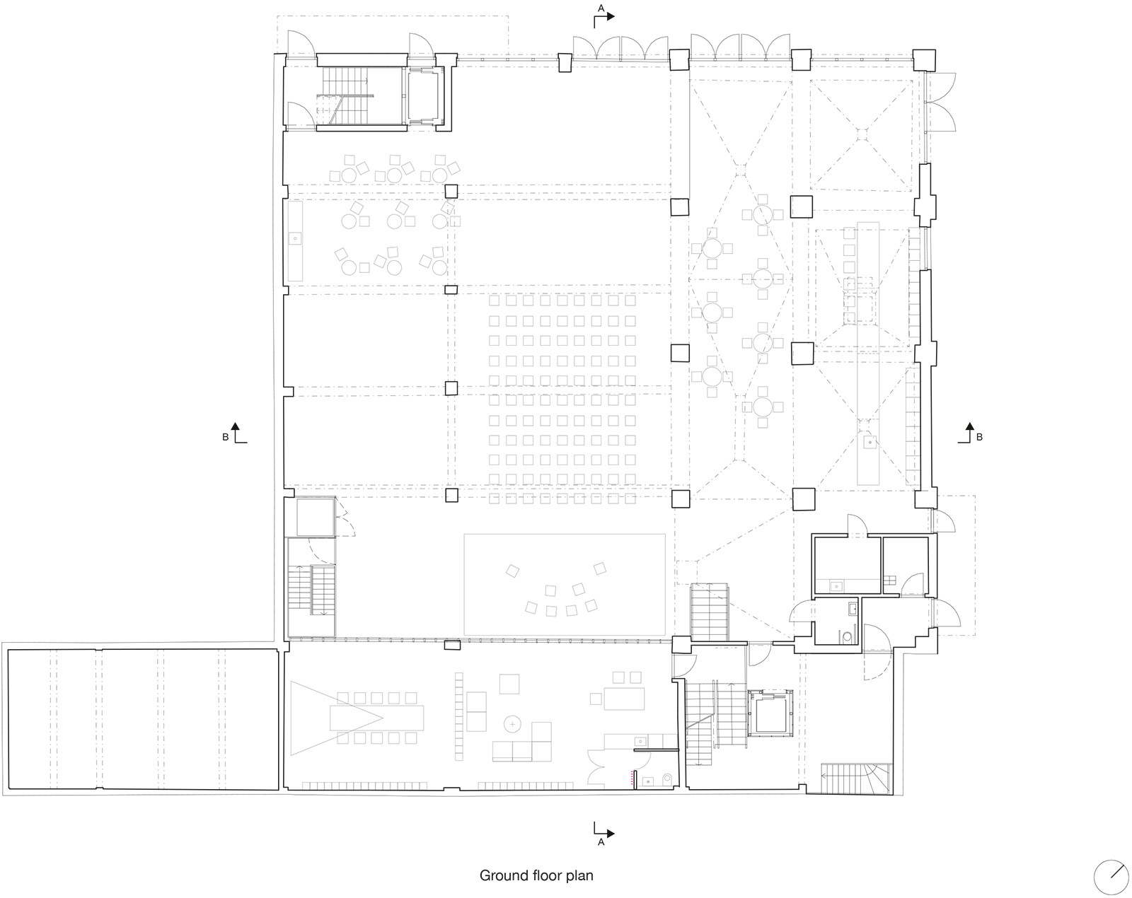
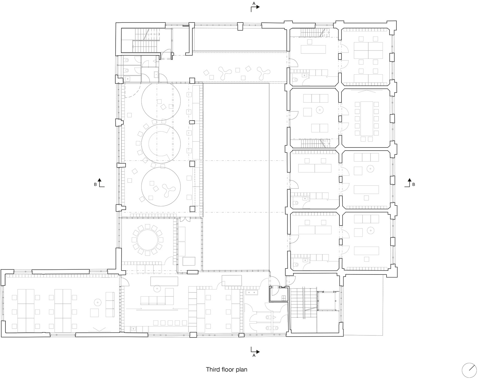
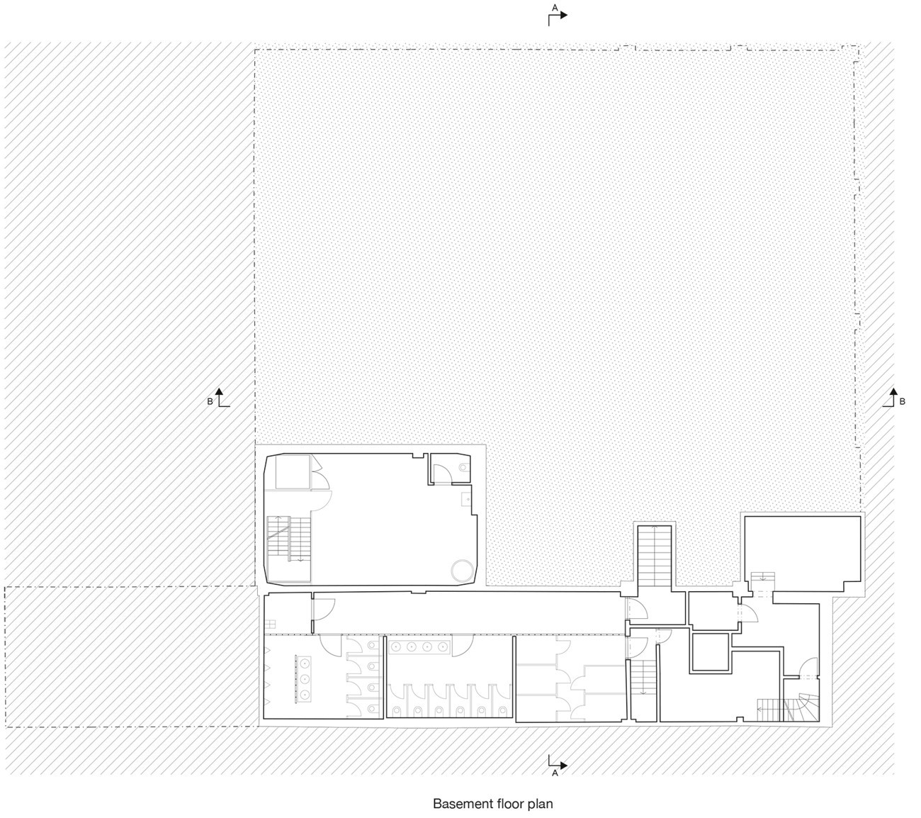
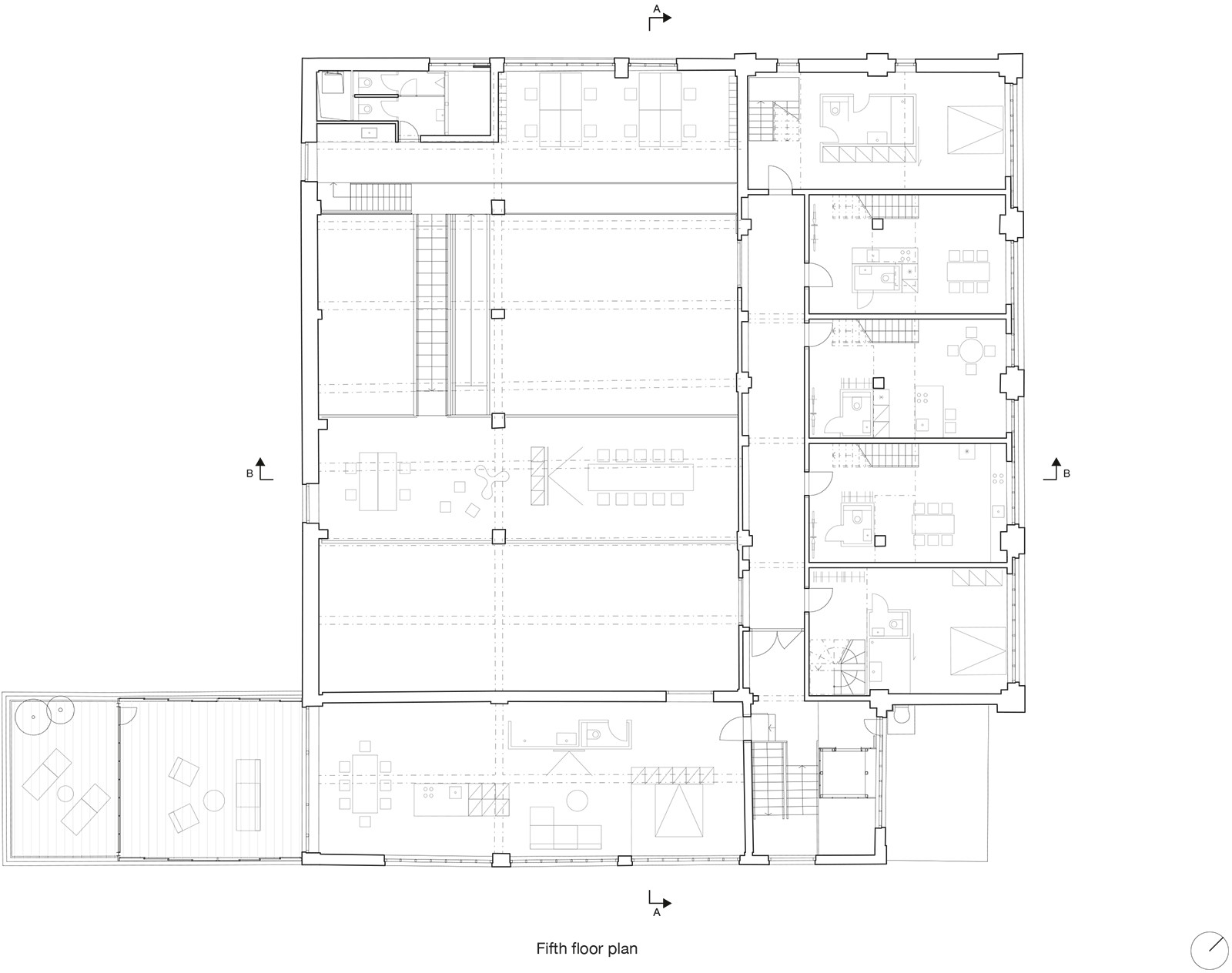
Slovenský architektonický ateliér gutgut zrekonstruoval výrobní halu, která je součátí post-industriálního areálu v Bratislavě. Přestavba zachránila chátrající objekt a vytvořila z něj multifunkční objekt sloužící kultuře, administrativě i bydlení. Architekti využili stávající konstrukci ze železobetonu. S původním objektem návrh pracuje jako s "obalem", do kterého architekti vložili další objekty. Nové zásahy využívají materiály, které jsou v záměrném kontrastu k racionální podstatě industriální stavby.
gutgut , 17. 5. 2018
- Autoři: Jana Benková, Tomáš Vrtek
- Ateliér: gutgut
- Spolupráce: Roman Žitňanský, Patrícia Botková, Katarína Bergerová
- Země: Slovensko
- Generální dodavatel: ise s.r.o.
- Město: Bratislava
- Ulice, číslo: Turbínová, 13
- Datum projektu: 2015
- Realizace: 2017
- Užitná plocha: 3 695.00m2
- Zastavěná plocha: 857.00m2
- Plocha pozemku: 2 676.00m2
- Autorka grafickej identity a infosystému: Ľubica Segečová