
Ateliér GutGut oživil zastaralý bytový dům v areálu bývalých bratislavských tiskáren Svornosť
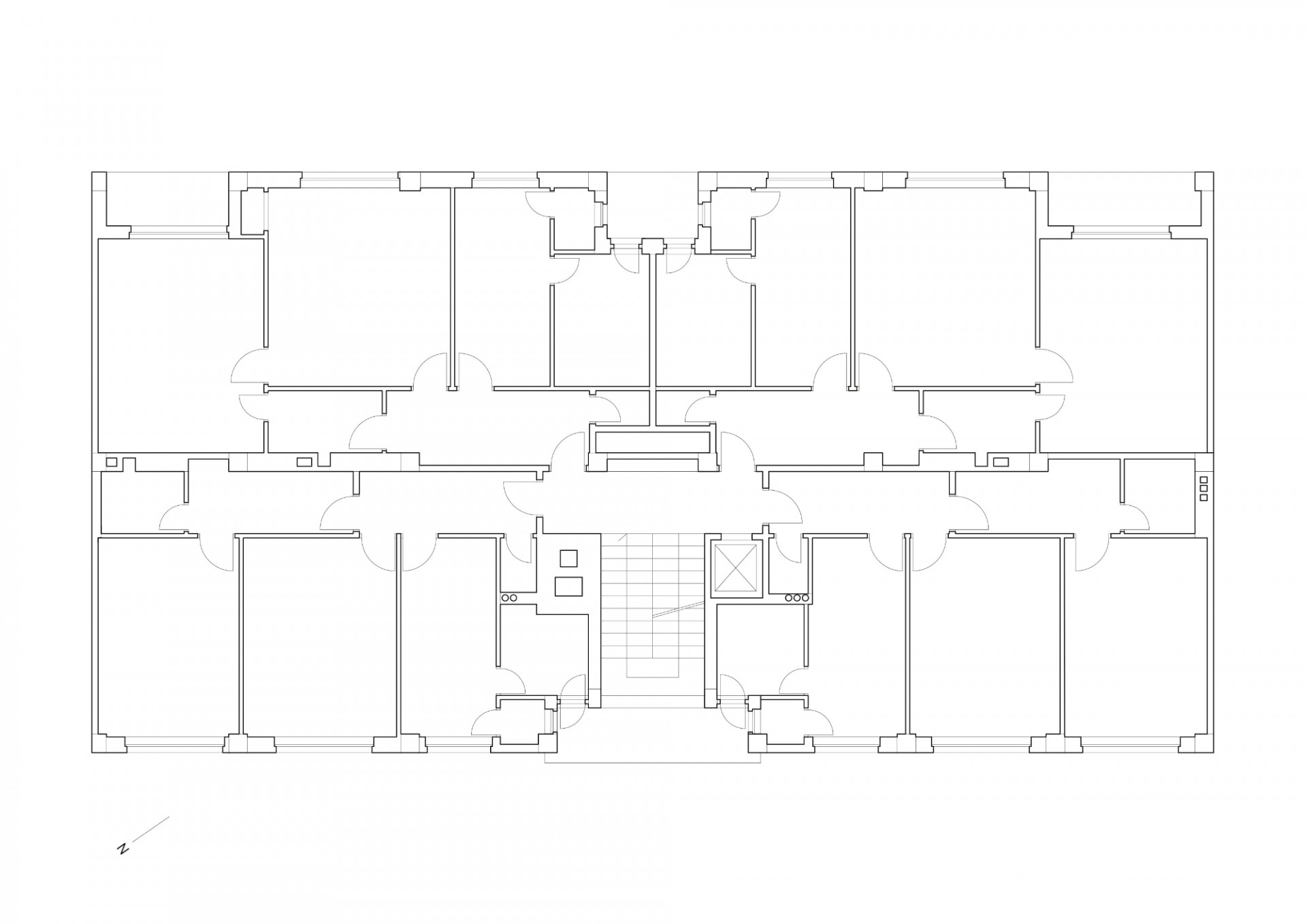
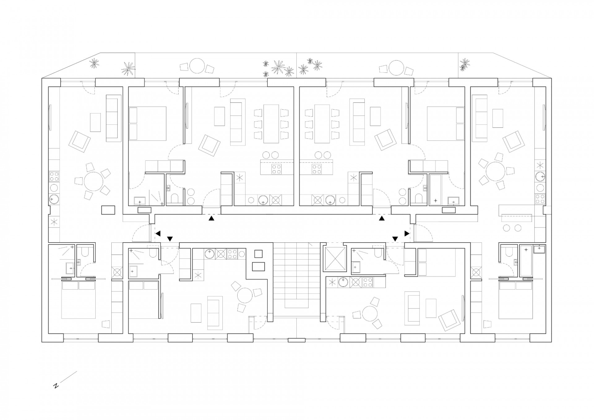
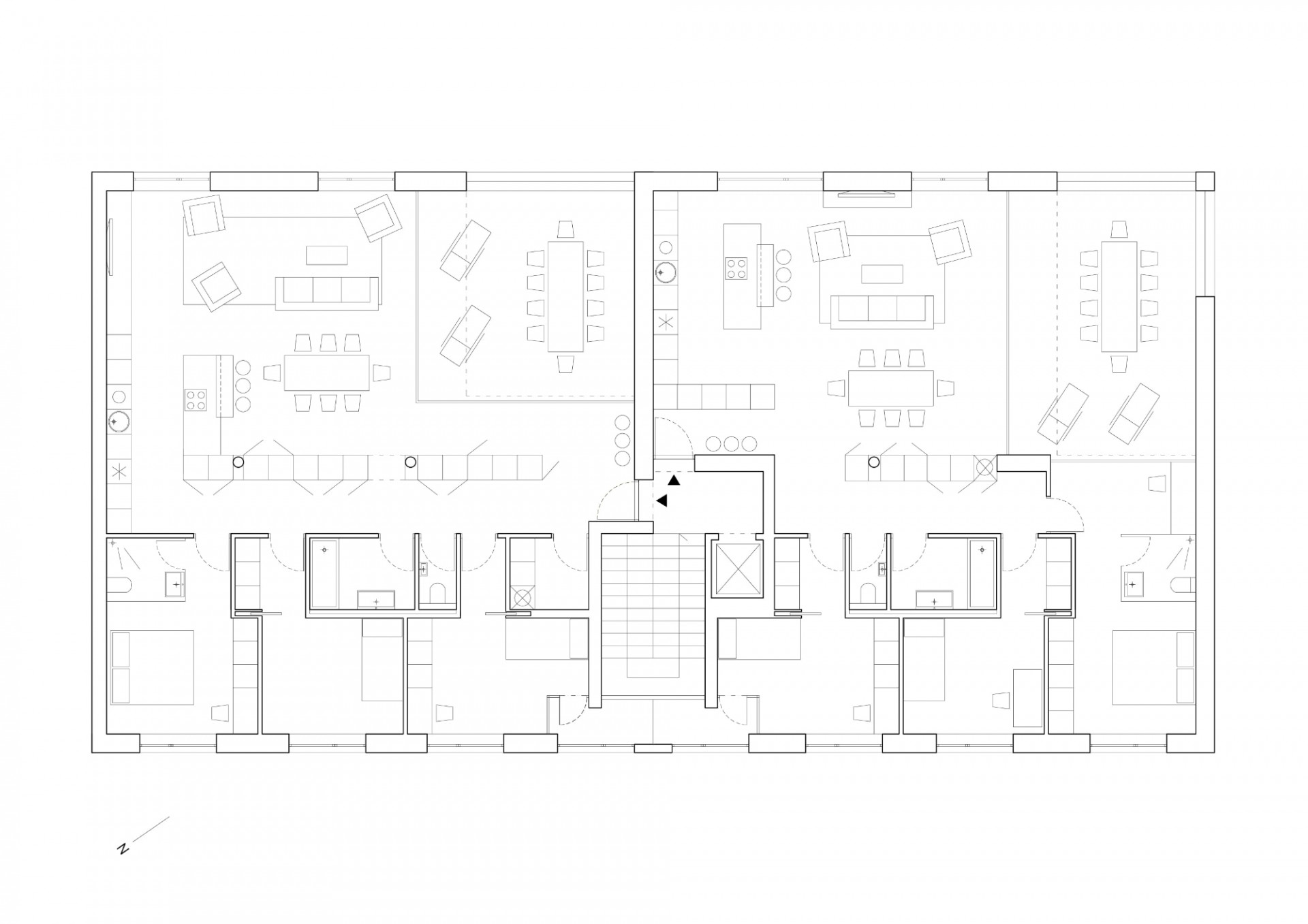
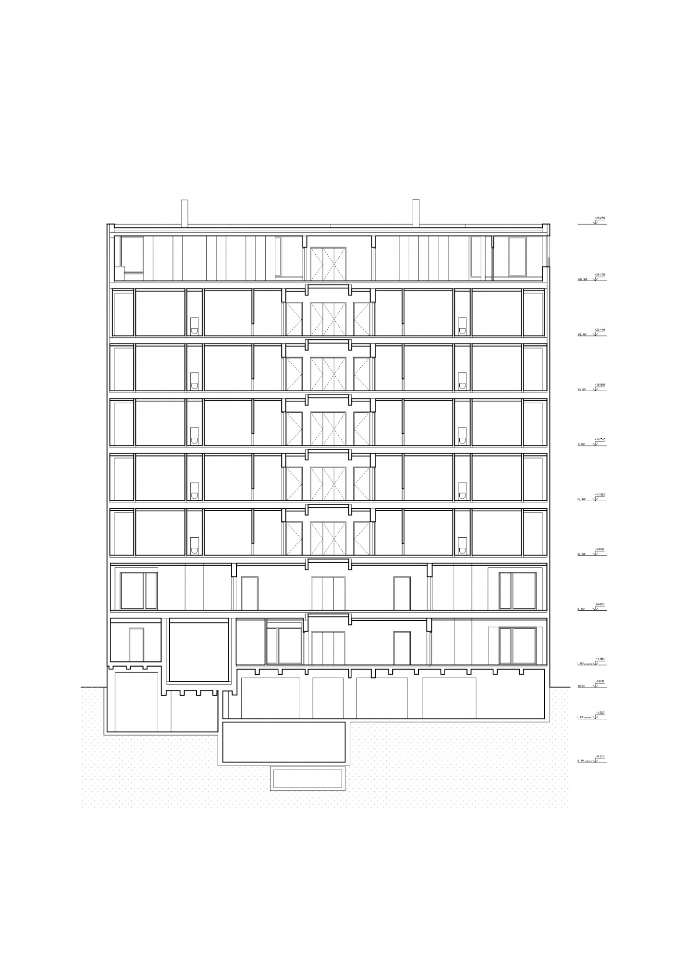
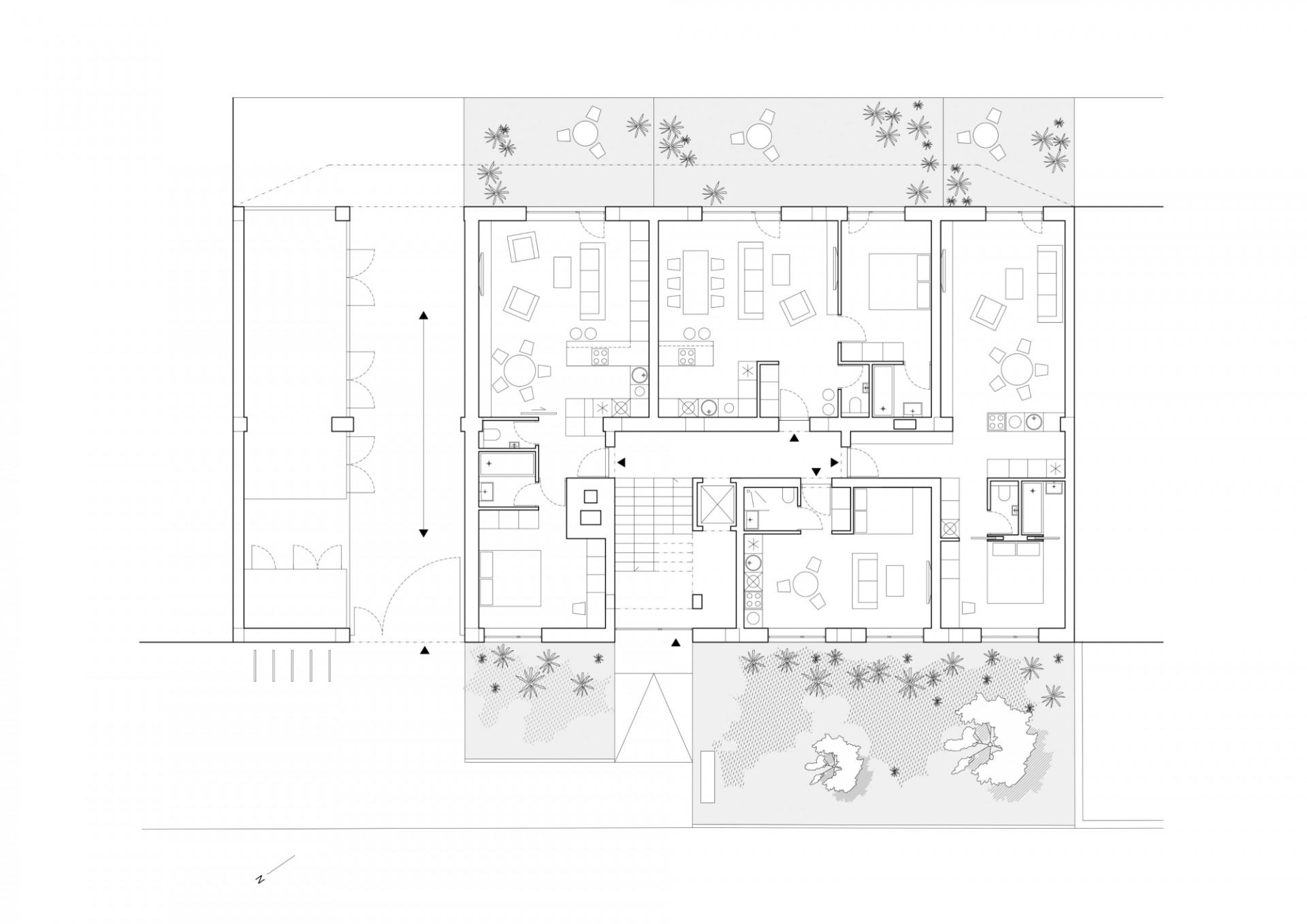
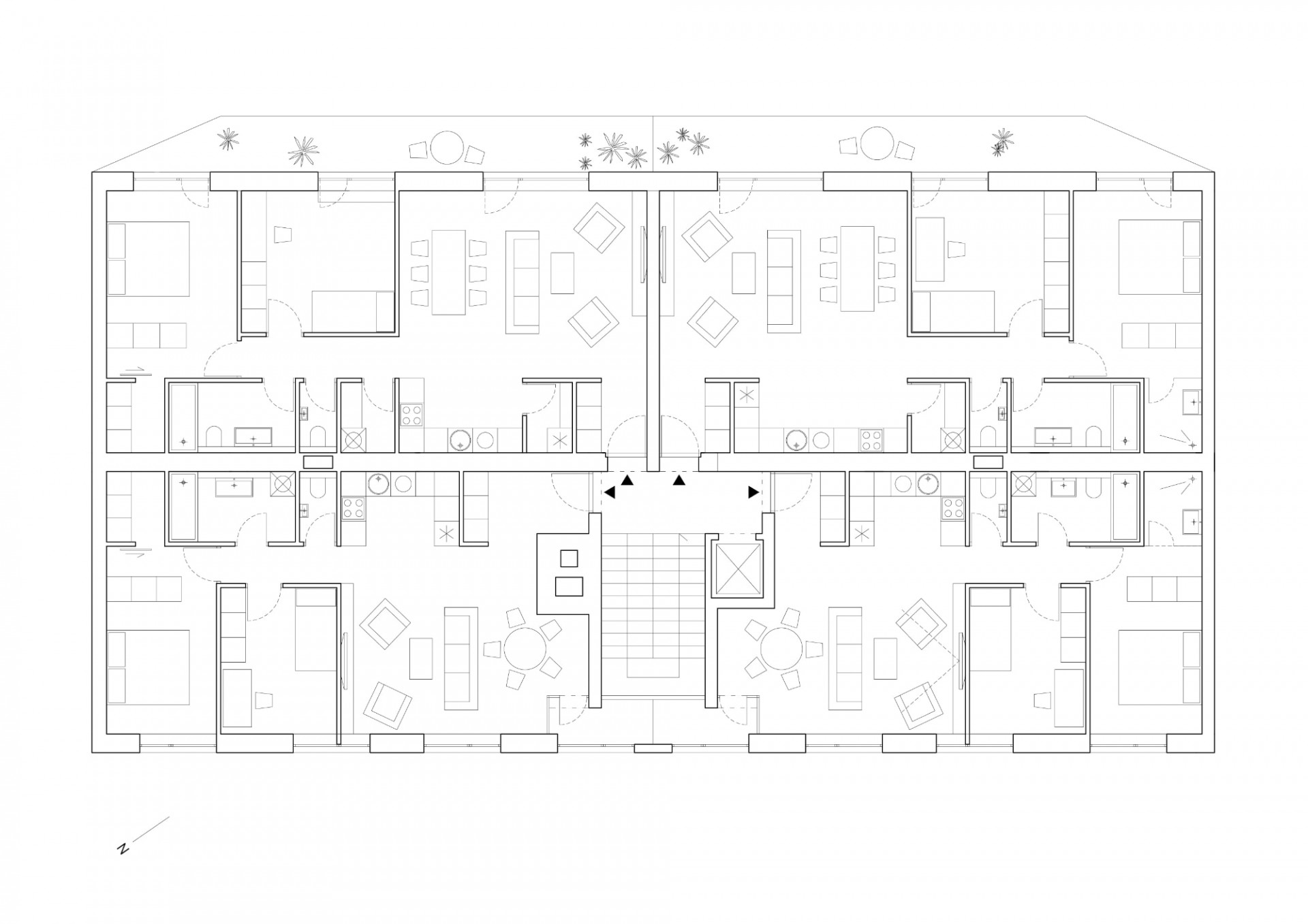
Bytový dům Račianska stojící v širším centru Bratislavy nabízel dříve řadu malometrážních bytů pro zaměstnance sousední tiskárny Svornosť. Architekti z lokálního studia GutGut navrhli celkovou rekonstrukci domu z 50. let, při které se kompletně změnila nabídka bytů. Kolemjdoucí by ani nepoznal, že součástí projektu byla také dvojpodlaží nástavba domu - tu totiž s uliční fasádou vizuálně sceluje nový pravidelný rastr oken. Směrem do dvoru pak byty získaly nové lodžie. Proměny se postupně dočkají také další stavby bývalého průmyslového areálu.
gutgut , 10. 9. 2020
- Autoři: Matej Honč, Barbara Borščová
- Ateliér: gutgut
- Země: Slovensko
- Město: Bratislava
- Realizace: 2019
- Zastavěná plocha: 372.00m2
- Plocha pozemku: 1 611.00m2
- Obstavaný priestor: 8912 m³
- Hrubé podlažné plochy: 2986 m²