
Historický dům na Starém Městě znovu ožil. Místo trafostanice je v něm centrum pro děti a mládež
Zanedbaný měšťanský dům v centru Prahy prošel rekonstrukcí a restaurátorskými zásahy. Barevné barokní malby se v něm nově potkávají s betonem současných přístaveb.
EARCH.CZ , 29. 8. 2022
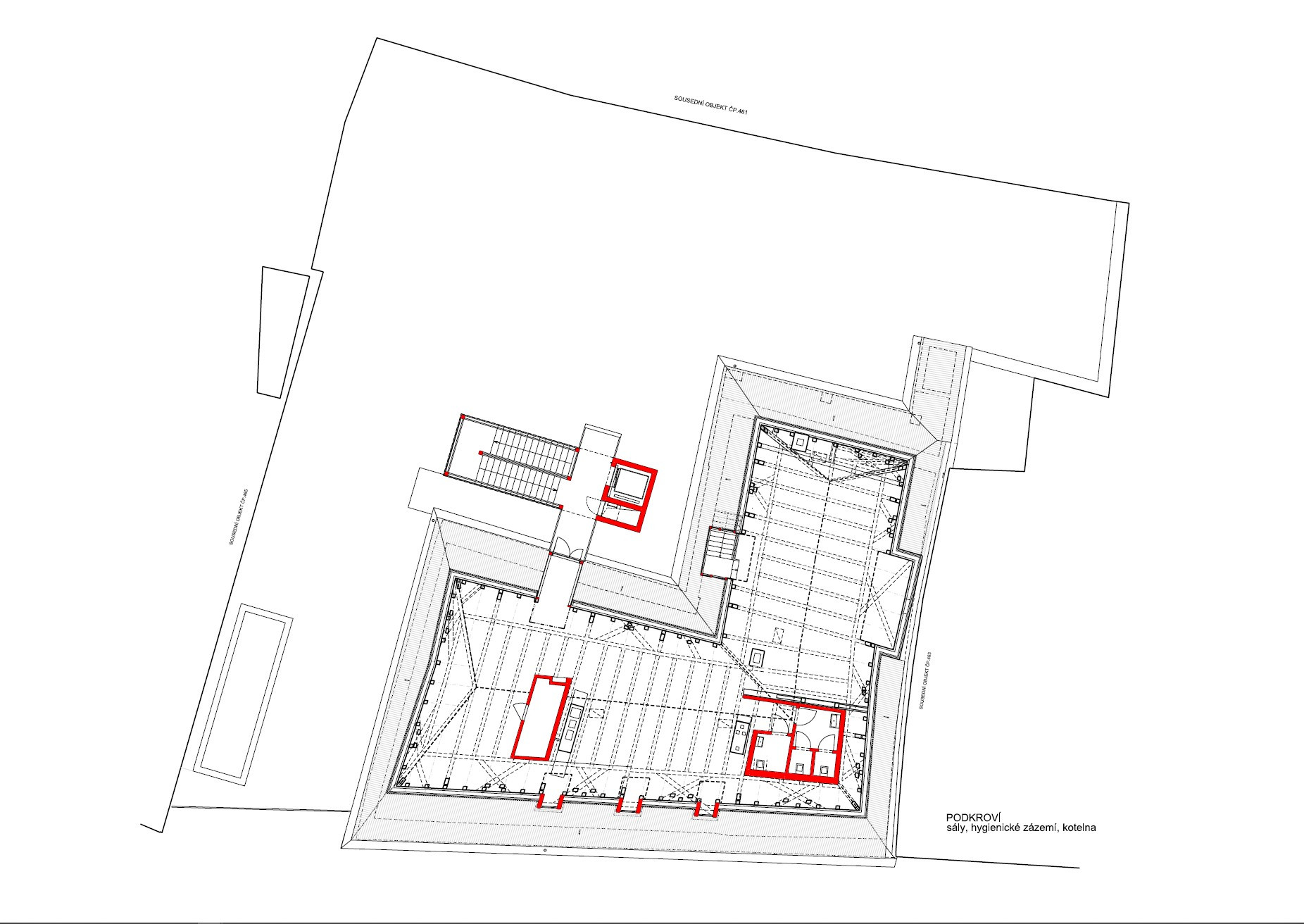
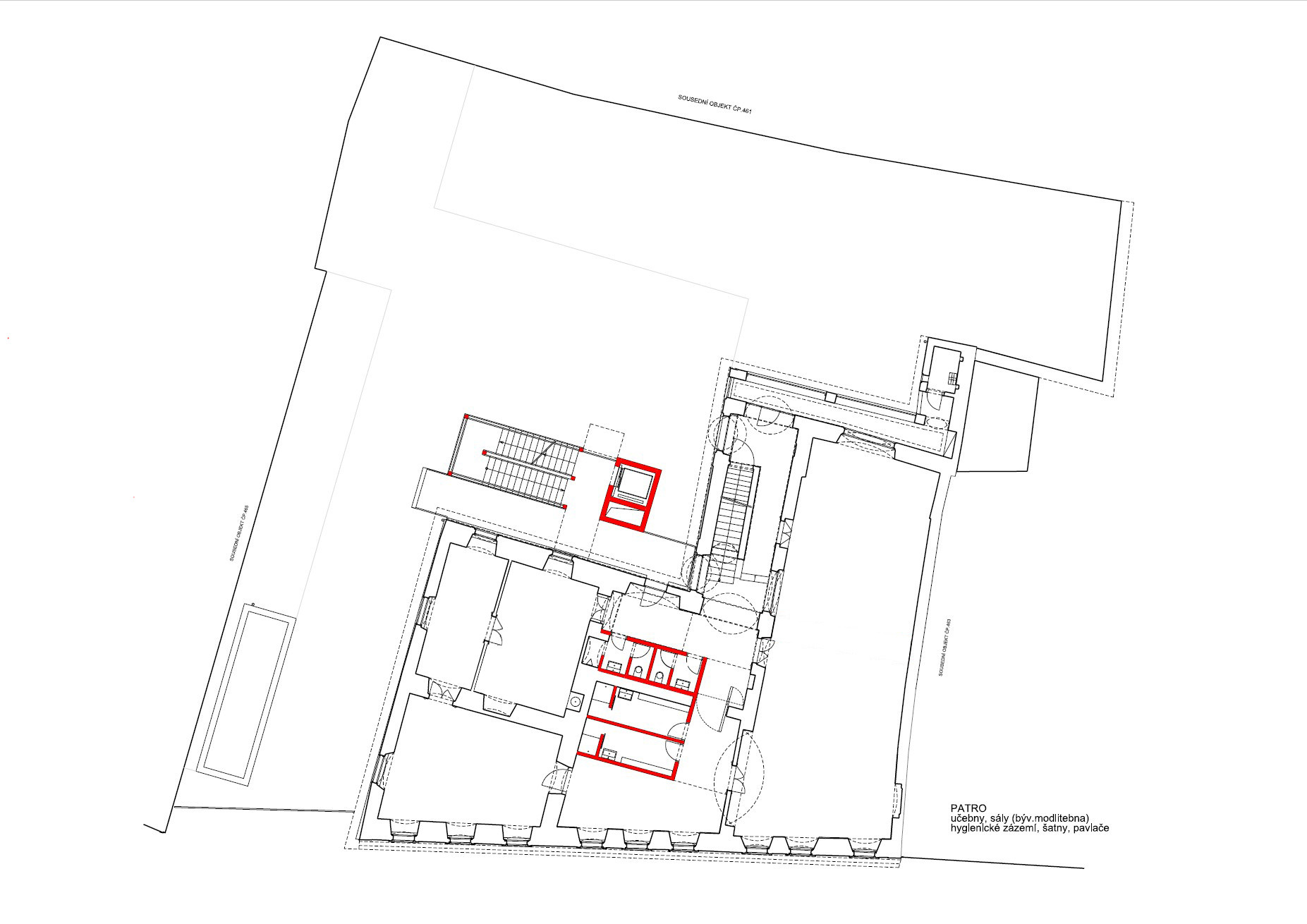
Památkově chráněný dům v Petrské čtvrti na adrese Truhlářská 1113/8 vznikl v období baroka scelením dvou gotických domů. Za klasicistní fasádou objektu se středověkým jádrem se nyní nachází prostory Domu dětí a mládeže Prahy 1. Původně měšťanský dům zrekonstruovali architekti z atelieru KAVA, kteří jednotlivá patra zpřístupnili novou schodišťovou věží a dostavěli potřebné hygienické a technologické zázemí.
Více k tématu
„Mezi zvlášť cenné součásti stavby patří zachované velkorysé gotické sklepy, prostor první toleranční modlitebny v Praze v patře domu a barokní krov s ležatou stolicí s ondřejskými kříži,“ vyjmenovávají architekti. Dodávají také, že opravu krovu řešili tradičními postupy a technologiemi. Nově byl obnoven i dřevěný strop v přízemí nebo kamenný portál, který je dnes k vidění v prostorách vyhrazených kavárně. Vedle hodnotných stavebních konstrukcí dům obsahuje také množství uměleckých děl, hlavně nástěnné malby a štuky. Ty byly v rámci rekonstrukce restaurátorsky ošetřeny.
Soudobé vstupy architekti řešili za pomocí betonu a kovových prvků s antracitovou povrchovou úpravou. Jelikož nedostavovali jednu kompaktní hmotu, ale zasahovali na několika místech, vše se díky jednotným materiálům esteticky provázalo.

Součástí rekonstrukce byla i obnova pobytového dvora, který dům svým půdorysem ve tvaru L vyčleňuje. Dvůr je nově vydlážděn, doplněn o stromy a lavičky, od ulice ho odděluje nová subtilní brána. Své místo zde našel i nejvýraznější prvek celé realizace – nová schodišťová věž s výtahem. „Tato nová bezbariérová komunikační cesta umožní využití hodnotných prostor 5 metrů vysokých klenutých sklepů a podkroví s obnaženou krovovou konstrukcí pro výukové účely,“ vysvětlují architekti. Nově se ve dvoře nachází také objekt trafostanice, ta totiž předtím zabírala přízemí historického domu.

- Autoři: Jan Karásek, Robert Seidl, Zuzana Novotná
- Ateliér: KAVA, spol. s.r.o.
- Spolupráce: Jakub Koňata, Matouš Erban, Štěpán Kubíček, Vít Mlázovský, Zdeněk Rieger, Josef Zeman
- Země: Česká republika
- Město: Praha 1
- Adresa:: Truhlářská 1113/8
- Investor: ÚMČ Praha 1
- Realizace: 2021
- Dodavatel stavby: Avers spol. s r.o.
- Náklady: 100 000 000