Dlouhodobý projekt sklízí své ovoce. Na čajovně v jižních Čechách se pracovalo 18 let
Vznik čajovny v historickém domě v Blatné nedaleko Strakonic za sebou skrývá poutavý příběh. Ze spolupráce dvou přátel – majitele domu a architekta – vzešel krásný počin, který zaujme svou prostotou.
Adéla Vaculíková , 16. 7. 2022
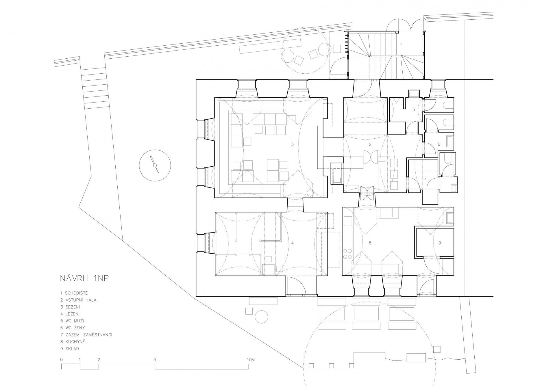
Periferii malého města v Jihočeském kraji probudila k životu nová čajovna. Nachází se v historickém domě po bývalém měšťanském pivovaru s vysokým štítem a valeně klenutými stropy, který prošel rekonstrukcí pod taktovkou architekta Tomáše Petráška z ateliéru DEBYT.
Atmosféra čajovny v Blatné vás pohltí na první pohled. Tlusté stěny barokního domu nově pokrývají probarvené štuky, podlahu zase tvoří cihlové půdovky. Vše nakonec doplňuje vestavný nábytek společně kousky z různých dob, které sbírá sám majitel domu. Prostor zkrátka dýchá přívětivou a až domáckou atmosférou. Svůj podíl na výsledku nepochybně nese přátelský vztah investora a architekta, kteří společně na projektu pracovali rovných 18 let.
Více k tématu
„Tehdy mě jako studenta architektury oslovil kamarád Pepa, ukázal mi svoji novou nemovitost, a svěřil přání, že by chtěl jednou provozovat čajovnu. Rok na to se barákem prohnala povodeň, a rekonstrukce tak mohla zvolna začít,“ přibližuje pozadí vzniku čajovny architekt Tomáš Petrášek. Běh na dlouhou trať, který odstartoval rokem 2002, ale za výsledek s jistotou stál. „Rozhodně se ale za ta dlouhá léta živelného procesu (v němž se stavělo jen podle útržkovitých nákresů a momentální nálady, ocelová konstrukce přístavby byla přes mé protesty navržena třetí osobou a podobně) do řešení silně promítla jeho svérázná osobnost,” říká o investorovi a průběhu realizace architekt.
Během rekonstrukce k domu přibyla nová přístavba opláštěná modřínovými latěmi, v níž se nachází schodiště. Historická fasáda členěná šambránami a římsami v nízkém reliéfu zase prošla důslednou obnovou. Dům byl v průběhu let již poznamenán nevhodnými zásahy, při obnově proto dostal novou střechu z keramických pálených tašek, okna nebo dveře, které ladí s jeho charakterem.

V patře domu se nyní nachází nové obchodní prostory, celé přízemí je pak již věnované čajovně. „Čajovna v přízemí, kterou si majitel vysnil během svých cestovatelských výprav po světě, dává duši celému domu. Je rozprostřena do několika místností, z nichž každá má charakteristický plastický prvek ve svém průčelí, který odkazuje na členitost štítové fasády,” říká o celkové koncepci architekt Tomáš Petrášek.
Dům po rekonstrukci podle návrhu Tomáše Petráška významně prokouknul. Architekt si však neváží pouze estetických kvalit, které se objektu podařilo navrátit, ale také toho, jak působí na své okolí. Stavbu na okraji obce totiž v minulosti doslova utlačila nová panelová zástavba a silniční infrastruktura. Po rekonstrukci a proměně v čajovnu se však znovu zapojuje do života na periferii Blatné a pomáhá opět posílit historickou identitu města.

„S dostatečným odstupem, který nám tempo stavby dovolilo, se zdá, že se ve výsledku podařilo zhmotnit ducha, kterým tato stavba odjakživa disponovala,” dodává Tomáš Petrášek na závěr. Při návštěvě čajovny tak stojí za to všimnout si jak detailů, tak širších souvislostí, do nichž celý počin vstupuje.
Čajovna v Blatné není jediným příkladem z nedávné doby, kde se historický dům na malém městě proměnil v přívětivý prostor a napomohl k dalšímu rozvoji místa. Nedávno se podobným způsobem proměnil i bývalý statek nedaleko hradu Okoř, v němž vznikla kavárna otevřená do hospodářského dvora.
- Ateliér: DEBYT
- Autoři: Tomáš Petrášek
- Země: Česká republika
- Město: Blatná
- Realizace: 2002-2020
- Fotograf: Václav Novák