Zchátralý měšťanský dům na bratislavských hradbách oživují výrazné soudobé zásahy
Pedagogové z bratislavské fakulty architektury vypracovali návrh rekonstrukce a celkové adaptace historického domu na městských hradbách. Nově se z něj stalo zázemí pro katedrálu sv. Martina a turistický infopoint.
Adéla Vaculíková , 27. 6. 2022
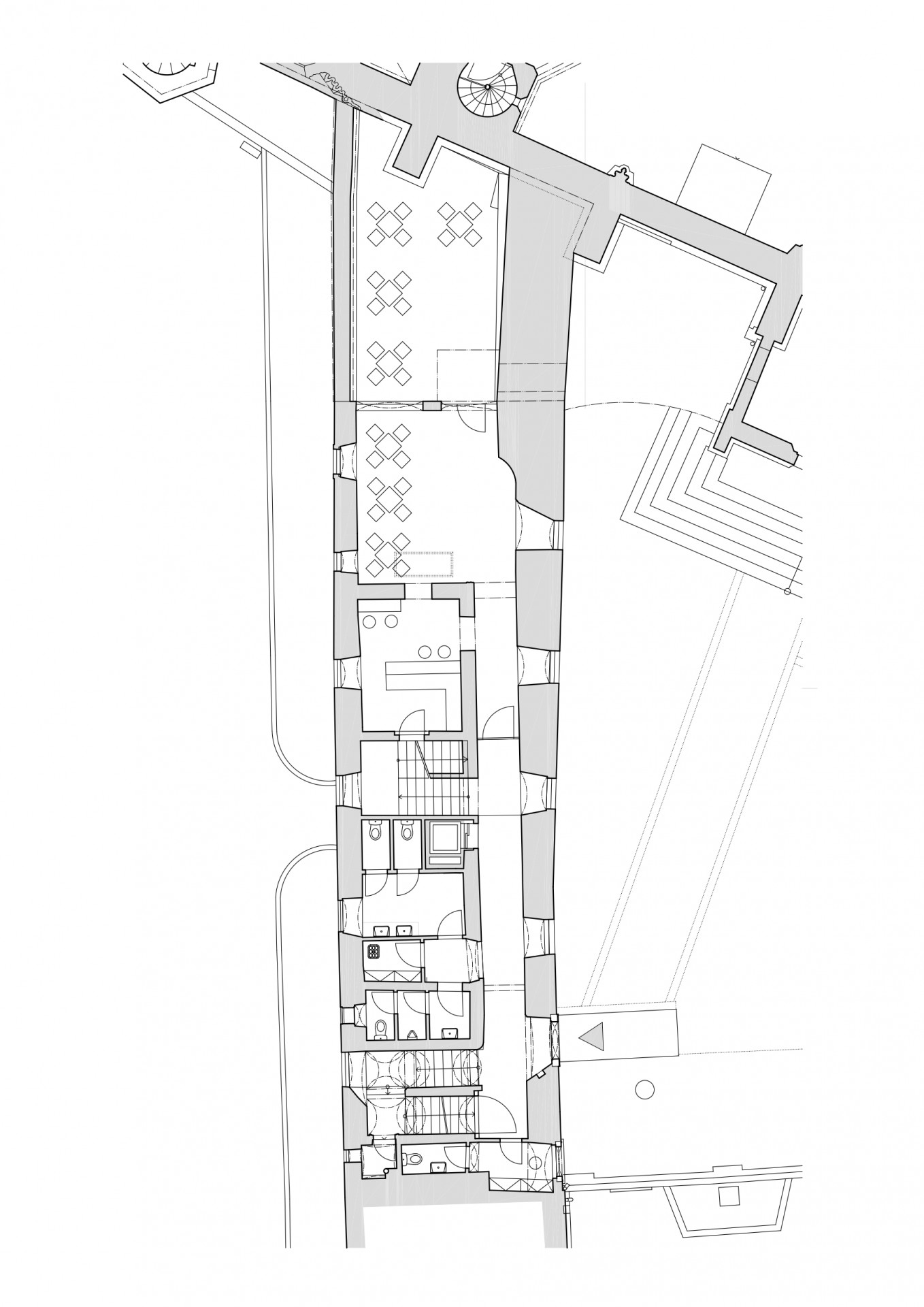
Dům z konce 18. století, který vznikl v meziprostoru městských hradeb v Bratislavě, po několik desetiletí chátral. Nedávno se však znovu probudil k životu. „Architekt Georg Karl Zillack integroval zdi městského opevnění do nového třípodlažního, podsklepeného a reprezentativního měšťanského domu,“ přibližují kontext vzniku historického domu architekti Andrej Botek a Pavol Pauliny. Dům, který si místní stříbrotepec postavil hned vedle katedrály sv. Martina, dnes patří římskokatolické církvi. Jeho využití je ale multifunkční – slouží jak arcibiskupství, tak místním obyvatelům nebo turistům.
Více k tématu
Architekti Andrej Botek a Pavol Pauliny přistoupili k rekonstrukci historického domu velmi citlivě. Svou roli zde sehrálo i jejich profesní zaměření – oba jsou vyučujícími z Ústavu dějin a teorie architektury a obnovy památek Fakulty architektury a designu Slovenské technické univerzity v Bratislavě. Bývalý stříbrotepecký dům prošel v průběhu několika desetiletí různými archeologickými i stavebně-historickými průzkumy. Před rekonstrukcí, která proběhla v letech 2019-2021, byly ještě doplněny. Historický dům, který se nacházel ve velmi zchátralém stavu, tak znovu oslovuje svým obnoveným vzhledem.

Na základě pečlivého zdokumentování historie stavby bylo nakonec rozhodnuto i o připojení zcela současné vrstvy – transparentní chodby, která dům propojuje s katedrálou. „Krátce po dostavbě jižní předsíně katedrály v první čtvrtině 16. století vznikla i menší zaklenutá přístavba ke hradební zdi. Po roce 1862 kdy je naposledy graficky zachycena, nicméně byla asanována. Existence této síně byla hlavním argumentem při odsouhlasení propojovacího objektu, který dnes jako novotvar spojuje Katedrálu s rekonstruovaným objektem,“ vysvětlují architekti.

Součástí nově zrekonstruovaného objektu, který dnes nese název Martineum, je i nový infopoint s kavárnou a multifunkčními nebo výstavními sály. „Katedrála je jednou z nejnavštěvovanějších dominant hlavního města – legitimizovala tak nejodvážnější část rekonstrukce, kterou je propojovací objekt. Jen díky němu může přilehlá budova plnit požadavky zázemí jednoho z nejvýznamnějších chrámů na Slovensku,“ dodávají architekti na závěr.
- Autoři: Andrej Botek, Pavol Paulíny
- Země: Slovensko
- Město: Bratislava
- Projekt: 2016-2017
- Realizace: 2019-2021
- Zastavěná plocha: 244,37 m²
- Užitná plocha: 539,05 m²