 
					
                    				Jednoduchá nízkonákladová dřevostavba může zmizet beze stopy
Argentinský ateliér Estudio Borrachia navrhnul prázdninovou rezidenci pro mladou čtyřčlennou rodinu. Dům ze dřeva na venkově v blízkosti Buenos Aires posloužil jako experiment ověřující možnosti modulární architektury. Cílem architektů bylo vytvořit kvalitně navržený, prefabrikovaný a nízkonákladový objekt, který lze postavit za velmi krátkou dobu.
EARCH.CZ , 11. 1. 2019
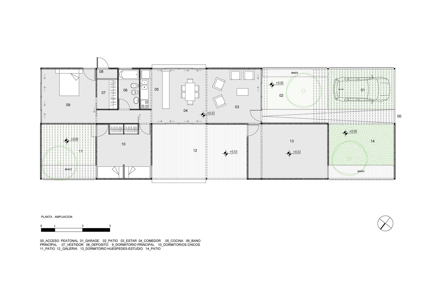
Casa de Madera neboli „dům ze dřeva“ stojí na zatravněném pozemku obklopeném stromy. Příroda ostatně stavbu pouze neobklopuje, ale prostupuje celou realizací. Dřevostavba svým konceptem zapadá do architektonické série Housing Habitat, jež zkoumá vztah mezi domy a jejich prostředím. V rámci tohoto projektu se proto autoři snažili maximálně respektovat přirozenost lesní mýtiny, na níž stavba vyrostla.
Více k tématu
Jako hlavní materiál bylo zvoleno dřevo, lokálně dostupná obnovitelná surovina, která se navíc jednoduše převáží. Ze dřeva následně vzniklo maximum prvků – konstrukce, obložení, příčky i terasa.
Nejenže je dům kompletně zhotovený ze dřeva, ale vnitřní prostory plynule přecházejí do exteriéru prostřednictvím venkovní terasy, střechu zase pokrývají planě rostoucí rostliny. Zeleň navíc v budoucnu poslouží jako přirozené zastínění. Každý z jednotlivých kroků návrhu tak reaguje na maximální využití prostoru a současně zdůrazňuje kontakt s okolní přírodou.
Architekti pojali zakázku jako testování možností modulární architektury, chtěli zkombinovat promyšlený návrh s využitím prefabrikace, nízkými náklady a časovou úsporností při stavbě. Výsledkem se stal prostorově velkorysý jednopodlažní dům se dvěma ložnicemi, jehož výstavba netrvala déle než pět měsíců. Modulární systém zaručuje kromě rychlé realizace také možnost jednoduché demontáže. Pokud by to bylo v budoucnu nutné, lze dům během několika dní rozložit a zanechat zdejší ekosystém beze stopy člověka.
- Ateliér: Estudio Borrachia
- Země: Argentina
- Město: Exaltación de la Cruz
- Realizace: 2016
- Užitná plocha: 174.00m2
 
                             
                             
                             
                             
                             
                                 
            		 
            		 
                     
                     
                     
            
         
            
         
            
         
            
         
            
         
                             
                             
                             
                             
                             
                             
                             
                             
                             
                             
                             
                             
                             
                             
    
	 
            		 
            		 
            		 
            		 
            		 
            		 
            		 
            		 
                     
                     
                     
            		 
            		 
            		 
            		 
            		 
                     
					 
                                                         
                                                         
                                                         
                                                         
				 
				 
				 
				 
				 
				 
				 
				 
				 
				 
				 
				 
				 
				 
				 
				 
				 
				 
				