Architektura / občanské stavby

K dvacetipodlažní věži v Londýně přibyla nová obytná budova

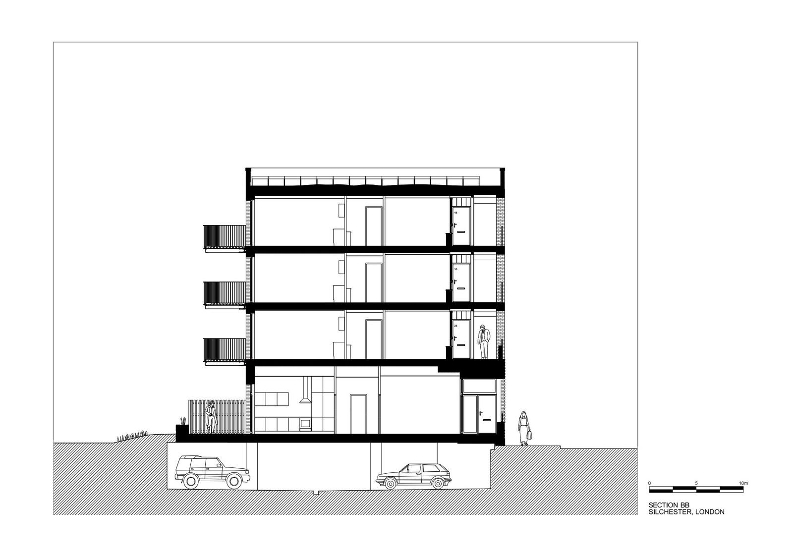
Haworth Tompkins Architects přidali k již existující nemovitosti Silchester novou rezidenční budovu, čímž dodali celému objektu modernější tvář. Nová budova nabízí stovku bytů, veřejná prostranství i komerční prostory.

EARCH.CZ , 12. 10. 2017

Cílem objednavatele bylo vybudovat 112 nových domovů. Zároveň s tím ale bylo třeba vytvořit i komunitní centra a zázemí pro malé obchody. Architekti museli novou část také propojit s již existující dvacetipodlažní věží. Nový trojúhelníkový blok se rozprostírá kolem sdílené zahrady. Cihlové fasády jsou výrazné a celý projekt také velmi úspěšně spolupracuje s již existující věží. Nová budova dala celému komplexu úplně jiné vyznění, než měla dříve.

Architekti Haworth Tomkins tímto dokazují, že jsou schopni navrhnout a zrealizovat naprosto příkladné rezidenční bydlení, které musí počítat s většími nároky, například co se týče prostoru a daného místa. Dokázali neponičit původní vyznění komplexu, spíše ho zlepšili a přidali výraznější prvky, aby se o projekt zajímali kolemjdoucí. Celý nový dům poskytuje naprosto pohodlné bydlení na úrovni, které bylo provedeno s péčí a starostí o každý detail.

  • autor: EARCH.CZ *
  • publikováno: * 12. 10. 2017
  • zdroj: * RIBA Awards

Nabídky práce

Mohlo by vás zajímat

Generální partner
Hlavní partneři