
Kamenné stáje proměnili italští architekti na útulný alpský dům
Italští architekti přistoupili k rekonstrukci vysokohorského zemědělského stavení s citem a pokorou. Hlavními ambicemi projektu bylo propojit místní architektonickou tradici se současným jazykem a opětovně využít maximum původních materiálů.
Tereza Staňková , 23. 9. 2022
Na severu Itálie poblíž města Varzo se milánský ateliér ATOMAA pustil do rekonstrukce polorozpadlého objektu, který kdysi sloužil jako stáj pro dobytek a seník. Kamenná zřícenina v téměř 1400 metrech nad mořem má to štěstí, že se nachází v jednom z mála údolí, kam doposud nepronikla masová turistika a je tak obklopena panenskou přírodou.
Objekt je společně s pár dalšími domky zasazen přímo do horského hřebene. Místní stavební tradice je s horskou krajinou velmi úzce svázána a dovednosti stavění tradičních kamenných domů si lokální řemeslníci předávají po staletí. Proto architekti na obnově domu spolupracovali také právě s místními řemeslníky, kteří opravovali staré zdi kámen po kameni.
Více k tématu
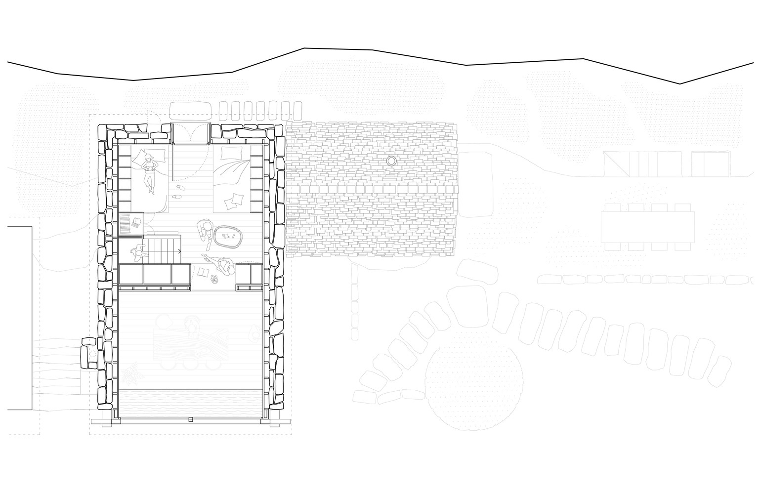
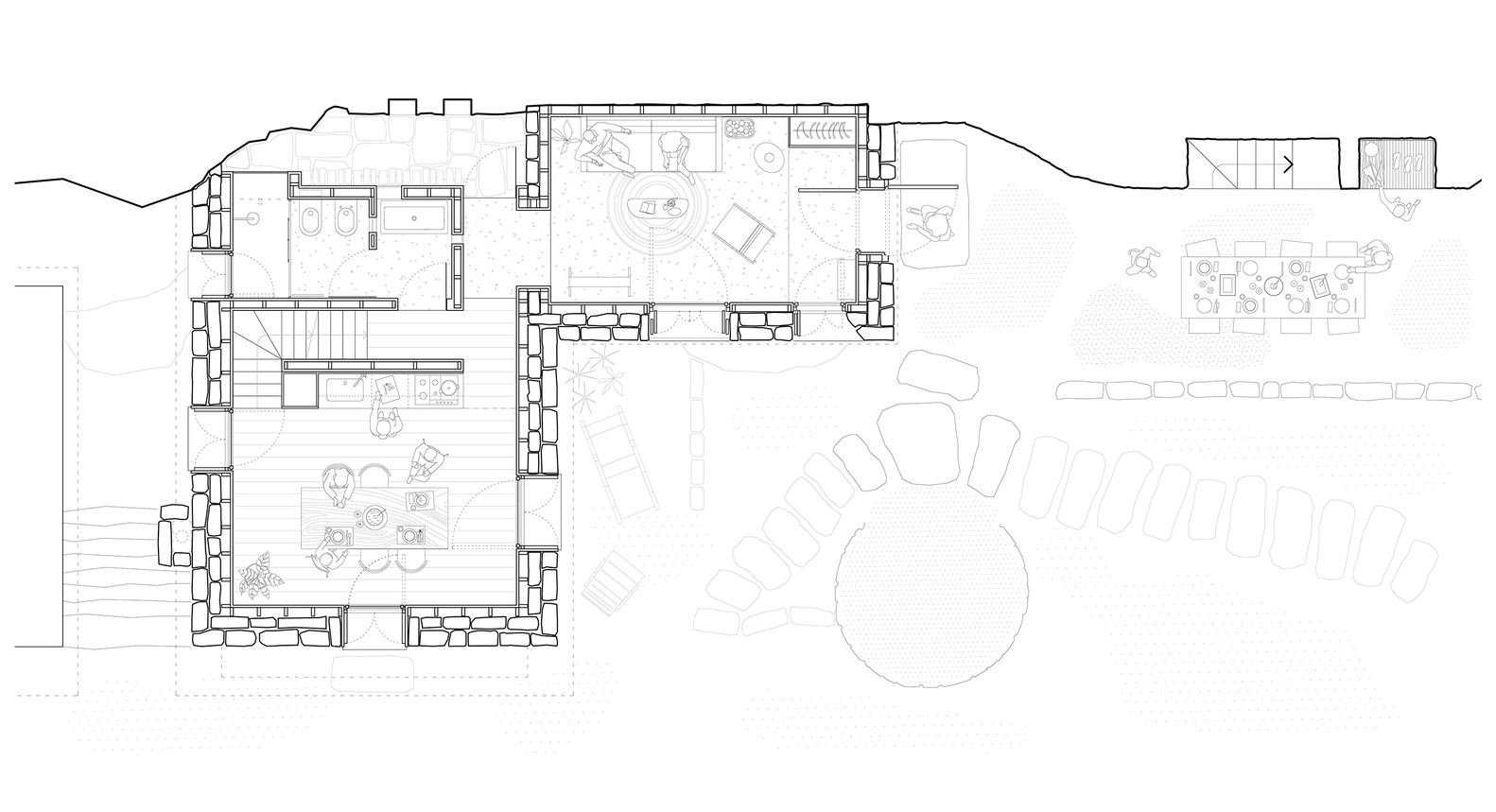
Součástí rekonstrukce je také dostavba rozšiřující interiér o obývací pokoj s volně stojícími kamny a zádveří. Od původního domu odlišili architekti tyto prostory pomocí podlahy z černé pryskyřice. Ostatní podlahy jsou pak z černě mořeného modřínového dřeva. Právě dřevo v interiéru převládá nad kamenem, díky čemuž působí velmi útulně.
Ve spodním patře je umístěna hlavní ložnice se zachovanou původní klenbou, která poskytuje výjimečné výhledy na okolní Alpy. Další místnost, s dvěma jednolůžkovými postelemi, naleznete za zatahovacím poklopem. Podkroví pak disponuje proskleným štítem, který přivádí dostatek denního světla a majitelům zajišťuje kontakt s přírodou i při pobytu v nejvyšší části stavby.

Umístění domu na horském hřebeni značně ovlivnilo celkovou podobu nejen exteriéru, ale také interiérového designu, jelikož se skála objevuje také v některých částech domu. Architekti se snažili využít maximum z původní ruiny. Lokálně těžené kameny proto našly své další využití v nových zdech i venkovní dlažbě. Staré podlahy a poškozené střešní trámy pak byly proměněny v nové dveřní a okenní překlady. Kde nebylo použito kamene ani dřeva, tam si architekti pomohli surovým pohledovým betonem. Jeho přítomnost autoři nijak nemaskovali a díky tomu navozuje nové dialogy s původními materiály domu.

- Ateliér: ATOMAA
- Město: Varzo
- Realizace: 2020