
Empatie místo okázalosti. Luxusní italská rezidence ctí odkaz zaniklé středověké vesnice
Poblíž italského města Urbino vyrostla pod taktovkou místních architektů soukromá rezidence, která svým archetypálním tvaroslovím a rozdělením na tři samostatné domky navazuje na odkaz středověké vesnice, která se tu kdysi nacházela.
Adéla Vaculíková , 27. 9. 2022
SAMA V KRAJINĚ
Italská provincie Urbino a Pesaro je známa svou okouzlující a přitom málo osídlenou krajinou. Na východě láká písečnými plážemi při Jaderském moři, o pár kilometrů dál se ale již vypínají kopce, které postupně přechází až ve vysoké Apeniny.
A právě na jednom z místních vrcholů u města Urbino nedaleko hranic se San Marinem, kde ve středověku stávala osamělá vesnice, vznikla roku 2017 jedna pozoruhodná soukromá rezidence. Za projektem stojí architektonické studio Gardini Gibertini Architects se sídlem v nedalekém Rimini, které ve svých realizacích rádo snoubí přírodu s moderní architekturou.

SEBEVĚDOMÝ ARCHETYP
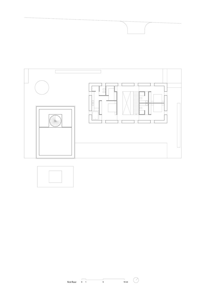
Rezidenci na vrcholu kopce tvoří tři samostatně stojící domy, které se svým tvaroslovím a použitými materiály odvolávají k regionální architektuře. Architekti z ateliéru GGA tak pomyslně navázali na původní vesnici, kterou tvořilo pár drobných kamenných domků.

Fasády novostaveb pojali jako skořápky z pečlivě vrstvených kamenů. Aby ještě více posílili archetypálního ducha realizace, vyvarovali se jakýchkoliv moderních prvků včetně okapů a parapetů. Jednoduché domy se sedlovými střechami z pálených tašek tak opravdu působí, jako by zde stály od nepaměti.

ZA KAMENNOU SKOŘÁPKOU
Každý ze tří domků dostal svou specifickou funkci. Největší dům při severní straně pozemku slouží k obývání, vedlejší je vyhrazen k relaxaci a poslední, vyvýšený na umělém kopci, slouží jako zahradní domek.
V interiéru domy překvapí svou otevřenou dispozicí. Co se zvenčí jeví jako klasický dvoupodlažní dům, je ve skutečnosti zcela otevřený prostor se zavěšenou galerií. Za kamennou skořápkou se totiž skrývá železobetonová konstrukce, která zůstává v celém interiéru přiznaná a jednotlivé místnosti dělí pouze minimalistické přepážky. V přízemí obytného domu se nachází obývací pokoj, jídelna, kuchyně a pracovna, v patře zase dvě velké ložnice s vlastními koupelnami.

DO PODZEMNÍ GALERIE
Kromě archetypu rezonuje v této realizaci taky téma propojování. Ačkoliv je rezidence rozdrobena do tří objektů, je pohyb mezi nimi velmi snadný. Dva největší domy propojuje systémem podzemních chodeb a místností. Nejde ale o žádné strašidelné stísněné prostory. Nachází se zde například kinosál, galerie, posilovna nebo lázně.
V exteriéru domy vizuálně spojuje červená betonová terasa s bazénem, jehož přepadová hrana kopíruje místo, kde rovina přechází ve svah. Při plavání tak nezbývá než se kochat výhledy na okolní kopcovitou krajinu.

SOUDOBÁ I TRADIČNÍ
Aby si majitelé mohli vychutnat pohled na neosídlené vrchy ještě z jiného úhlu, zakomponovali architekti do rezidence i soukromou rozhlednu. Její umístění je velmi netradiční, zabudovali ji totiž přímo do svahu kopce a zpřístupnili ze suterénu rekreačního domu.

Urbinská rezidence zaujme hlavně svým vnímavým přístupem k místu. Nejde o okázalé sídlo ale empatickou architekturu, která je v kontextu okouzlující krajiny skutečným šperkem. S respektem odkazuje k původním středověkým stavbám, ale zároveň zaujímá sebevědomé místo v současné moderní architektuře. Architektům ze studia GGA se podařilo vytvořit skutečně komplexní dílo.

Tento článek vznikl za podpory společnosti Českomoravský beton v rámci popularizace tématu "Beton v architektuře".Českomoravský beton, a. s., je holdingovou společností, která prostřednictvím vlastních betonáren a dceřiných společností dodává transportbeton v široké škále pevnostních tříd a druhů na území České a Slovenské republiky. Skupina, jejíž vznik spadá do počátku 90. let minulého století, v současné době provozuje sedmdesát nově postavených nebo zrekonstruovaných betonáren, které mají zavedený systém řízení jakosti ČSN EN ISO 9001 a splňují nejpřísnější ekologická kritéria. Celá skupina – holdingová společnost a její dceřiné společnosti – vystupují pod jednou společnou obchodní značkou Českomoravský beton.