Kanceláře v paláci. V duchu krémových barev a terakoty
Palác Akropolis na pražském Žižkově je polyfunkční stavbou s dlouhodobě živým provozem. Rekonstrukce kancelářského patra reaguje na současné nároky na pracovní prostředí a přehlednou dispozici.
EARCH.CZ , 13. 2. 2026
Palác Akropolis v Praze na Žižkově pochází z roku 1928 a je známým dílem méně známého architekta Rudolfa V. Svobody. Důležitým specifikem stavby je i to, že si ji architekt vybudoval na vlastní náklady. Dle svých slov si přál uskutečnit „podivný dům, v jehož různorodých prostorách bych našel skvělou hudbu, divadlo, výtvarné umění. Kam bych chodil na schůzky, na pivo, s přáteli tančit a bavit se do rána.“
Polyfunkční náplň má Palác Akropolis dodnes – stále se v něm hraje divadlo a hudba, chodí se sem na drinky do baru a také se tu bydlí. Mimo tyto typologie ale stavba obsahuje i kancelářské patro. Právě to se nyní stalo předmětem rekonstrukce.
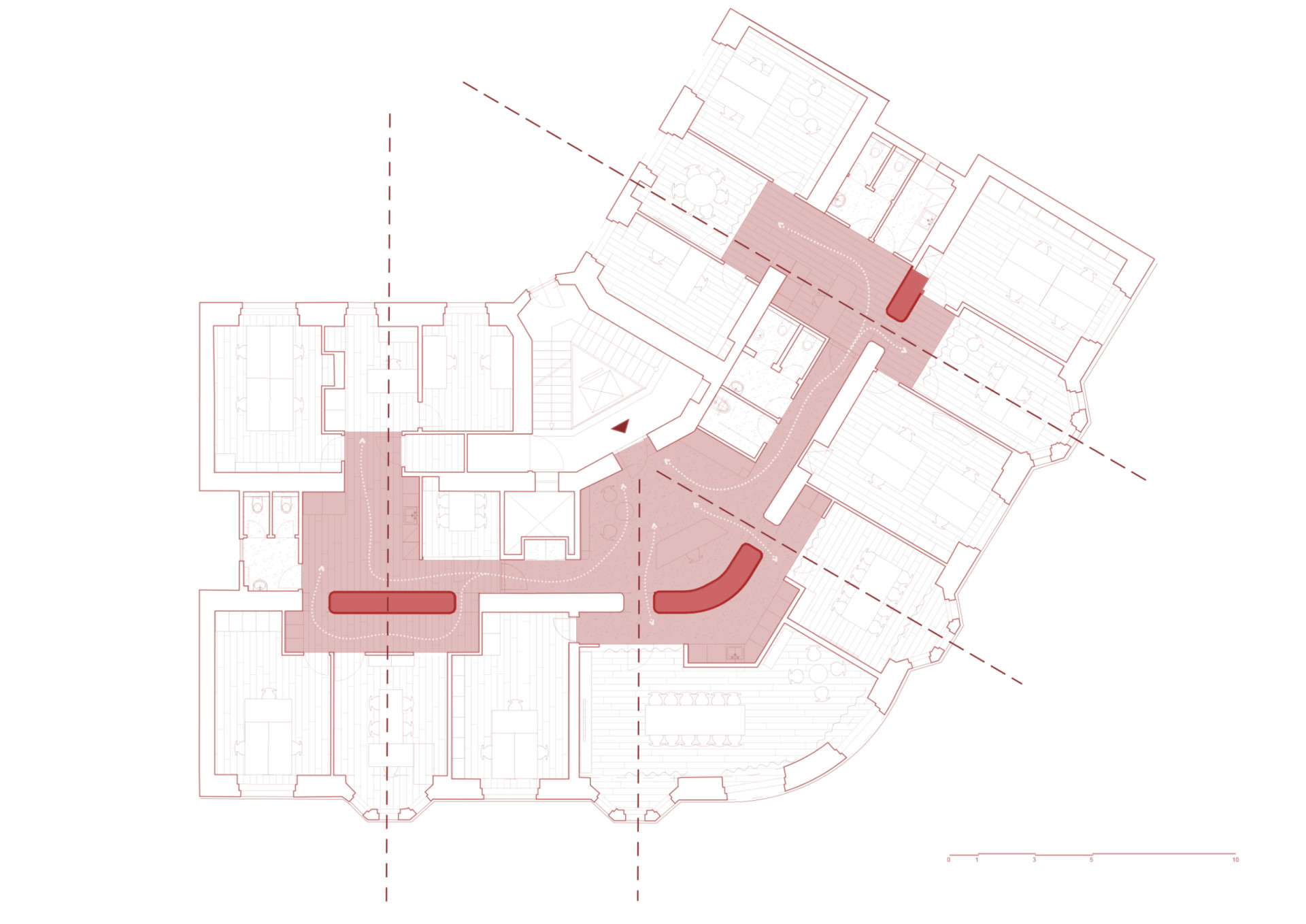
Autory návrhu jsou Marco Maio Architects, kteří celý koncept postavili kolem velkorysého centrálního prostoru – hubu. Ten funguje zároveň jako společenské jádro i hlavní komunikační osa patra a zajišťuje vizuální i prostorovou kontinuitu napříč dispozicí. Přirozené světlo sem vstupuje z vnitrobloku i ulice a vede interiérem.

Výraznou proměnou prošly dříve tmavé chodby. Nově jsou pojaté jako jemně zakřivené průchody obložené červenými keramickými obklady. Stejný materiál se ve světlejších odstínech objevuje i v sociálních zařízeních a vytváří vizuální kontinuitu napříč celým podlažím.

Keramiku vyvažuje přírodní dub – v podlahách, nábytku i okenních rámech. „Na míru vyrobené ořechové zasedací stoly dodávají sdíleným prostorám jemný hmatový kontrast a odrážejí důraz na trvanlivost a kvalitní řemeslné zpracování,“ dodávají k vybavení architekti.
Více k tématu
Dispoziční řešení kombinuje otevřené pracovní zóny s klidnějšími místnostmi určenými ke koncentraci. Prosklené příčky zajišťují akustický komfort, ale zachovávají vizuální propojení. „Tímto způsobem kanceláře v Paláci Akropolis interpretují kulturního ducha budovy v kontextu současné práce. Historie zde není dominantním motivem, ale tichou vrstvou, která doprovází celkový prostorový zážitek,“ říkají Marco Maio Architects. V domě, který je zvyklý na noční ruch a kulturní události, tak vzniklo klidné a střídmé prostředí pro práci.
- Ateliér: Marco Maio Architects
- Autoři: Marco Maio
- Spolupráce: Kadir Sönmez
- Země: Česká republika
- Město: Praha
- Investor: Realitní Fond Praha, Advokacie Praha, 2OPF
- Adresa: Kubelíkova 1548/27, 130 00 Praha
- Zastavěná plocha: 470 m²
- Designový koncept interiérů: David Pesek Muller, Mylana Sydorenko, Kateřina Zapletalová
- Fotograf: Alex Shoots Buildings
- Generální dodavatel: Eterno plus
- Truhlářské práce: Bétrojka
- Svítidla: Light Works
- Keramické obklady: Archtiles
- Terrazzo podlahy: OMEGA 99
- Elektroinstalace: Filip Leixner
- Značky: Arte Brotto, Kave Home, Arco Interier, Brokis, Formdesign, Laufen, Marset, Martin Foret, Valen&Masar, Vekra, Verti, WOW Tiles
- Rok dokončení: 2025