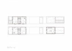
Když nový dům, tak hned dva domy
Dům s číslem popisným 1014 ve španělském Granollers stojí na nemožně úzké parcele s nedostatkem světla, která je navíc vtěsnána mezi stávající zástavbu a ještě ke všemu podléhá přísné regulaci. Architekti z HARQUITECTES ze všech zmíněných nedostatků ale udělali silné stránky: úzký pozemek proměnili v dlouhý spojitý prostor, povinnost umístit na pozemek dva objemy využili k rozdělení jednoho domu hned do dvou staveb, přísun světla nakonec zajistili originálním odsazením domu od uliční čáry. Dům č.p. 1014 je ve výsledku poezií prostorových kombinací a mozaikou cihlových vzorů. A také jedním z finalistů ceny Miese van der Rohe 2017.
H ARQUITECTES , 4. 4. 2017
Dům se nachází v historickém centru města Granollers a je pevně vtěsnán do městské tkáně, mezi stěny stávajících domů. Jeho parcel je úzká a podlouhlá, zato ale přístupná ze dvou ulic. Z původní budovy, kterou cihlový dům nahrazuje, byla pro její dezolátní stav zachována pouze čelní fasáda.
Investoři toužili po odlišení dvou zón: jednak domácího prostoru pro každodenní rodinný život, jednak prostoru tichého, izolovaného, funkčně nezávislého, který může sloužit jako obývák a jídelna nebo jako společenský či uvítací prostor pro příležitostné hosty. Vzhledem k platné regulaci v ulici se rozdělení na dvě části samo nabízelo. Domácí zóna je orientována směrem k hlavní ulici, kdežto západní strana, izolovaná a oddělené zahradou ve středu, představuje samostatný prostor. Tudy mají také přístup auta.
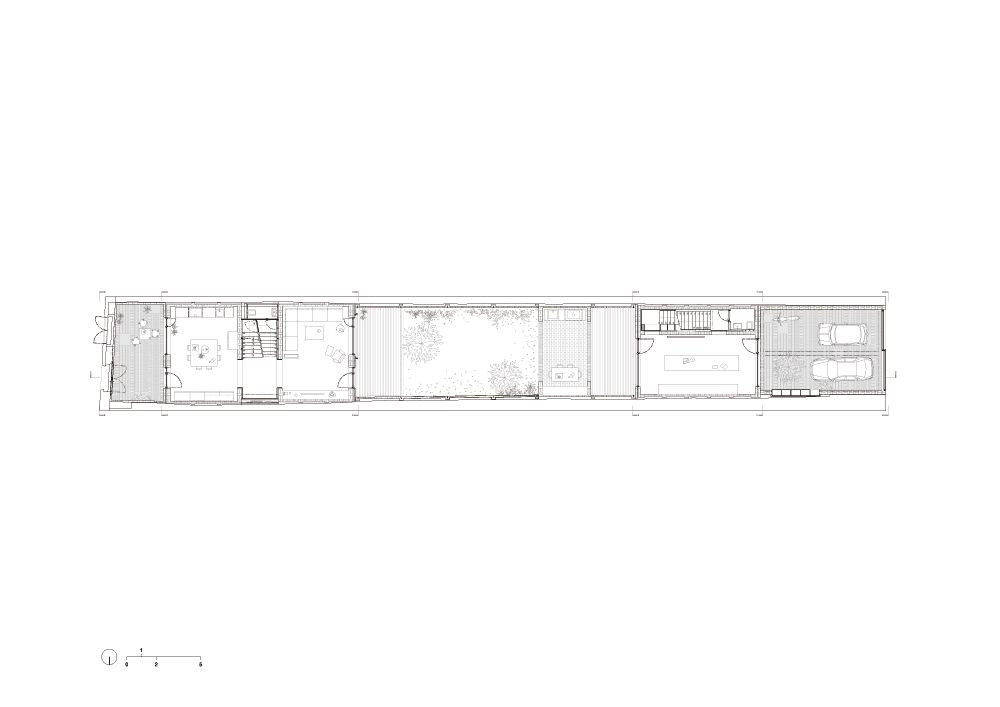
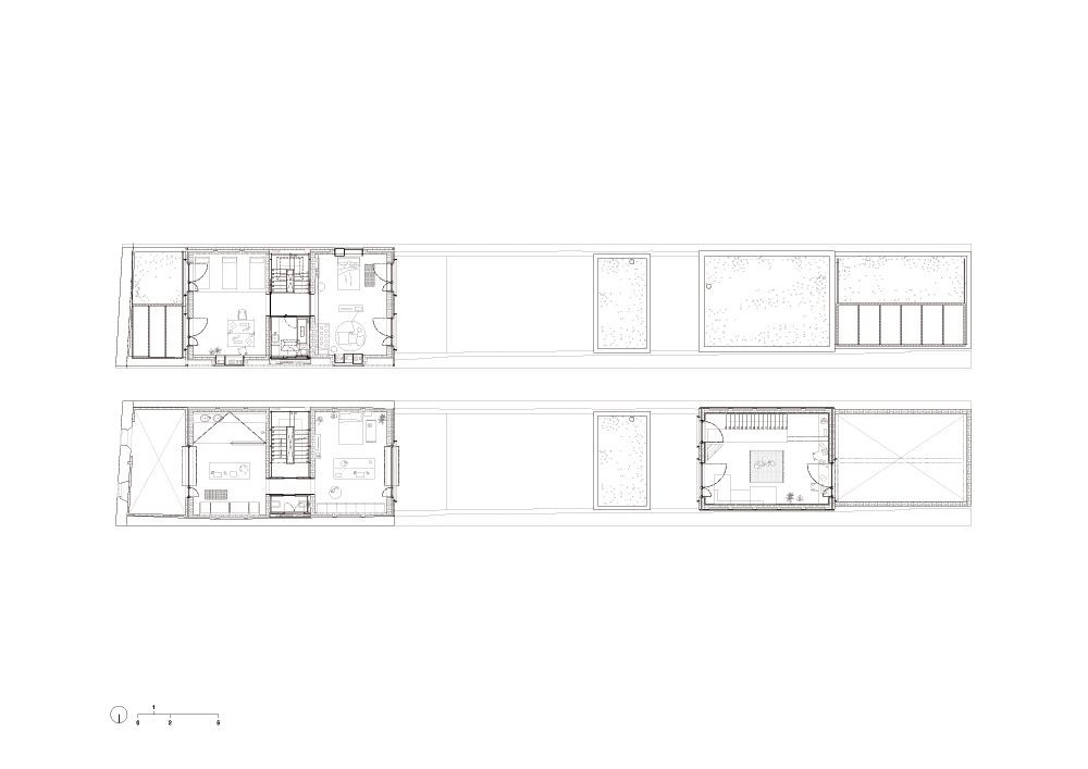
Kvůli východo-západní orientaci domu a úzkosti parcely bylo obtížné přivést do nemovitosti dostatek světla. Vedle této nesnáze byl problém i zajistit dostatek soukromí v přízemí celého objektu. Obě nesnáze nás vedly k tomu, že jsme nechali budovu na obou svých koncích ustoupit od uliční čáry a dali zde vzniknout dvěma nádvořím, sloužícím jako předsíně. Dvorky umožňují přísun dostatku světla a zároveň představují místa přechodu. Domu zprostředkovávají soukromí, světlo a tepelný komfort. Ten se tak díky nim stává čitelný od jednoho konce k druhému.
Tato bioklimatická prostranství tvoří první krok v sekvenci prostorů spojujících jednu ulici s druhou, z nichž každý nabízí jiné prostředí, má odlišnou charakteristiku a jasně odlišuje jednu funkci od druhé. Předsíně dávají vzniknout 53 m dlouhému patru o celkové ploše 345 m2, jež je určeno nejvíce frekventovaným a společenským činnostem. Podlaží zároveň funguje jako dlouhá nepřetržitá chodba propojující obytné a servisní místnosti ve vyšších patrech i ve sklepě.
Rozvrh domu, rytmizován sekvencí prostor (a opravdu je zde řeč spíše o prostorách než o místnostech), má velmi přímočarou vazbu na celkovou konstrukci objektu. Jednotlivé zdi potom umocňují typologii všech prostor. Nosné stěny definují každý kout i místnost, určují míry domu, proporce vstupních dvorců i zahrady, tvoří různorodou atmosféru. Pestrost keramických materiálů, jejich různé struktury, tloušťka zdí a přirozeně se tvořící vlhkost a teplota odlišují jeden prostor od druhého. Prostor se stává konstrukčním prvkem a konstrukce zase konfiguruje prostor.
Spojení rozličných prostor potom z konstrukčního hlediska představovalo poměrně tvrdý oříšek. Stalo se nicméně vůdčím motivem pro skladbu cihlového zdění, které v některých místech spontánně přechází v nosné trámy. Nosné zdi jsou rozvrstveny do pásů, které mění svou strukturu v úrovni říms a okenních překladů. Jejich hutnost se v každé výšce domu liší: zatímco vespod v přízemí jsou tenčí a pevnější cihly, v horních patrech zdi sestávají z tlustších perforovaných kusů.
- Autoři: David Lorente Ibánez, Josep Ricart Ulldemolins, Xavier Ros Majó, Roger Tudó Galí
- Ateliér: H ARQUITECTES
- Země: Španělsko
- Realizace: 2015
- Město: Granollers
- Realizace: 2015
- Užitná plocha: 673.00m2
- Plocha pozemku: 369.00m2
- Poznámka: foto © HARQUITECTES