
Kravín přestavěný na rodinné hnízdo s krbem
Bytelný kravín z 19. století, který byl v minulosti nevhodně stavebně upraven, se v rukách Thomas Kröger Architekten proměnil na originální rodinné venkovské sídlo organizované kolem centrální síně s krbem. Renovace byla provedena tak citlivě, že náhodný kolemjdoucí ani nic nepozná. Za dřevěnými vraty stodoly se přitom nachází rodinné útočiště i „kmenové“ ohniště, zkrátka celý vnitřní vesmír. A také finalista ceny Mies van der Rohe 2017.
Thomas Kröger , 23. 3. 2017
V malé vsi na sever od Berlína, v malebné venkovské oblasti zvané Uckermark, se nachází bývalá stodola, jež byla přestavena na venkovský dům pro mladou čtyřčlennou rodinu a byt pro hosty.
Původní stavba byla postavena před 140 lety a její konstrukce kombinovala cihlového zdivo a dřevo. Na svou dobu se jednalo o mimořádně moderní užitkovou budovu. V 50. letech minulého století byla stodola prodána a rozdělena na dvojdomek, v němž žily dvě rodiny se svým dobytkem. Jedna jeho polovina byla nyní předělána. Vycházelo se přitom z původního vizuálního jazyka stodoly. Ten určoval prostředky i pravidla celé konverze.
Původní kravín a stodola byl mimořádně trvalou stavbou, s tlustými kamennými zdmi, malými okýnky v patře a mohutnou dřevěnou branou v přízemí. Architekti se potom rozhodli starosvětský vzhled stodoly zachovat, raději než jí vtisknout tvář prázdninového domku.
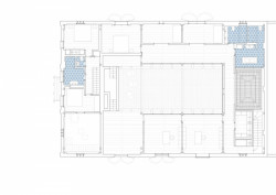
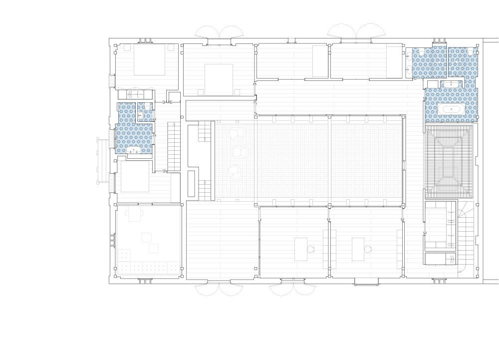
Pracovat se staršími budovami a zachovat respekt k jejich vnitřním kvalitám přitom vždy představuje výzvu. Velké měřítko stodoly umožnilo, aby byla do jejího středu umístěna prostorná patrová síň s krbem pro chladné dny. Hala, jež sama o sobě vytápěná není, je na obou stranách obklopena izolovanými tělesy bytů. V horním patře jsou umístěny ložnice, koupelny, studovna a lodžie. Klesne-li teplota, používají se pouze prostory v prvním patře, vyvýšené jako ptačí hnízdo. Vnější fasáda stavby i s malými okny byla zachována, takže v pohledech z ulice je přestavba domu téměř neviditelná.
Světlo je do velkého vnitřního sálu přiváděno třemi mohutnými branami, které zároveň propojují interiér s exteriérem. Jsou-li brány zavřené, rekonstruované prostory se za nimi schovávají jako malé překvapení. K sálu se připojují mírně vyvýšený obývák a otevřená kuchyň. Jídelna je korunována dřevěnou pyramidou, jež filtruje denní světlo a zároveň připomíná dřevěný žlab. Do bytu pro hosty se vstupuje odděleným vstupem, ale s hlavní halou ho spojují malá dvířka.
Začátkem 50. let byla čtvrtina stodoly přestavěna na zemědělský domov. Tato část byla při odstraňování shnilého trámoví a obkladů zcela odstraněna. Při renovaci bylo třeba vyměnit až 70% dřevěných materiálů. S tím byla odhalena vnitřní krása a prostornost celé konstrukce. Budova byla opravena i s ohledem na energetickou náročnost. Všechny místnosti, ať už vytápěné nebo ne, jsou omítnuty jílem a na omak podobné. Zdi vytápěných pokojů jsou izolovány a vybaveny stěnovým vytápěním.
V původní stodole žádný krb nebyl. Nový masivní krb je koncipován jako místnost s výklenky na sezení na obou stranách topeniště. Zimy zde jsou velice chladné a krb již prokázal své kvality, neboť zafungoval jako rodinné shromaždiště. Nabízí vřelé útočiště s lidským měřítkem, kontrastujícím s velkou halou. Objem krbu mimoto propojuje místnosti v prvním patře za cihlovou clonou.
Původní konstrukce stodoly je v harmonii s nově uvedenými materiály, její prostorový charakter byl zachován, aniž by bylo třeba přestavit ji na regulérní dům. Stavební zásahy jsou přitom jen stěží viditelné.
- Autoři: Thomas Kröger
- Ateliér: Thomas Kröger Architekten
- Země: Německo
- Město: Fergitz
- Realizace: 2015
- Užitná plocha: 320.00m2
- Plocha pozemku: 5 470.00m2
- Poznámka: foto © Thomas Heimann