
Architektura
/
interiér
Klikání v továrenské atmosféře
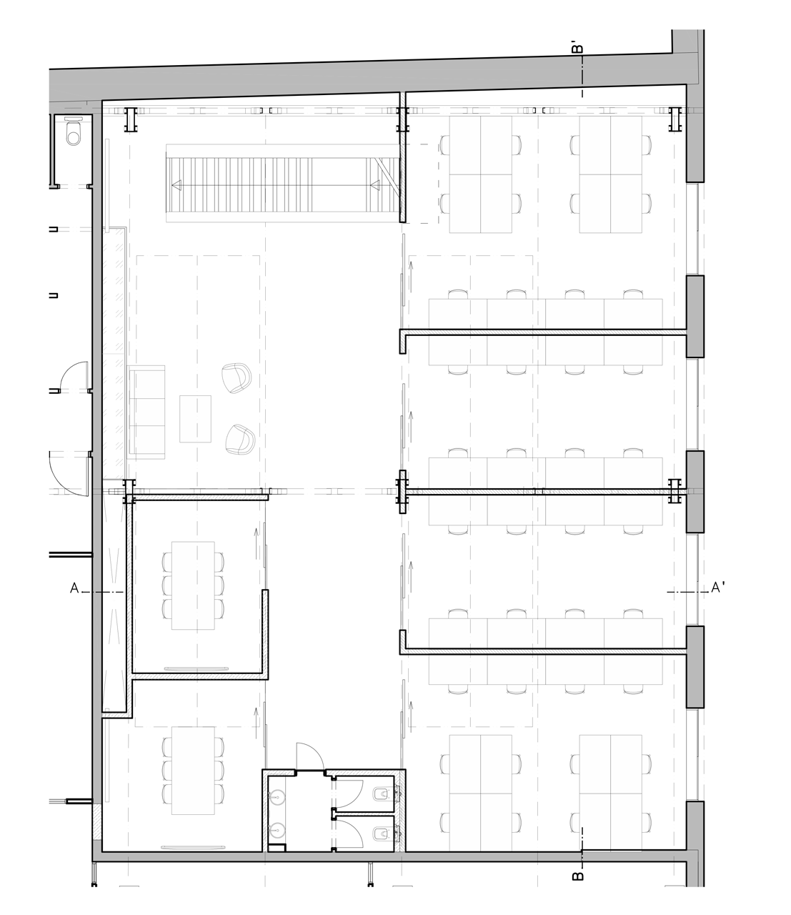
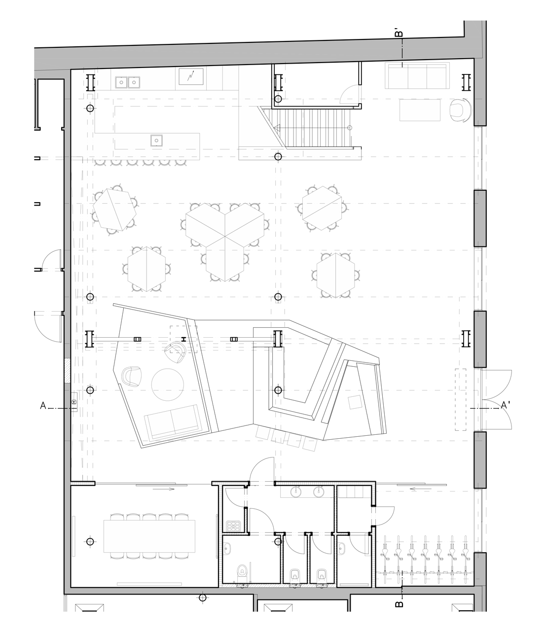
Představované sídlo českého IT startupu Apiary se nachází v bývalé tovární hale, která je dnes součásti komplexu Forum Karlín. Hala byla předem načleněna na menší nájemní jednotky a opatřena vestavěným patrem. Dispozice fitoutu a jeho architektonický výraz, který byl předmětem práce ateliéru majo architekti, se snaží navázat na svébytný charakter průmyslové stavby a uzpůsobit jej potřebám nového nájemníka.
majo architekti , 20. 9. 2016
- Autoři: Štěpán Jablonský, Jan Jaroš, Martin Poláček
- Ateliér: majo architekti
- Země: Česká republika
- Město: Praha 8 - Karlín
- Ulice, číslo: Pernerova 51
- PSČ: 186 00
- Datum projektu: 2015
- Realizace: 2015
- Užitná plocha: 560.00m2
- Foto ©: Jakub Pelnář