
Kostel z betonu a sopečných kamenů čerpá inspiraci z krajiny Kanárských ostrovů
Postavit kostel svatého Spasitele ve městě La Laguna na Tenerife zabralo lokálním architektům 15 let. V průběhu několika stavebních etap vznikla stavba připomínající skalnaté útesy.
Adéla Vaculíková , 21. 12. 2022
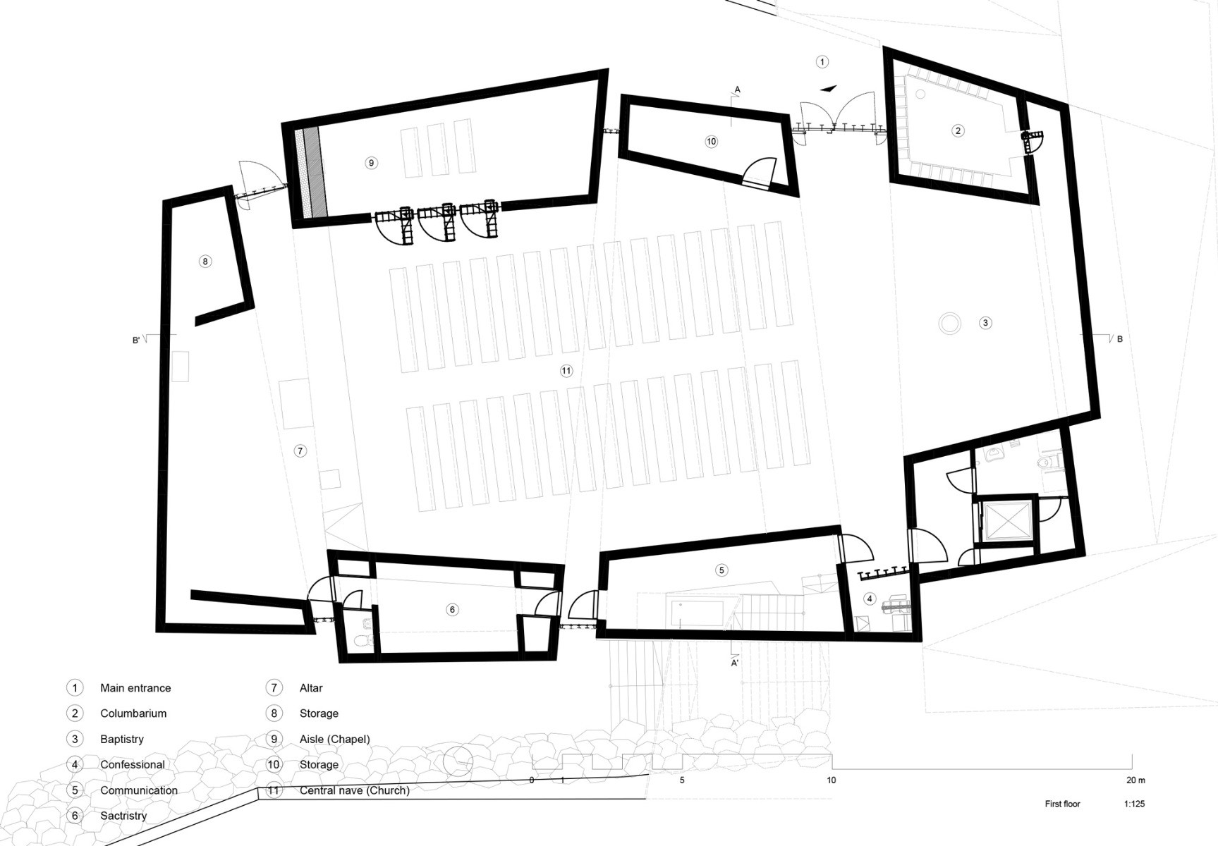
Projekt kostela z betonu a sopečných kamenů vznikl již mezi lety 2004−2005. Římsko-katolická farnost měla ve městě La Laguna vystavět nový kostel s farním centrem, které naplní komunitní požadavky. „Budova, která má tvořit dominantu ve špatně naplánované čtvrti, působí monumentálně. Její čtyři samostatné části připomínají velké balvany,“ popisují architekti z kanárského ateliéru Menis Arquitectos.
Více k tématu
„Balvany“ společně formují prostor hlavní lodi kostela, kolem té je však uspořádáno několik dalších buněk přístupných pouze z interiéru. Nachází se v nich například sakristie, zpovědnice nebo malá kaple. Loď kostela už nijak dělená není, otevírá se z ní přímý pohled do kněžiště.
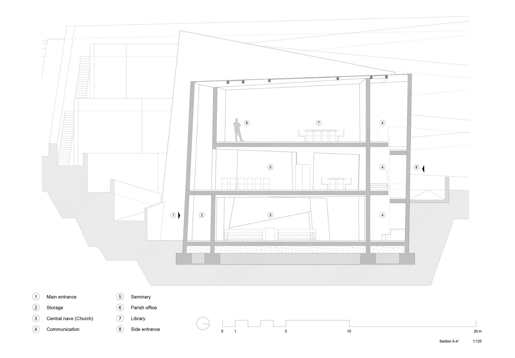
Roztříštěné objemy stavby vzájemně provazují spoje z kovu a skla, v interiéru se projevují jako štěrbiny, které dovnitř přivádějí denní světlo. Motiv radikálního průřezu je pak uplatněný i ve ztvárnění kříže na oltářní stěně.

Součástí stavby je také komunitní centrum a knihovna, prostory jsou situovány nad sebe v její západní části. Svým způsobem se propisují i do rázu interiéru kostela, na této straně je totiž loď výrazně snížená. Přirozeně tak vznikla oddělená část, která funguje jako baptisterium, tedy prostor určený pro křest.
Masivní betonovou konstrukci architekti zvolili proto, aby se v teplém podnebí Kanárských ostrovů dařilo v budově udržovat příjemnou teplotu. Pohledový beton se projevuje navenek i uvnitř. V interiéru je beton výrazně zdrsněn a prostoru tak dodává na specifičnosti, povrchová úprava má však i své funkční odůvodnění. „S ohledem na akustiku jsme beton smíchali s vulkanickým kamenem, který jsme následně štípali. Tím jsme vytvořili nepravidelný povrch, který je výrazně drsný a má vyšší míru zvukové pohltivosti než běžný beton,“ vysvětlují architekti.

Za pozornost stojí také liturgické vybavení. Oltářní menza, ambon pro četní i sedadlo pro kněze jsou stejně jako obvodové zdivo z betonu. Vše je pojato maximálně minimalisticky, jediným „nebetonovým“ prvkem jsou dřevěné lavice pro věřící. „Kostel je zbaven zbytečných prvků, které by mohly odvádět pozornost od jeho duchovní podstaty, a zenitové světlo zahaluje každý prostor do mystické atmosféry,“ dodávají architekti.
- Ateliér: Menis Arquitectos
- Spolupráce: Juan José Gallardo
- Země: Španělsko
- Město: La Laguna
- Investor: Kirche Santísimo Redentor
- Adresa:: C. Volcán Estromboli 3, 38108 La Laguna