Kouzlo staré stodoly. V areálu fary v Praze-Hostivaři vzniklo komunitní centrum a ubytování
Byla tu stodola, pak autoservis, dnes je tu sál a ubytování. Někdejší hospodářská budova v areálu fary v Hostivaři prošla mnoha proměnami, teď slouží farníkům i veřejnosti.
Karolína Vránková , 22. 5. 2024
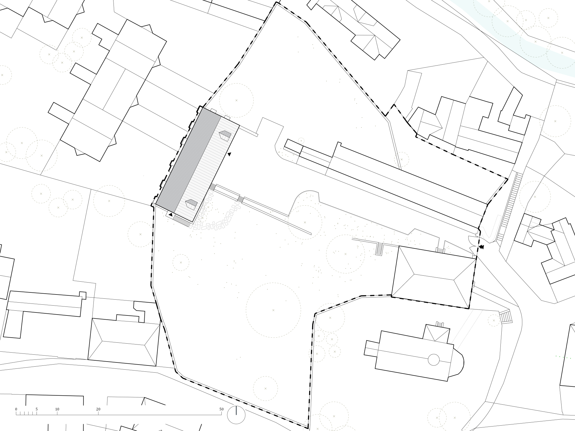
Na periferii Prahy se moc kostelů nevyskytuje. Možná i proto je v Praze-Hostivaři velká a živá farnost, kam pravidelně dochází až tři stovky lidí. Další návštěvníci sem zavítají na akce pro veřejnost. Je tu prostě rušno a lidé tu mohou navštívit středověký kostel Stětí svatého Jana Křtitele, dále je tu fara, komunitní centrum Farní dvůr v bývalých chlévech a teď také další objekt – farní stodola, která prošla revitalizací podle projektu studia Raketoplán. V přízemí je sál, v patře ubytování.

Místo autoservisu duch svatý
Původně klasicistní hospodářské stavení se sedlovou střechou pochází z počátku 19. století. V roce 1876 ho poškodil požár, v 70. letech 20. století tady vznikl autoservis. „Podle toho vnitřek té budovy vypadal, takže byly potřeba velké úpravy a hodně práce,“ říká architekt Radek Vaňáč ze studia Raketoplán.
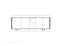
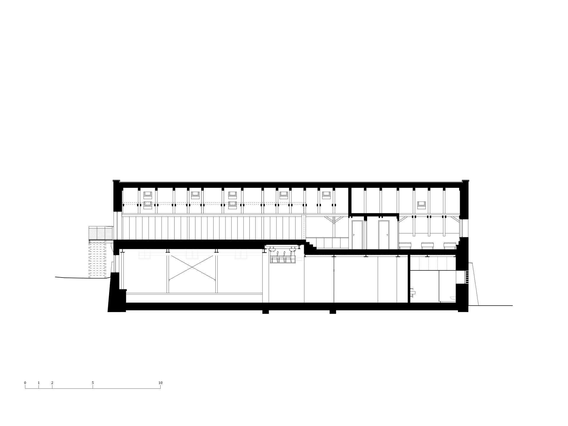
Namísto vrat do stodoly je teď prosklený portál, který navazuje na osu areálu a přirozeně zve návštěvníky dovnitř. Vstoupí do lobby, kde je také kuchyňka, šatna a toalety. Dále je v přízemí sál. Využívá se pro duchovní akce, lze si tu ale například i uspořádat svatbu. V patře se nachází ubytování pro 15 osob, několik pokojů sdílí zázemí; ubytovací kapacity farnost využívá pro své potřeby, ale také komerčně pronajímá.

Ve výrazu domu se staré s novým spíš prolíná než kontrastuje. „Materiály použité pro obnovu stavby navazují svým charakterem i řemeslnými postupy na období jejího vzniku,“ vysvětlují architekti; to se týká například dřevěných trámů či omítek. Kromě těchto tradičních elementů přibyly nové – například ocelové konstrukce stropu v tlumené bílé barvě anebo vybavení interiéru převážně z překližky.
Více k tématu
Hostivař byla jedna z nejstarších vesnic v okolí Prahy, zmiňovaná je už v Kosmově kronice. Místo statků a chaloupek tu však vyrostly paneláky a později developerské komplexy. Zachovalá část vesnice, chalupy a náves s kostelem a farou, si ještě podržela venkovskou atmosféru i měřítko a je to překvapivě malebný kout města. Teď je o důvod víc se sem podívat.
- Ateliér: Studio Raketoplán
- Autoři: Radek Vaňáč, Pavel Nalezený, Kristýna Sojka Rejsková, Ján Šefčík
- Země: Česká republika
- Město: Hostivař
- Adresa: Domkářská 21/1, Praha 15, 102 00
- Realizace: 2023