Lodními kontejnery proti bytové krizi. V centru Barcelony vznikl první dočasný bytový dům
Krize dostupného bydlení v centrech trápí velká města po celém světě. V Barceloně, jakožto jednom z vůbec nejpostiženějších evropských velkoměst, se ji snaží alespoň mírnit pomocí dočasných bytových domů složených z běžných lodních kontejnerů. První z nich vznikl v roce 2019 v historickém centru katalánské metropole.
Tereza Hůrská , 21. 8. 2022
Trendy záležitost
Že lodní kontejnery mají své místo i v architektuře, není dnes již žádnou novinkou. Rychle si je oblíbila řada architektů i investorů a původně dopravní přepravky tak rychle zaplňují ulice měst i stránky architektonických magazínů. Pod heslem „kontejnerová architektura“ dnes můžeme narazit na pestrou škálu staveb, které vzájemně pojí jejich často snadno rozpoznatelný modulární původ i (trendy) industriální estetika.
Gró kontejnerů jakožto základních stavebních jednotek spočívá v jejich modulárním charakteru, který umožňuje rychlost výstavby, úsporu nákladů i flexibilní přizpůsobení prakticky jakémukoliv využití a prostředí. Právě na tyto vlastnosti vsadili také španělští architekti, kteří pomocí experimentální dočasné bytové stavby v Barceloně reagují na jeden ze zásadních problémů, který trápí nejen španělskou metropoli, ale i další velká města.
Více k tématu

Dostupné bydlení
Řeč je o nedostatku dostupného bydlení v městských centrech v souvislosti s nepříznivou situací na trhu s nemovitostmi, na které se mimo jiné podepisuje také masový turismus. Vedení Barcelony proto přišlo s programem APROP (Close Proximity Temporary Housing Program), který má usnadnit návrat místních obyvatel do centra města. První zhmotnění tohoto programu představuje modulární stavba z lodních kontejnerů, kterou navrhli architekti ze studia Straddle3 společně s architektkou Yaziou Terré a ateliérem Eulia Architektura. Návrhu objektu ovšem předcházel vznik propracované strategie nazvané ATRI, která spočívá ve „vyplňování“ nevyužívaných prostorů v rámci městského centra pomocí dostupných lodních kontejnerů – těch má totiž Barcelona jakožto významný přístav více než dost.

Bytový dům vznikl na prázdném rohovém pozemku ve vlastnictví města, který se nachází v historickém centru Barcelony Ciutat Vella. Samotné seskládání jednotlivých kontejnerů trvalo pouhý týden, na místo navíc dorazily přímo z dílen, kde prošly potřebnými úpravami, aby mohly být použity právě k bydlení. Ve svižném tempu tak uprostřed města vyrostla kompaktní stavba, která navzdory svým rozměrům (objekt má pět nadzemních podlaží) dlouhodobě nijak neomezila život ani dopravu v této rušné lokalitě. Finální práce na staveništi, které průmyslové kontejnery proměnily v bytový dům, pak proběhly během dalších dvanácti týdnů. Po pouhých pár měsících byl dům hotov a 12 nových bytů čekalo na své nové obyvatele, kteří centrum Barcelony museli v minulosti pro nepříznivou situaci opustit.

© Adrià Goula
Kontejner = garsonka
Kolemjdoucí dokáže jen stěží odhalit, že se pětipodlažní stavba skládá právě z lodních kontejnerů. Budovu totiž architekti „zabalili“ do průsvitného pláště z vlnitého polykarbonátu, který prořezávají otvory s dřevěnými rámy. Tento plášť zároveň chrání prostory lodžií patřící k jednotlivým bytům, okna pak chrání typické žaluzie.
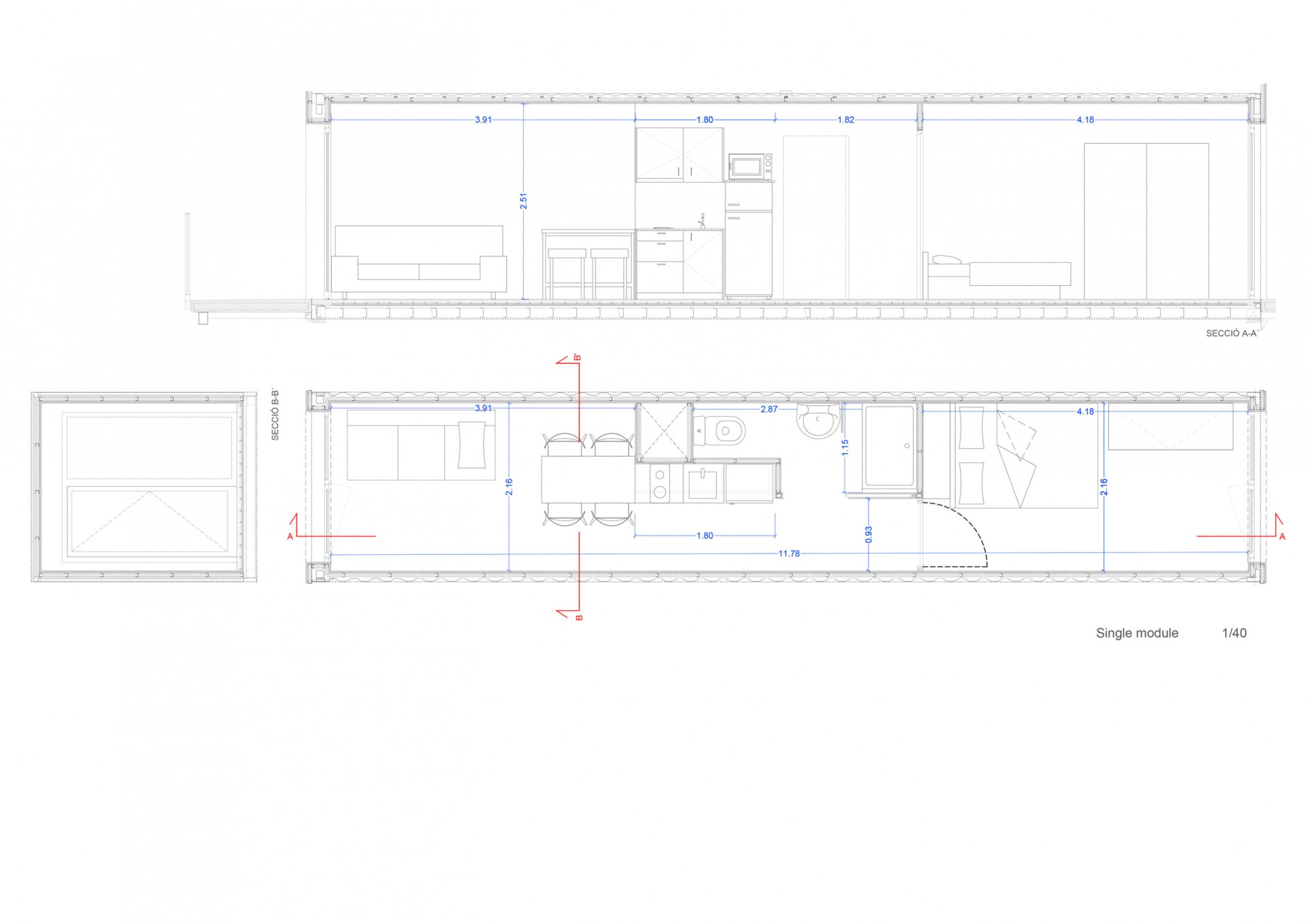
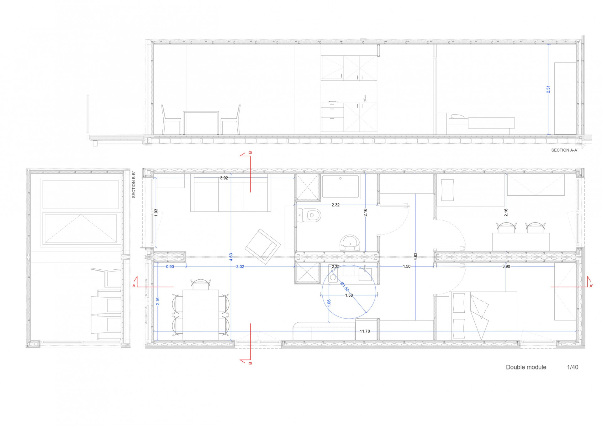
Prosklený parter nabízí prostor pro služby, další čtyři podlaží pak obsahují celkem 12 bytových jednotek – 8 jednopokojových a 4 dvoupokojové. Platí přitom, že garsonka o ploše 30 metrů čtverečních zabírá jeden kontejner, dvoupokojové byty pak vznikly spojením dvou modulů. V interiéru pokrývá jednotlivé kontejnery vrstva tepelné izolace, sádrokartonu a bílé omítky, takže se až na výrazně podélné dispozice příliš neliší od běžných domů. Kontejner tak v případě tohoto projektu (naštěstí) není nositelem estetiky stavby, ale plní pouze funkci lokálního, ekologického a flexibilního stavebního modulu, díky němuž může být ubytování dostupné i pro obyvatele z nízkopříjmových skupin. Pečlivý přístup architektů ke každému detailu pak jen dokazuje jejich názor, že i sebevíc low-cost bydlení může mít také estetické kvality.

© Adrià Goula
Zbrzdit
Dům vzhledem ke své „dočasnosti“ nabízí přechodné bydlení a obyvatelé je mohou využívat po dobu 2-5 let. Byty jsou vybaveny zcela utilitárně, o to víc je však dbáno na celkový komfort života v domě. Všechny byty je tak možné například příčně provětrat, dostatečné zateplení stěn v kombinaci s provětrávanou polykarbonátovou fasádou zas zajišťuje kvalitní tepelné podmínky.

© Adrià Goula
Projekt barcelonskou bytovou krizi pochopitelně nespasí, je však jasnou ukázkou toho, že i za pomoci velice jednoduchého řešení ji lze postupně mírnit. V současné době slaví APROP své první narozeniny a je jen otázkou, jak dlouho bude plnit svou funkci a kdy se barcelonský seznam modulárních kontejnerových objektů rozšíří o další podobný objekt.


© Adrià Goula
- Ateliér: Straddle3, Eulia Arkitektura
- Autoři: Yaiza Terré
- Země: Španělsko
- Město: Barcelona
- Realizace: 2019