
Malý panelákový byt na Proseku rozčlenili architekti boxy z odpadového materiálu
Pražské studio Papundekl architekti navrhli rekonstrukci bytu v panelákovém domě pro výtvarníka Jana Bártu. Během projektu došlo k odstranění všech lehkých montovaných příček a vložení boxů s různým využitím, pro které architekti využili desky z recyklovaného materiálu Packwall.
EARCH.CZ , 28. 4. 2023
„Třípokojový byt jsem získal po rodičích. Jeho padesátileté obývání bez velkých úprav si nevyhnutelně žádalo rekonstrukci. S tou jsem sice nespěchal, ale kromě toho, že náklady na přestavbu v poslední době rostly stále výrazněji, zalíbila se možnost účastnit se přestavby panelákového bytu mému synovi, který je architektem. Pravda, několika mým známým, vrstevníkům především, se návrh na přestavbu zdál odvážný, ale mně se zdálo, že když už se přestavuje, mělo by se mé bydlení stát opravdu moderním a příjemným místem k pobývání,“ představuje počátek projektu investor.
Více k tématu
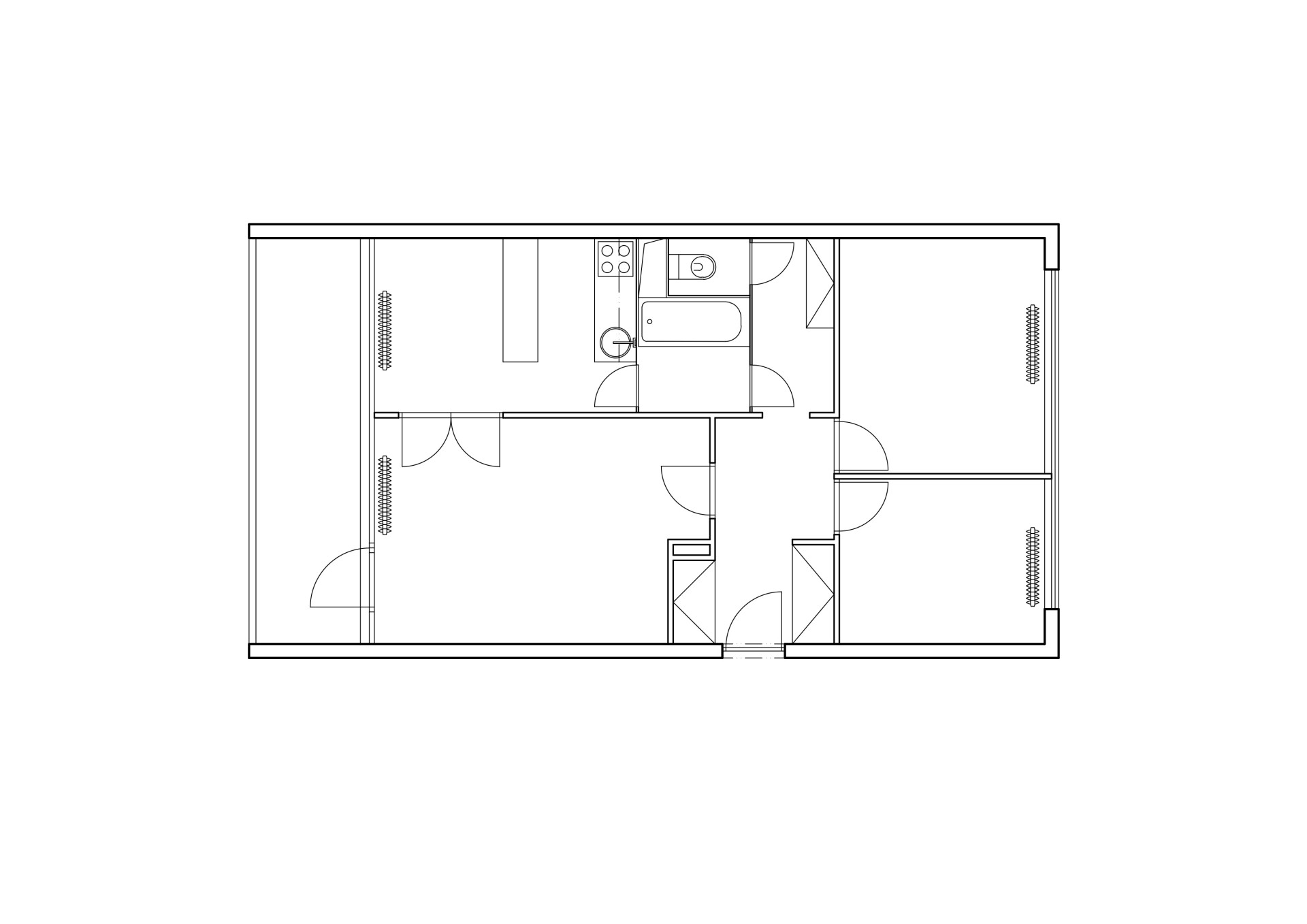
Malý byt v proseckém paneláku z konce 60. let minulého století doposud nebyl výrazněji upravován. Architekti navrhli odstranit všechny původní lehké montované příčky. Namísto několika malých pokojů a chodeb tak vznikl jeden spojitý prostor sjednocený betonovou podlahou, který prosvětlují z obou stran pásy oken. Do tohoto prostoru autoři návrhu vložili tři minimalistické boxy s různým využitím.
“Pojetí bytu jako jediného prostoru se třemi výraznými objekty poskytovalo dostatek volného a prosvětleného místa. V jednom boxu s prosklenou stěnou do pracovny byl v návrhu umístěn sprchový kout s umyvadlem, toaletou a automatickou pračkou. Je v něm také z vnější strany prostor pro mikrovlnnou troubu, lednici a nádobí spolu s policemi pro další kuchyňské potřeby. Druhý box s průhledem z laminátu slouží jako předěl mezi denní částí prostoru a místem pro spaní. V boxu jsou další úložné prostory a místo k uložení šatstva. Dominantou bytu zůstává kuchyňský pult se sloupem, jenž prochází přímo pracovní deskou,” popisuje nový interiér svého bytu výtvarník Jan Bárta.

Pro opláštění boxů využili architekti desky z recyklovaného materiálu Packwall. Tyto barevné desky lze použít také pro provozně náročnější části nábytku, jako jsou otvíravé či výsuvné části kuchyňského ostrůvku nebo šatní skříně. „Hosty, kterých jsem ve svém bytě uvítal už celou řadu, udivuje materiál sestavený z desek vyrobených z odpadového materiálu. Zpracování vnímají jako příjemně kontrastující a oživující prostor tónovaný do světle šedé,“ říká Bárta k tomuto materiálu.
Ateliér Papundekl architekti ostatně ve svých projektech rád uplatňuje nezvyklé materiály originálními způsoby. Například ve své nedávné rekonstrukci panelákového bytu v Ďáblicích vsadil na luxfery pro příčky, v jiném bytě využil polykarbonát a panely pavilonu na pražském Výstavišti pak nechali zhotovit ze sklolaminátu.

„V bytě žiji od října, a ač už ani svým věkem nepatřím mezi přívržence avantgardy, cítím se zde opravdu jako doma. Za obrovskou výhodu považuji umístění bytu v sedmém, tedy nejvyšším, patře domu. S okny prosklenou téměř celou stěnou sousedící s lodžií vytvářejí pocit svobody a volnosti. Nejčastěji využívám místo za sporákem a s ohledem na práci s potravinami oceňuji rovněž velmi jednoduchou možnost úklidu podlahy z litého betonu,“ uzavírá majitel.
- Autoři: Jan Bárta, Šimon Bierhanzl, Marek Fischer, Kristýna Geržová
- Ateliér: Papundekl architekti
- Země: Česká republika
- Město: Praha
- Projekt: 2021
- Realizace: 2022
- Užitná plocha: 57 m²