Panelák, otevřená mysl a hodně bílé. Jak si z panelového bytu udělat minimalistické bydlení
Majitelka panelového bytu chtěla čistý a moderní prostor pro sebe a své dva syny. Nemá ráda zbytečnosti a má odvahu. Architekti ze studia RDTH se taktéž nebáli a vzniklo úplně nové bydlení a místo pro "svobodu ducha." Architekti popisují, jak všichni uvažovali.
René Dlesk / Tamara Kolaříková (Horová) / EARCH.CZ , 12. 3. 2024
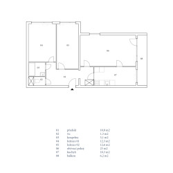
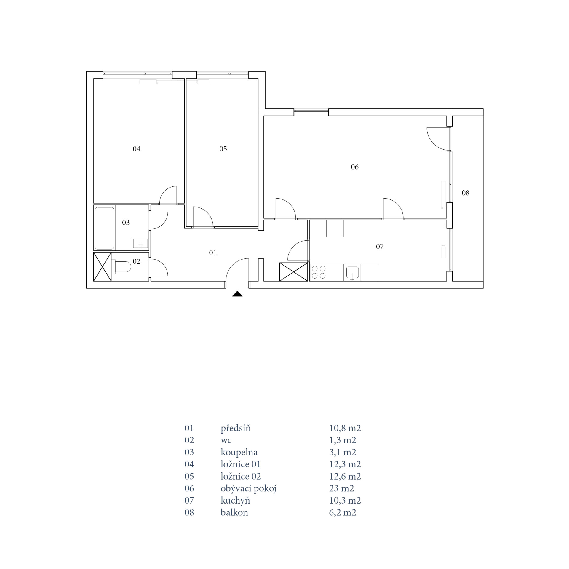
Co všechno je skutečně potřeba k životu? Kolik mentálního prostoru nám zabírají materiální věci kolem nás? Je možné dosáhnout svobody mysli a ducha minimalismem? Co je ještě funkce a co je touha? Jak je možné fungovat v bytě o rozloze 74 m² v panelovém domě tak, aby tři členové domácnosti měli soukromí a zároveň prostor být spolu?
Paní H naši práci viděla v televizi. Ozvala se nám den poté, co v ní odvysílali reportáž o našem projektu Byt architekta. Má dva syny, dvojčata a vychovává je sama. Řekla nám, že má také byt v panelovém domě a že by od nás chtěla, abychom pro ni a její děti vymysleli absolutně “čistý” a moderní byt. Říkala, že v Praze má i jiný byt, ve kterém lze komfortně bydlet a můžeme tak být v naší práci svobodnější.
Více k tématu
Velká výhoda panelových bytů je, že je lze obyčejně téměř kompletně přeprogramovat. Největší hodnota, která tak může vzniknout, je více volného prostoru.
S paní H jsme v prvních krocích hledali, kam až nás v rekonstrukci pustí a jaké jsou hodnoty, které by se při rekonstrukci měly projevit. Jednoznačně to byl minimalismus, až asketický přístup k životu, potřeba zbavit se prvoplánových dekorací i potřeby vytvořit “příjemný” interiér a nechat prostor pouze racionálním potřebám členů své rodiny.

Ptali jsme se třeba, jestli opravdu potřebuje ložnici ve dne a obývací pokoj v noci. Její skromnost a otevřená mysl nás dovedla k závěru, že jde o zakořeněný zvyk a že rozhodnutí o zvycích záleží na uživateli a okolnostech jeho života. Vynechat některé návyky je legitimní možností při rozhodování o budoucí organizaci prostoru, ve kterém budete bydlet a může to přinést řadu výhod. A tak její ložnice vzniká z obývacího pokoje a obývací pokoj naopak z ložnice. Navíc se paní H bez problémů vyspí na obyčejné pohovce. Paní H se však občas hodí možnost alespoň vizuálního soukromí. Stačí jí obyčejný závěs. Uvnitř závěsu vzniká vlastní svět.
Není to ovšem jen ložnice s téměř dokonalým odcloněním slunečního světla pomocí blackout-závěsu. Může to být i kino. Pokud se díváte se sluchátky, nikdo, kdo se pohybuje kolem, nemusí vědět, že zrovna běží hlučná akční scéna. Stroboskop filmu zůstává uvnitř a neobtěžuje ty, kteří se nechtějí dívat a poslouchat. Mohou si připravovat oběd nebo večeři a v klidu si ji sníst, nebo si spolu povídat, jako by to bylo za stěnou.

Situací a scénářů vzájemných kombinací je mnoho. Tyto dva světy za tenkou membránou jsou propojeny, nicméně při vzájemném respektu mohou fungovat dobře i autonomně. Když je závěs odsunut, je to klasický obývací pokoj s kuchyní a jídelnou, kde rodina funguje spolu. Závěs se tehdy stává nejen dekorací, ale zlepšuje i akustiku velké místnosti.
Na druhou stranu, pro paní H bylo důležité, aby synové měli své vlastní pokoje. Jsou symetricky identické. Každá má stůl přes celou šířku pokoje, zabudovanou skříň a výsuvnou postel. Tu lze používat jako klasické jednolůžko, sedačku, nebo při vysunutí jako skromnější dvoulůžko. Když je potřeba se celé dny učit, dívat se na seriály, nebo se válet, lze ji snadno přemístit do středu místnosti.

Nastavitelná nástěnná lampa dobře slouží při jakékoliv poloze postele. Když je třeba na chvíli trochu více prostoru, například na cvičení, lze celou postel přesunout pod stůl, který nemá žádné podnože a je kotven na ocelových konzolách ze stěny. Skrze světlíky nad skříněmi se sluneční světlo dostává skrz pokoje do vstupní haly a koupelny. Sluneční světlo v těchto prostorách je v panelácích vzácností. Tok světla opačným směrem má však obyvatel pokoje pod kontrolou vlastním ovládáním zatemňovací rolety nad světlíkem.
Přes celý byt, od podlahy až po strop, běží jednotná lineární sestava bílého utilitárního nábytku. Integruje v sobě kuchyni, mnoho skladovacího prostoru, prostor pro pračku a sušičku i samostatnou toaletu.
Strohost, která provází celý projekt a je panelovému domu vlastní, se projevila i v řešení zabudovaného nábytku. Veškerý zabudovaný nábytek i povrchy, kromě závěsů a podlahy z marmolea, jsou bílé. Spolu vytvářejí pozadí umožňující svobodný výběr volně stojícího nábytku, doplňků a pokojových rostlin.

Dřevo, které je příjemné na dotek, je použito na jídelním stole a pracovních stolech v pokojích chlapců. V bytě ovšem hraje důležitou roli i modrá barva. Tu má paní H ráda. Je všude a současně nikde. Je skrytá a objeví se vždy, když se cokoli otevře. Je uvnitř každé skříně, kuchyňské skříňky, WC nebo v koupelně. Modrá je ornament, který se rozvíjí různorodostí vybavení, které uvnitř nábytku rodina uskladní.
Druhá vrstva ornamentu je méně nápadná, ale dá se najít. Jsou jím styky panelů a ošetřené „jizvy“ po odstranění příček. Podobně jako původní stále dobře fungující článkové radiátory nebo trubkové rozvody vytápění, společně představují paměť a charakter původního panelového bytu. Tyto momenty a prvky se nesnažíme skrýt, jakoby byly něco nehezkého. Panelový byt se za ně nemá proč stydět. Jsou pro něj přirozené.
- Ateliér: RDTH architekti
- Autoři: René Dlesk, Tamara Kolaříková (Horová)
- Spolupráce: Kristýna Kopecká, Kristián Vnučko
- Země: Česká republika
- Město: Praha 9 - Vysočany
- Fotograf: Filip Beránek