Mezi městem a krajinou
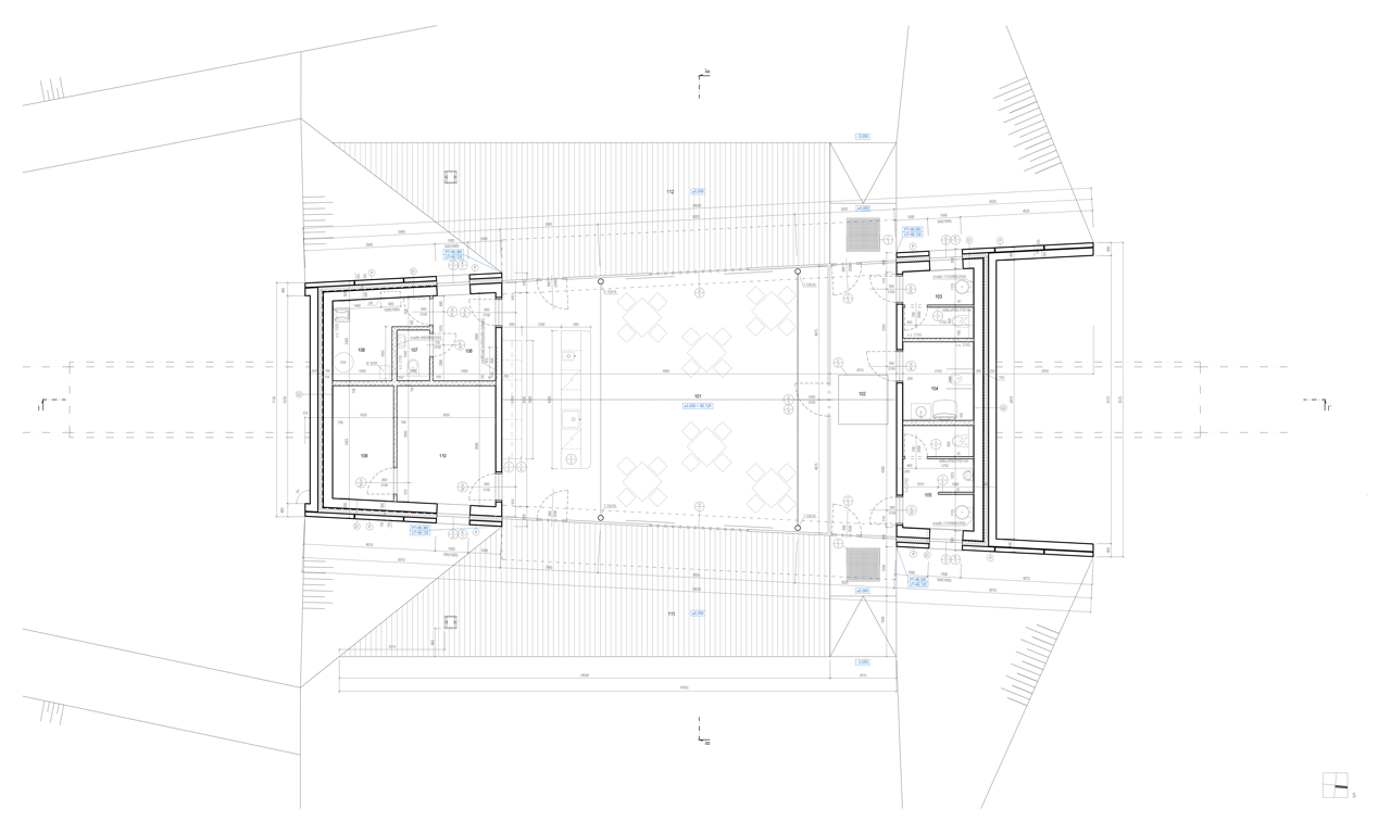
Téměř před dvěma lety byl slavnostně otevřen nový českobudějovický park 4Dvory. Na místě bývalého vojenského prostoru, v centrální poloze mezi sídlišti Máj a Vltava, byl zrealizován vítězný návrh architektonické soutěže z roku 2012. Kromě samotných parkových ploch zde vznikla také kavárna nebo skatepark.
David Prudík / M&P Architekti – Krajinářská architektura , 31. 8. 2016
Více k tématu
- Autoři: David Prudík, Markéta Veličková, Petr Velička, David Prudík
- Ateliér: M&P Architekti – Krajinářská architektura, M&P Architekti – Krajinářská architektura, M&P Architekti – Krajinářská architektura
- Spolupráce: Terezie Havlíková, Kateřina Koudelová, Pavla Drbalová, Eva Teplická, Jan Zemánek
- Země: Česká republika
- Realizace: 2014
- Generální dodavatel: Gardenline s. r. o.
- Město: České Budějovice
- Ulice, číslo: E. Rošického 365/16
- PSČ: 370 05
- Suma: 30 000 000.00
- Měna: CZK
- Datum projektu: 2012
- Realizace: 2014
- Plocha pozemku: 28 400.00m2
- Foto ©: Jakub Holas