
Moderní střídmost. V Jizerských horách vyrostl dům se stodolou respektující místní tradici
Archetypální rodinný dům se stodolou zapadl do rázu malé obce v Jizerských horách. Architekti vsadili zejména na tradiční a přírodní materiály.
Adéla Vaculíková , 14. 12. 2022
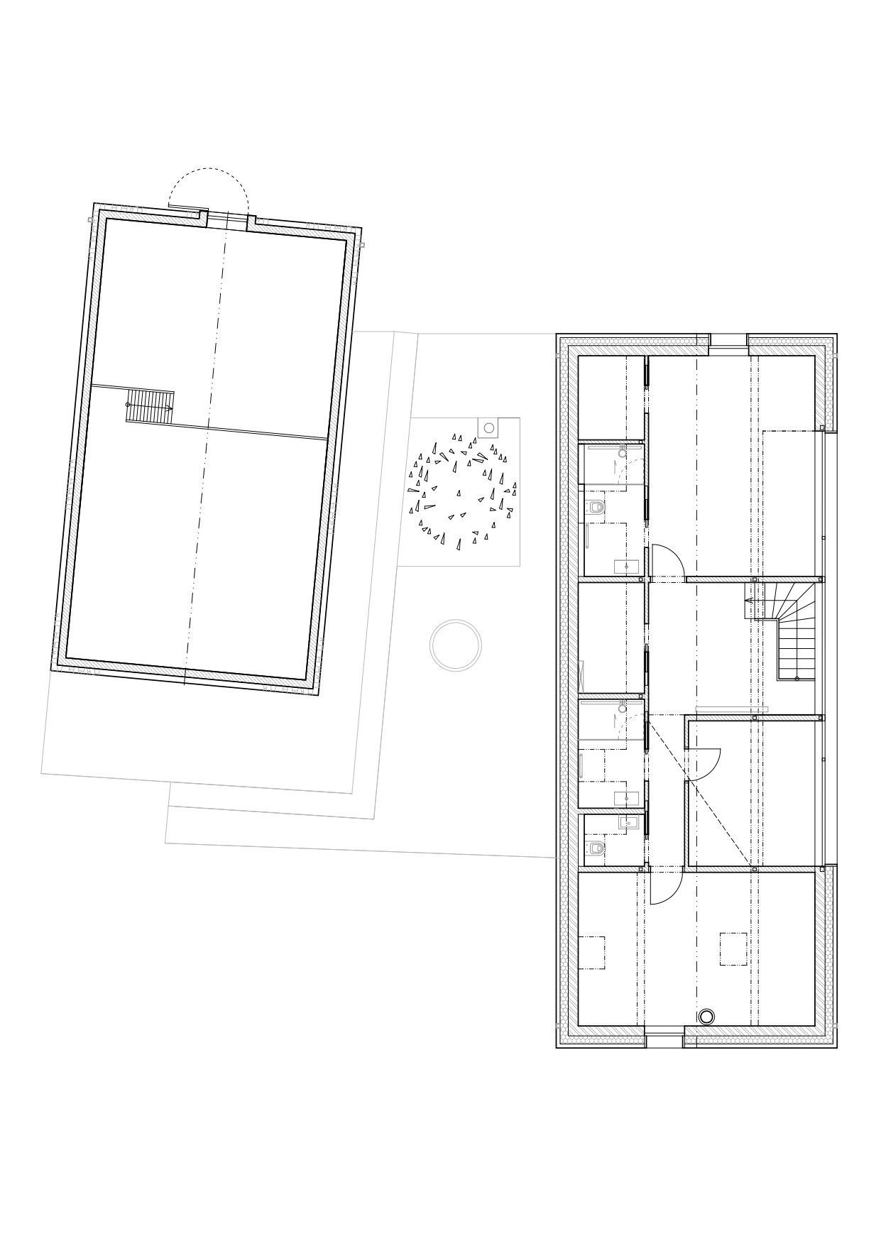
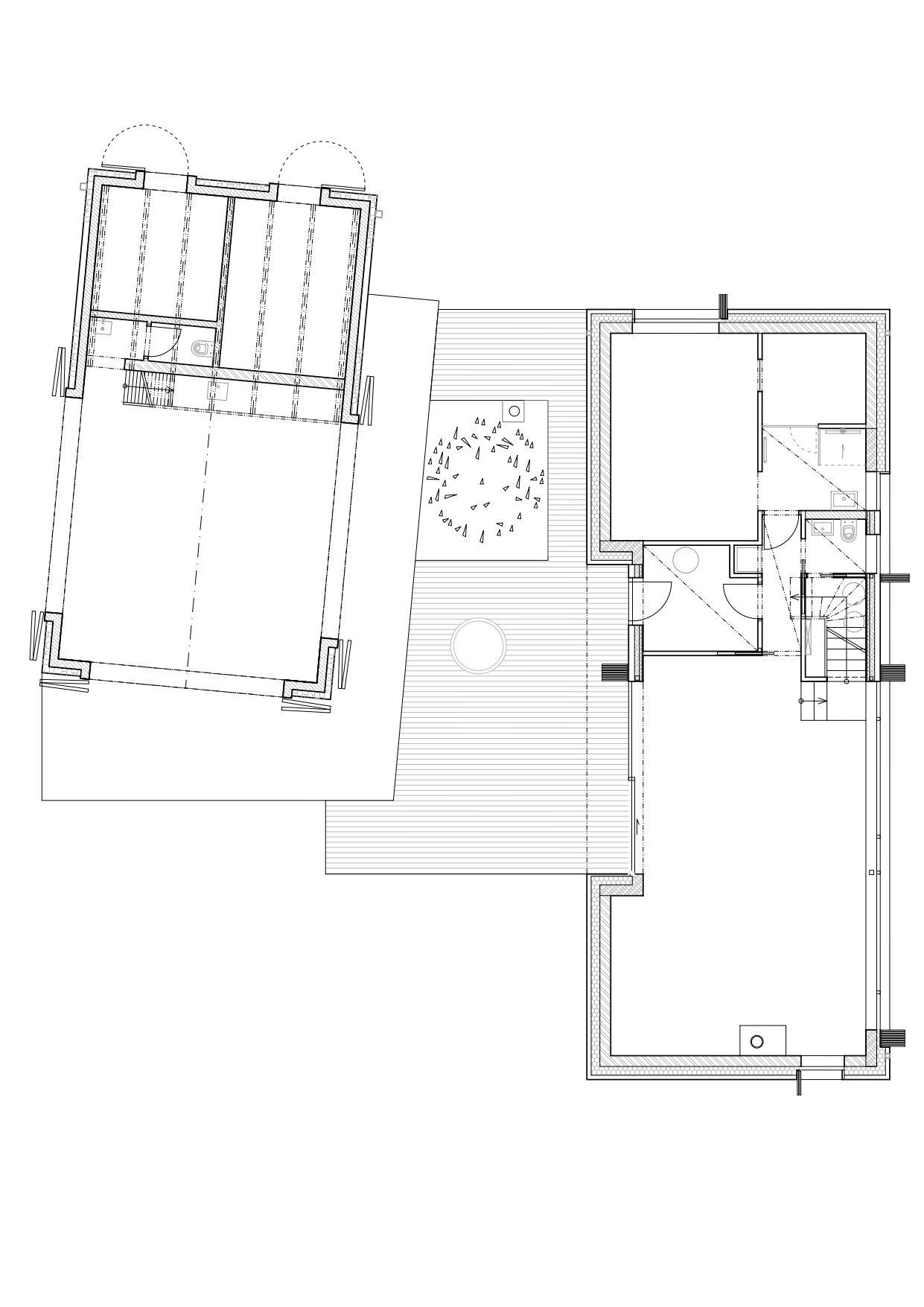
Architekti ze studia Labor 13, které sídlí v pražských Holešovicích, navrhli pro investora jednoduchý rodinný dům a samostatně stojící stodolu, které zapadají do krajiny Jizerských hor jak svým materiálovým zpracováním, tak i svými archetypálními formami.
Stavby zároveň architekti provázali rozlehlou terasou a vytvořili tak útulný soukromý prostor pod otevřeným nebem. „Zrodila se koncepce paralelně postavených hmot, které mezi sebou vytvářejí terasu, která má privátnější charakter a je od okolí cloněna právě jednotlivými domy. Koncepce ale zároveň zachovává průhledy do krajiny a tradiční vesnický ráz a měřítko,“ vysvětlují architekti.
Více k tématu
Pro stavbu obou objektů přitom autoři využili především tradiční přírodní materiály. Dvoupodlažní rodinný dům opláštili dřevěným laťováním. Protější stodola je zase postavená z lokálně těžených žulových kostek. „Stodola je zcela utilitární stavba s velkými vraty, které lze zcela otevřít a propojit tak vnitřní prostor s okolní přírodou,“ dodávají autoři realizace.
Právě jednoduchá až utilitární forma a archetypální tvarosloví prostupují celou realizací. Stavby se navenek tváří, jako by na místě stály od nepaměti. Až bližší pohled odhalí, že jde o moderní novostavby. Rodinný dům se po stranách se otevírá velkými posuvnými okny, skrze něž do interiéru proudí dostatek světla. Obývací pokoj tak navíc lze bezprostředně propojit s venkovní terasou. Obytné podkroví zase osvětluje široký vikýř.

Barvy a materiály z exteriéru se přirozeně přelévají i do interiéru domu. Hlavní roli zde hraje opět dřevo. Odhalený betonový strop pak do interiéru vnáší moderní prvek.
Díky sázce na jednoduchou siluetu domů se architekti dokázali velmi dobře přizpůsobit architektonickému rázu místa, kterému dominují právě dlouhá stavení se sedlovými střechami. „Obě stavby skvěle zapadly do okolní přírody a vytvořily příjemné zázemí pro majitele. I pro nás to byla velmi zajímavá realizace s pěkným výsledkem,“ podotýkají architekti na závěr.

- Autoři: Martin Vomastek, Eva Smolíková
- Ateliér: LABOR13
- Realizace: 2021
- Místo: Jizerské hory