
Dva a půl štítu plus stodola. Jak se při rekonstrukci rodinného domu spojilo staré s novým
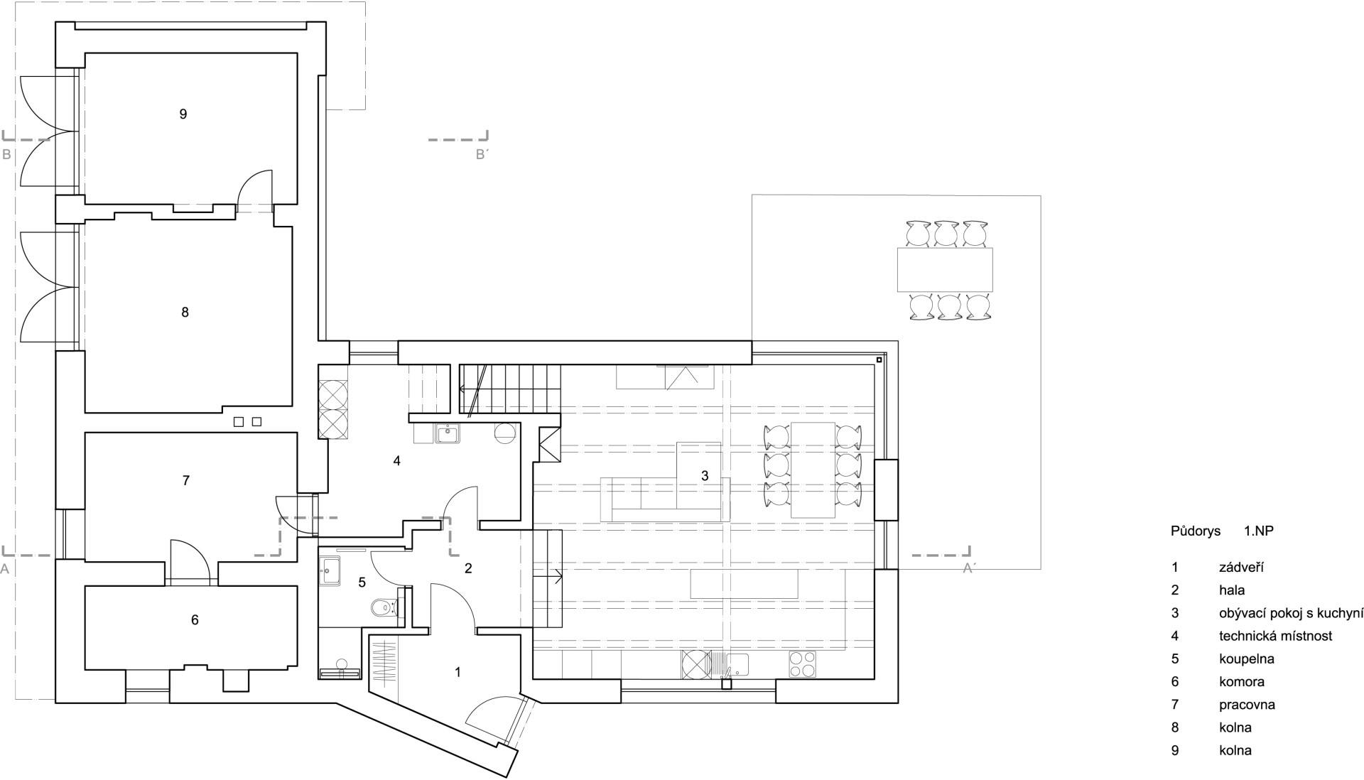
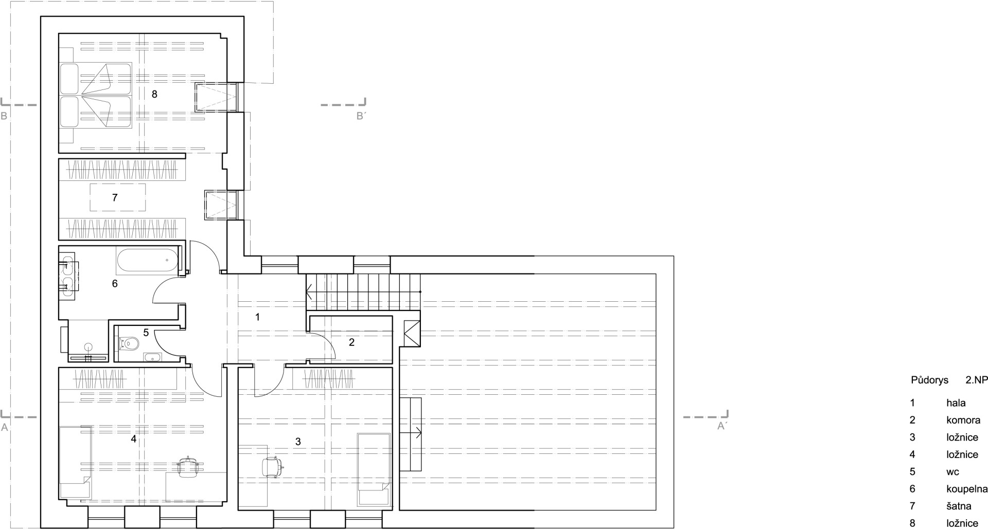
Tři domečky pro čtyřčlennou rodinu, tak svou realizaci nazvali architekti Kamila a Jan Davidovi. Nejde přitom o soubor samostatných objektů, ale jeden rodinný dům. Má tři štíty, tři ložnice a tvář mu dávají tři hlavní materiály – klasická omítka, dřevěný obklad a lomový kámen.
EARCH.CZ , 29. 8. 2023
Před rekonstrukcí to byl dost obyčejný domek s hrubou omítkou a hnědými obklady v místě soklu. Aspoň takovou podobu dostal někdy v 70. letech. Ve své hmotě měl ale zakomponovanou i starší část – konkrétně stodolu z dvacátých let 20. století.
„Architektonickým záměrem bylo zachovat historickou část budovy – stodolu zastřešenou sedlovou střechou. Pozdější přístavbu, poplatnou době svého vzniku, jsme naopak chtěli zesoučasnit tak, aby s původní částí tvořila harmonický, výrazově jednotný celek,“ popisují architekta a architekt z kanceláře daviddavidová architekti.
Více k tématu
Původní stodola je nově šedě omítnutá, vrátily se na ni také lizénové rámce, které byly v průběhu času překryty. Přízemí z lomového kamene zůstalo přiznané tak, jak tomu bylo i dřív. Na místě zůstaly stará vrata do garáže, která jsou hezkým, příjemně nedokonalým prvkem na jinak zrekonstruovaném objektu.
Přístavba je opláštěná dřevěným, vertikálně kladeným obkladem z nehoblovaných a neošetřených modřínových prken. Od stodoly se tak na první pohled odlišuje, zároveň se jí přizpůsobuje hmotově, a vlastně i tvarově. Směrem do ulice se dům obrací postupně se snižujícím střešním horizontem. Siluetu má tradičně netradiční – formuje ji skladba dvou a půl štítů. „Ty postupně mění proporce i tvar,“ říkají architektka a architekt.

Uvnitř je dům hodně prosvětlený, převazuje bílá výmalba a antracitové detaily – rámy oken, krbový komín, překlad v místě, kde se stýkají dvě sedlové střechy. Hlavní obytný prostor s kuchyní se otevírá do jejich krovů a taky ven do zahrady, jsou zde totiž francouzská okna.
„Obývací pokoj spolu se vstupním prostorem, schodištěm a halou v přízemí tvoří velkorysý jednoprostor. V patře jsou pak tři samostatné pokoje, každý v jednom ze štítů a otevřený do krovu sedlové střechy – tedy tři domečky, pro potřeby čtyřčlenné rodiny,“ uzavírají popisem dispozičního řešení architekti.

- Autoři: Jan David, Kamila Davidová
- Ateliér: daviddavidová architekti
- Země: Česká republika
- Město: Písnice
- Projekt: 2018
- Realizace: 2021
- Užitná plocha: 200 m²
- Zastavěná plocha: 170 m²