Architektura
/
rodinné domy
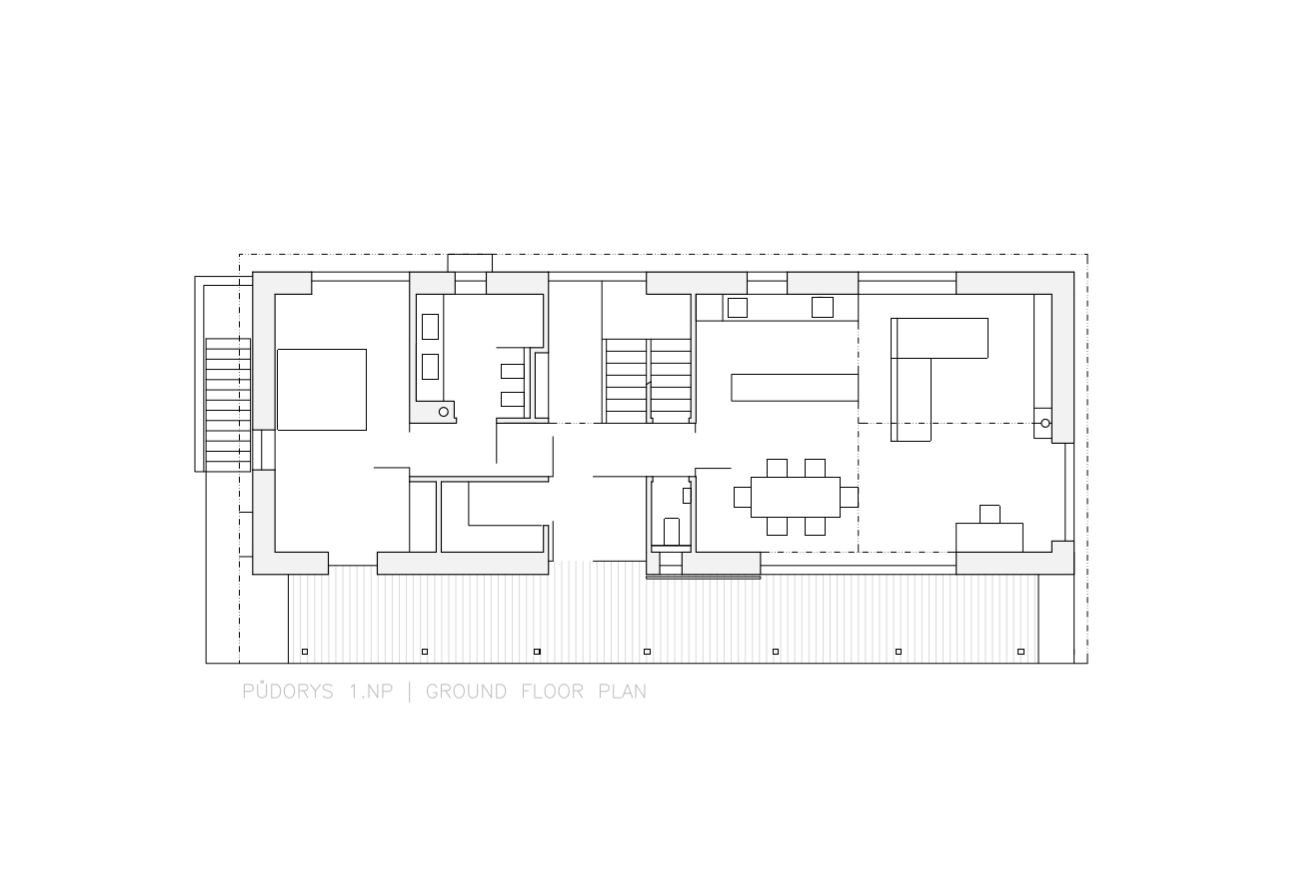
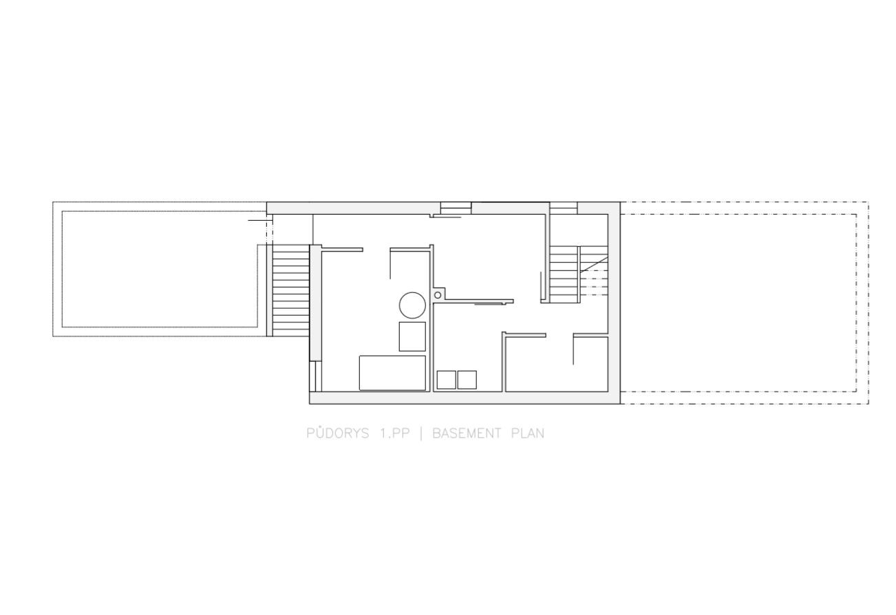
Na místě bývalého statku na Vysočině postavili Machar & Teichman rodinný dům se stodolou
V malé obci na Vysočině vznikly dva hmotově příbuzné objekty. Dvoupodlažní stavba slouží bydlení, sousední stodola pak funguje jako garáž a skladovací prostor. Architekti Pavel Machar a Radek Teichman navrhli dům se stodolou tak, aby svým charakterem korespondovaly s okolním venkovským prostředím. Obě stavby navíc vycházejí z půdorysné stopy bývalého statku.
Machar & Teichman , 4. 7. 2018
- Autoři: Pavel Machar, Radek Teichman
- Ateliér: Machar & Teichman
- Spolupráce: Štěpán Svačina
- Země: Česká republika
- Realizace: 2017
- Datum projektu: 2014
- Realizace: 2017
- Foto ©: Peter Fabo