
Namísto ruiny prostor pro děti. Strojní mlýn v Karlovicích znovu slouží
Spolek z Karlovic opravil rozpadlý mlýn a vytvořili tu fungující vzdělávací centrum. Projektoval zdejší rodák, architekt Jaromír Walter. Příběh s happyendem z Jeseníků.
Karolína Vránková , 9. 8. 2023
Výstavy. Interaktivní naučná stezka Cesta kolem vody, která provede děti podél řeky Opavy. Příměstské tábory. Programy pro školy. To vše se koná v centru VÍCE Ve mlýně v Karlovicích v Moravskoslezském kraji. S programy začal místní spolek Actaea a jeho předsedkyně Kateřina Kočí už před dvaceti lety. Dlouho jim však chyběla základna. Až je napadlo znovu využít rozpadající se budovu strojního mlýna.
Více k tématu
Mlýn byl pro obec významnou stavbou. Jeho turbína ve dne poháněla mechanismus na mletí mouky, v noci veřejné osvětlení. Jenže nic z toho už není potřeba, a tak se pro něj dlouho hledalo nové využití.

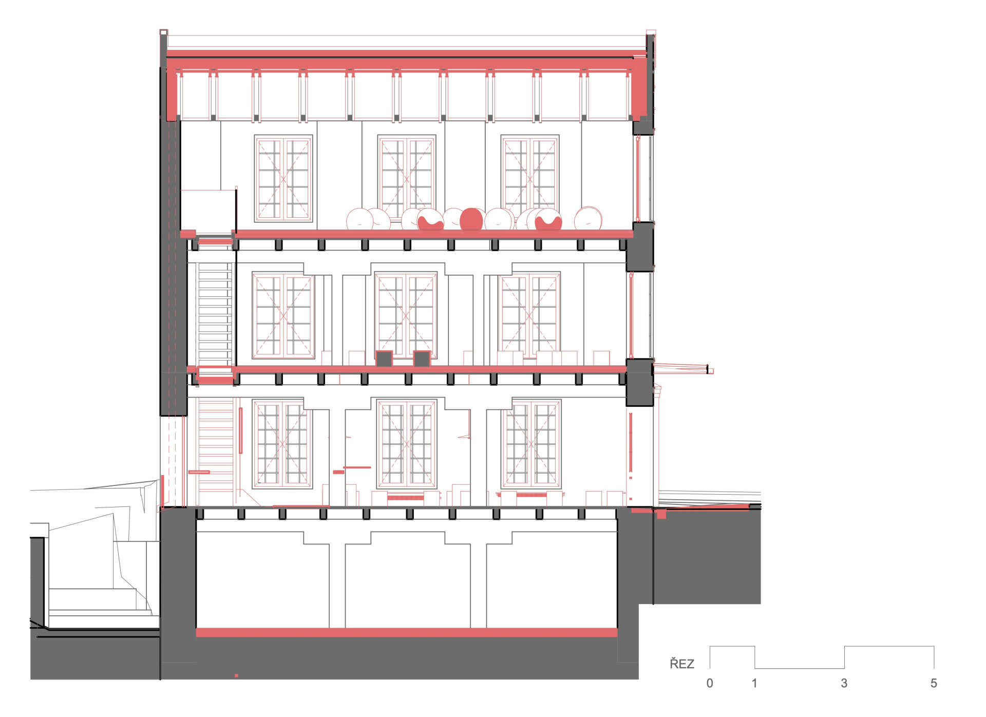
Kateřina Kočí s manželem a spolek Actaea mlýn v roce 2013 odkoupili, následovalo několik let svépomocných oprav, a pak celková rekonstrukce za evropské dotace. Mlýn je teď vybavený pro současný provoz. Je v něm nové vytápění, izolace podlah, k původním oknům přibyla nová s lepšími tepelnými parametry.
Čerstvá omítka byla provedena tradiční technikou, detaily zedníci opravili podle fotografií ze třicátých let. Projekt vytvořil architekt Jaromír Walter, rodák z Karlovic, za přátelskou cenu. Opravy původních oken udělal zdejší kovář a další místní přispěli v hithitové kampani na fasádu.

Společným úsilím se povedlo mlýn opravit a slouží pro vzdělávací programy, v létě je otevřený i pro veřejnost. Stala se z něj místní turistická atrakce a taky důkaz, že i vysloužilá stavba může smysluplně ožít.
- Autoři: Jaromír Walter, Filip Med
- Ateliér: Atelier Walter
- Země: Česká republika
- Město: Karlovice
- Adresa:: Karlovice 421, Karlovice, Česká republika
- Investor: ACTAEA společnost pro přírodu a krajinu
- Projekt: 2021
- Realizace: 2022
- Náklady: 3 600 000 CZK