Přestavbou větrného mlýna vytvořili architekti atypické bydlení na míru odvážnému investoru
Starý větrný mlýn na polském venkově získal druhý život. Zasloužili se o to architekti z ateliéru o4 architekci, kterým se podařilo rafinovaně využít vertikální uspořádání domu a vytvořit tak neobvyklý pětipatrový interiér odpovídající dnešním nárokům na bydlení.
Sára Kročková , 10. 11. 2022
Myšlenka bydlení ve větrném mlýnu se zrodila v rámci mezinárodní architektonické soutěže „Contemporary House 2014 – Village House“. Architekti Michał Kucharski a Tomasz Padło obdrželi v této soutěži ocenění na národní úrovni. O pár let později si jejich práce všiml investor z Lublinu, města ve východním Polsku, který jeden takový mlýn vlastnil.
Více k tématu
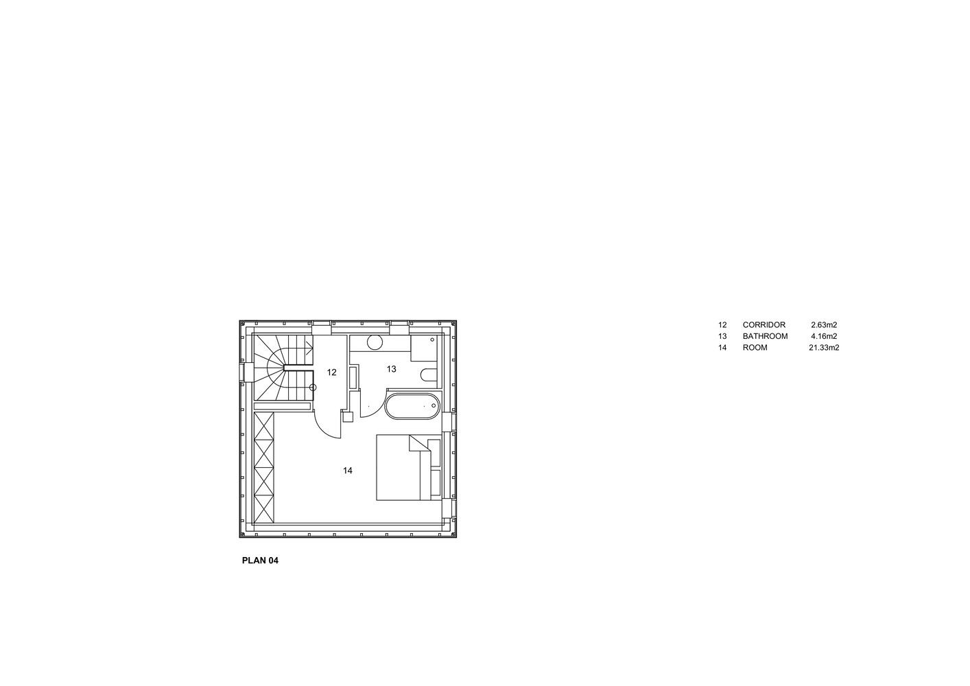
Architekti proto svůj projekt znovu oživili a přizpůsobili jej jak požadavkům investora, tak i místním podmínkám. Půdorys domu představuje čtverec o rozměrech 6,5 x 6,5 metru. Suterén je vybaven technickou místností, garáží a servisní částí. V prvních podlažích najdeme obývací pokoj, kuchyň, jídelnu a terasu. V horních patrech se nachází ložnice a koupelny – autorům návrhu se tak podařilo zajistit oddělení denní a noční zóny domu. Aby se dovnitř dostal dostatek denního světla, použili architekti velká okna nabízející malebné výhledy do okolní krajiny polského venkova.

K renovaci konstrukce větrného mlýnu byl použit především železobeton, dřevo a sklo. Nosné pilíře a desky jsou z vyztuženého betonu. Na fasádu architekti použili staré dřevěné desky, které přispívají k vizuální harmonii s okolím. Venkovní fasádu doplňují dva typy oken. Vertikální otvory zdůrazňují rastr dřevěného obkladu, horizontální naopak vizuálně propojují první patro a suterén se zahradou. Jako střešní krytina slouží dřevěný šindel. V neposlední řadě bylo na budovu přidáno opravené mlýnské kolo a mnoho dalších prvků z původního větrného mlýnu.

Architekti dokázali velmi citlivě zachovat původní výraz a formu mlýnu. Při renovaci využívali historické i moderní prvky a postupy. Působivý výsledek vznikl díky kombinaci citlivého designu, respektu k původnímu a v neposlední řadě odvážného investora.
- Ateliér: o4 architekci
- Autoři: Michał Kucharski, Tomasz Padło, Mateusz Piwowarski, Sylwia Ciesielska
- Země: Polsko
- Město: Lubartów
- Zastavěná plocha: 79 m²
- Realizace: 2021