Architektura / interiér

Nový basketbalový obchod v pražském paneláku se nese ve znamení odhaleného betonu a neonů

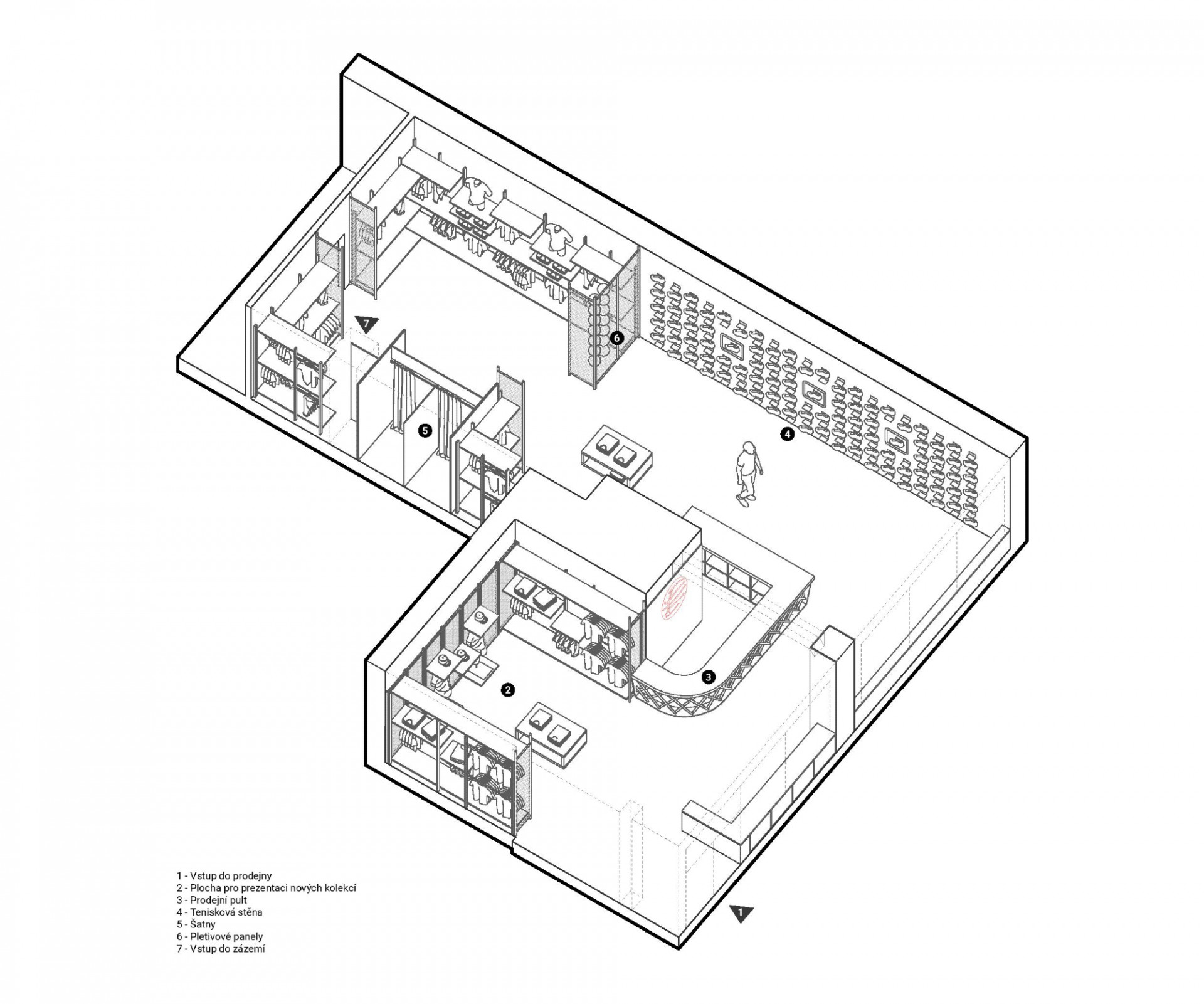
Mladé architektonické studio PANIKHORN navrhlo kompletní proměnu prostoru bývalé samoobsluhy v jednom z paneláků pražské Libně na designovou prodejnu sportovního oblečení a basketbalové obuvi. Architekti pracovali s kombinací odhaleného surového betonu a barevných neonů, které dávají vyniknout vystavenému zboží. Celému obchodu pak dominuje prodejní pult s červeným neonem ve tvaru basketbalového míče.

PANIKHORN , 28. 7. 2021

  • autor: PANIKHORN *
  • publikováno: * 28. 7. 2021
  • zdroj: * Autorská zpráva

Klíčová slova:

obchod beton

Nabídky práce

Mohlo by vás zajímat

Generální partner
Hlavní partneři