Odhalením cihlových zdí a trámového stropu starého domu vzniklo šarmantní bydlení mladé slovenské rodiny
Architekt Marián Gombarček navrhl kompletní rekonstrukci rodinného domu z 50. let, u které dbal na elegantní propojení původních odhalených konstrukcí s moderními prvky. Vznikl tak vzdušný a atraktivní interiér, kde na vás čeká nejedno překvapení.
EARCH.CZ , 9. 11. 2022
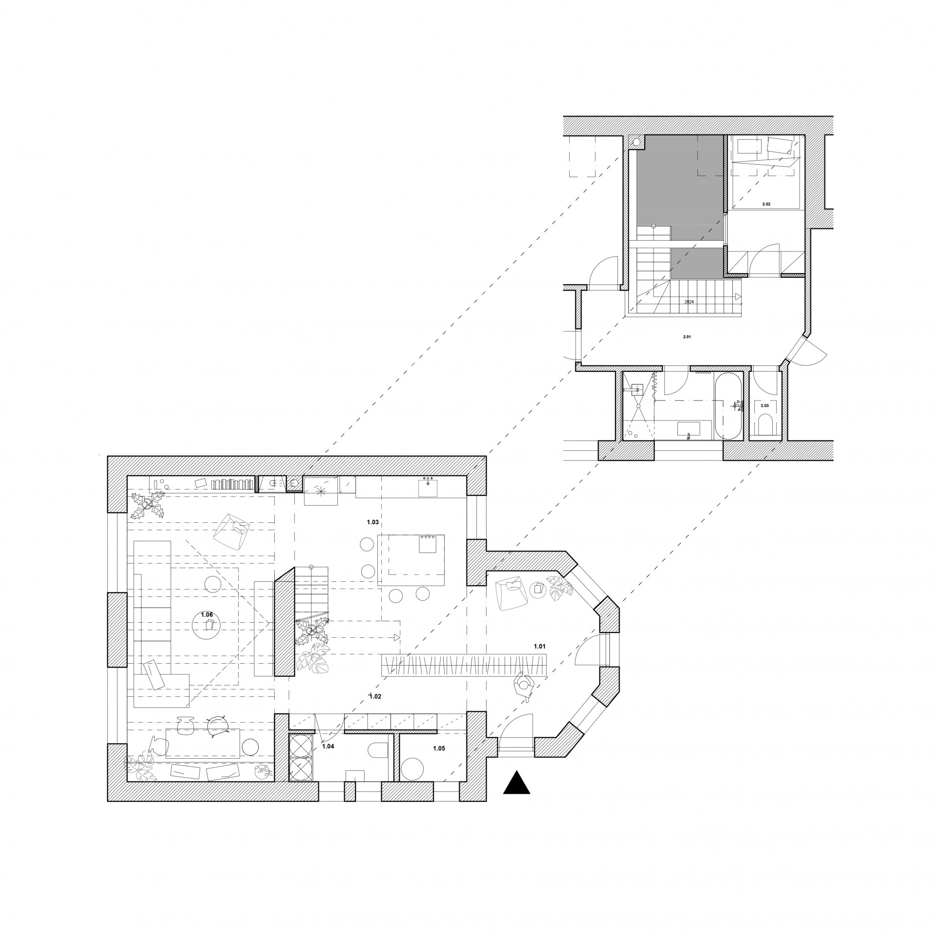
Sedmdesát let starý rodinný dům v Bratislavě se vlivem různých nekoncepčních úprav a dostaveb nacházel v poměrně chaotickém stavu. Úkolem architekta Mariána Gombarčeka proto bylo nově přeorganizovat jeho vnitřní prostory, aby mohly zajistit pohodlné a stylové bydlení pětičlenné rodiny.
Více k tématu
Návštěvníka na první pohled zaujmou přiznané konstrukce domu, které nechal architekt v interiéru naplno vyznít. Cihlové zdi a trámový strop představují kulisy pro designové prvky, se kterými rozehrávají inspirativní dialog.
„Koncept je založen na kontrastu původní odhalené stavby a kompozici vloženého nábytku a prvků dalšího vybavení. Ty v různých formách vstupují do prostoru, propojují ho, přetínají a někdy ignorují a přímo narušují jeho původní uspořádání. Interiér se otevírá ve více směrech, vznikají nové interakce a spojení,“ vysvětluje architekt Marián Gombarček.

Jednoznačným srdcem dvoupodlažního interiéru se stala kuchyně propojená s galerií v patře, ze které se vstupuje do jednotlivých pokojů. Nejvýraznější prvek nového interiéru představuje vložené ocelové schodiště zdůrazněné červeným nátěrem. Celý obytný prostor je uspořádán okolo schodiště a kuchyně, kde se otevírá do galerie. Kuchyň se tak stává bodem, který spojuje jednotlivé prostory v horizontálním i vertikálním směru.

Výsledek je dalším ukázkou toho, jak neotřelé prostory mohou vzniknout díky citlivé práci s původními odhalenými konstrukcemi – ať už jde o zdivo nebo betonové panely. Takovými příklady je třeba rekonstrukce bytu v panelovém domě v Bratislavě nebo velkorysý byt v Kyjevě.
- Ateliér: gmb.
- Autoři: Marián Gombarček
- Země: Slovensko
- Město: Bratislava
- Realizace: 2022