Interiér velkorysého bytu v Kyjevě sází na surové materiály a prolínání starého s novým
Proměna interiéru historického domu pracuje s monochromními surovými materiály, takže vynikají původní prvky a důmyslné detaily pro využití každého zákoutí.
Kristýna Korčáková , 28. 6. 2022
Ukrajinské architektonické studio Balbek má za sebou již několik rekonstrukcí historických budov, ve kterých autoři rádi kombinují staré s novým. Důkazem je také jejich pár let stará realizace interiéru velkorysého bytu v Kyjevě, kde studio také sídlí.
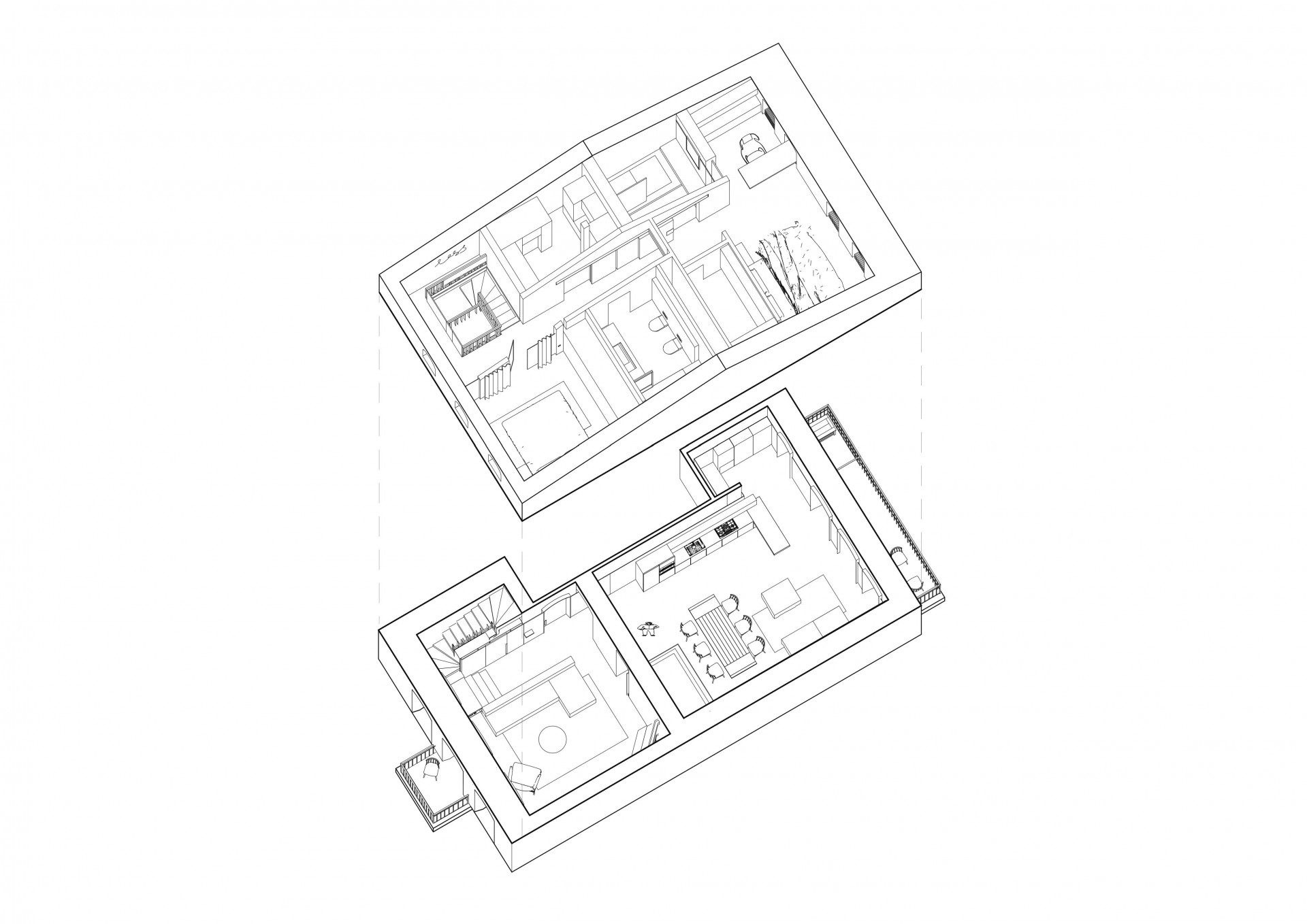
Apartmán pro etablovaného umělce na první pohled prokazuje navázání na historické kořeny obytné budovy novými prvky, které vzdušné prostory doplňují a oživují. Architekti se rozhodli částečně odstranit vnitřní dělící příčky, takže se i díky vysokým stropům celý prostor významně nadechl. Architekti přiznalo původní zděnou konstrukci včetně dřevěných trámů s tím, že všemu původnímu byla věnována maximální pozornost „Povedlo se zachovat 90 procent původní šroubů, které byly očištěny a přelakovány“, zmiňují architekti.
Více k tématu
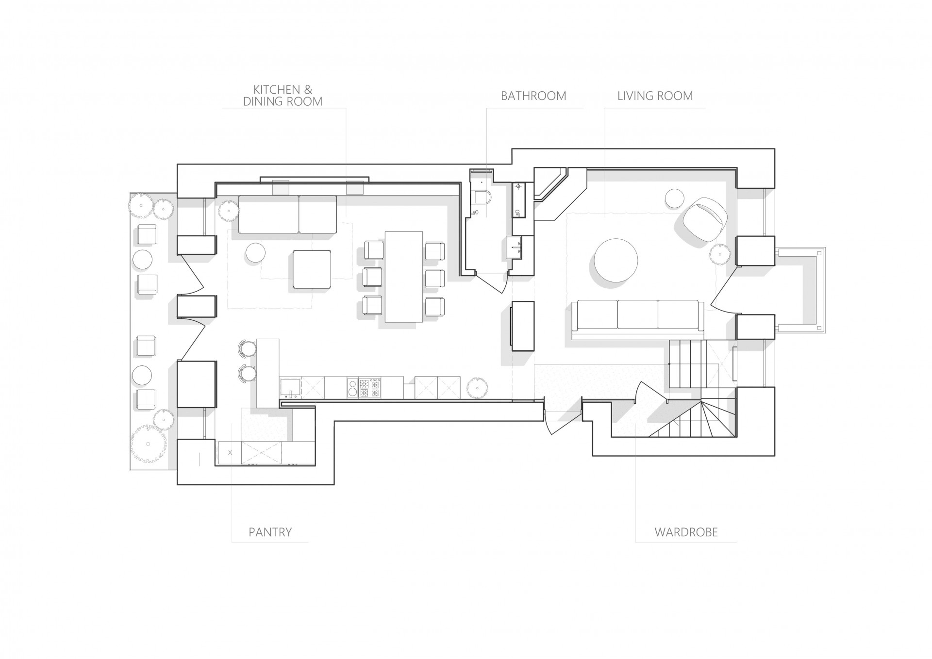
Monochromatický interiér zaujme různými strukturami a surovými materiály. Bílé jednoduché panely asi ze dvou třetin místy kryjí odhalené zdivo a celý prostor tak rozjasňují a zároveň zakrývají elektrické a jiné rozvody. Světlo se dovnitř dostává díky vysokým černým obloukovým oknům, která se inspirují původním provedením. Tloušťku stěn se architekti rozhodli využít a v úrovni schodiště vzniknul výklenek pro posezení s knihou.
V přízemí je vyjma koupelen použita podlaha v dekoru dřeva, která zútulňuje celý prostor a koresponduje s dekorem krytiny stropu. Na obývací pokoj s původním zářivě bílým rohovým krbem přirozeně navazuje jídelní kout s prostorem pro relaxaci. Kuchyňská zóna je otevřená a pracovní deska vede podél zdi.

Druhé patro pod mansardovou střechou esteticky navazuje na přízemí a zahrnuje ložnici s pracovnou, pokoj pro hosty, dvě koupelny, šatnu a provozní místnost. Jednotlivé místnosti opět propojuje dřevěná podlaha, v koupelnách pak převládá kámen a beton. I přesto, že nemají přívod přirozeného světla, nepůsobí díky světlým materiálům a promyšlenému osvětlení nikterak stísněně.
Celý interiér zaujme promyšlenými detaily, které mu dodávají osobitost a dokazují péči architektů.
- Ateliér: Balbek Bureau
- Autoři: Slava Balbek, Yevheniia Dubrovskaya, Artem Beregnoy
- Země: Ukrajina
- Město: Kyjev
- Projekt: 2016
- Realizace: 2018
- Užitná plocha: 180 m²