
S příčkami pryč. V bytě v Bratislavě zůstaly jen nosné zdi, odhalené na cihlu
V tomto bytě se nebydlí, hlavně se v něm pracuje. Je to spíš ateliér, ve kterém se dá přespat. Vybaven je jen tím nejdůležitějším nábytkem a obohacen denním světlem. Toho bylo do prostoru potřeba dostat co nejvíce, a proto místnosti dělí průsvitné prvky.
Adéla Vaculíková , 8. 1. 2024
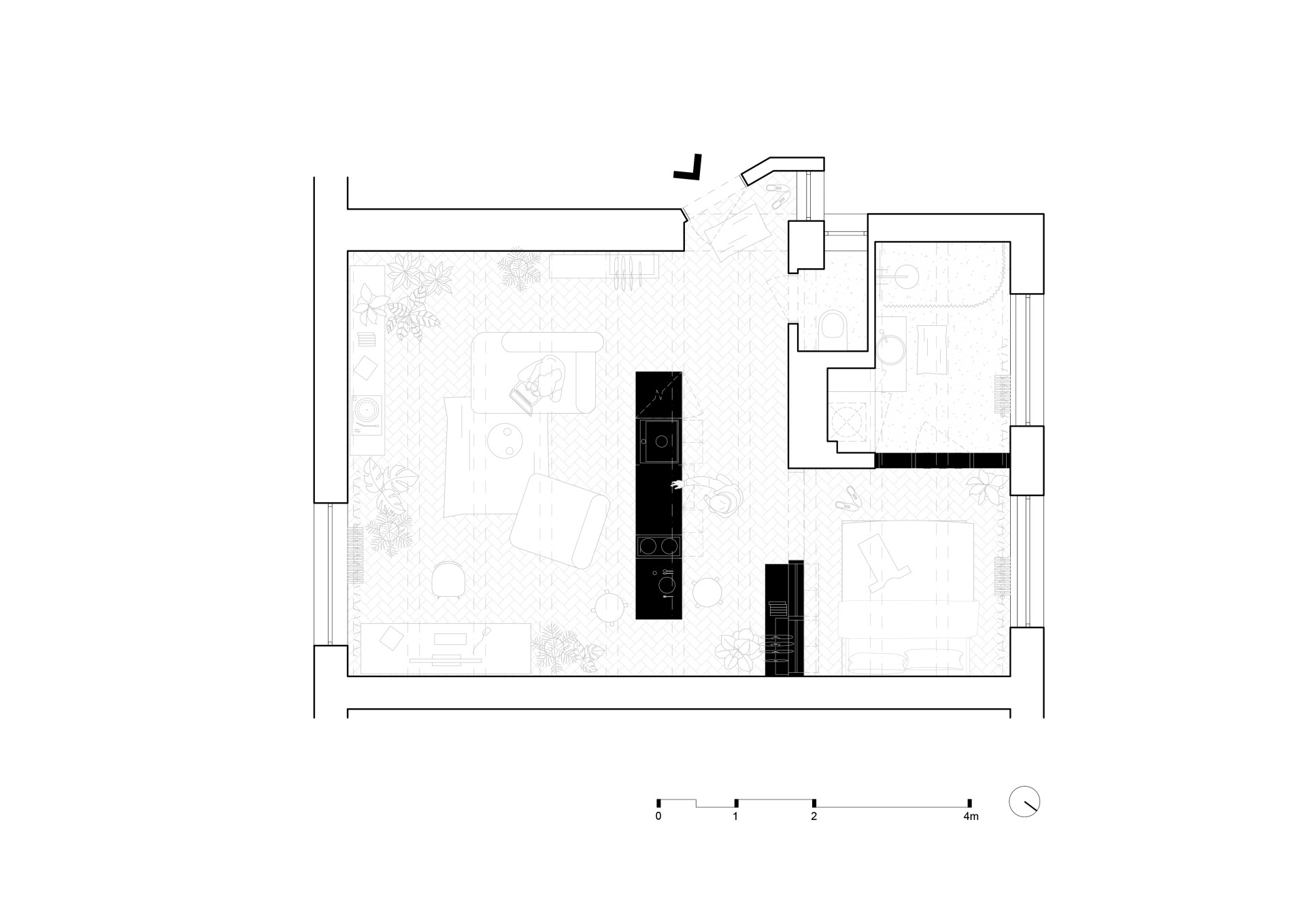
Za vstupem se pohled upře na bílou stěnu, jsou do ní zasazené dveře. Stěna a dveře je klasická kombinace, dají se z ní skládat celé místnosti. V tomto bytě, na Novém Mestě v Bratislavě, to ale tak není. Dveře a bílá stěna jsou zde jen jednou, zbytek je otevřený prostor.
„Hlavním dělícím prvkem je nábytková konstrukce s transparentní výplní, která nahrazuje příčku, čímž vynikne rozměr otevřeného, kontinuálního prostoru,“ říká architekt Marek Abramovič. Takové příčky jsou v bytě dohromady dvě, jedna odděluje hlavní prostor od ložnice a druhá ložnici od koupelny.
Více k tématu
V bytě se plně nebydlí, jde především o prostor pro práci – ateliér, ve kterém se dá pohodlně přespat a strávit několik dní. Dostatek denního světla uvnitř dispozice byl klíčový, a právě proto ustoupily klasické příčky těm průsvitným, složitá dispozice té otevřené. Ačkoliv je v hlavní místnosti okno jen jedno, světla je tady prý dost, prostorem bez překážek se dobře šíří.

Jádrem architektonického konceptu byla práce s konstrukčním řešením bytu. Odhalilo se třeba cihlové zdivo nosné stěny, vidět je taky záklopový strop, který kromě trámů nesou ještě ocelové nosníky. „Ty pro nás byly překvapením, souvisejí s nástavbou, která byla v minulosti na bytovém domě realizována,“ popisuje Marek Abramovič.

Z vybavení je zde jen to nejnutnější, táhlý kuchyňský ostrůvek, nízká skříňka při stěně nebo knihovna. Kombinuje se dřevo a bílá barva. Dřevěná je i podlaha, parkety jsou kladené ve „stromečkovém“ uspořádání, takové se v podobně starých bytovkách vyskytuje často. Podle architekta je pak další klasikou bílý obklad v koupelně. „Staroměstský nádech“ se v bytě spojuje s „důrazem na čistotu nových prvků“, ty musely být provedeny dokonale, jejich ostré hrany zjemňuje obouchané zdivo a minimalistický přístup se stává útulným.
- Autoři: Marek Abramovič
- Ateliér: abrama architekti, s.r.o.
- Země: Slovensko
- Město: Bratislava
- Projekt: 2022
- Realizace: 2022-2023
- Užitná plocha: 47 m2
- Fotograf: Lenka Némethová