
OK PLAN Architects opláštili dvojdům v Pardubicích rezavým plechem
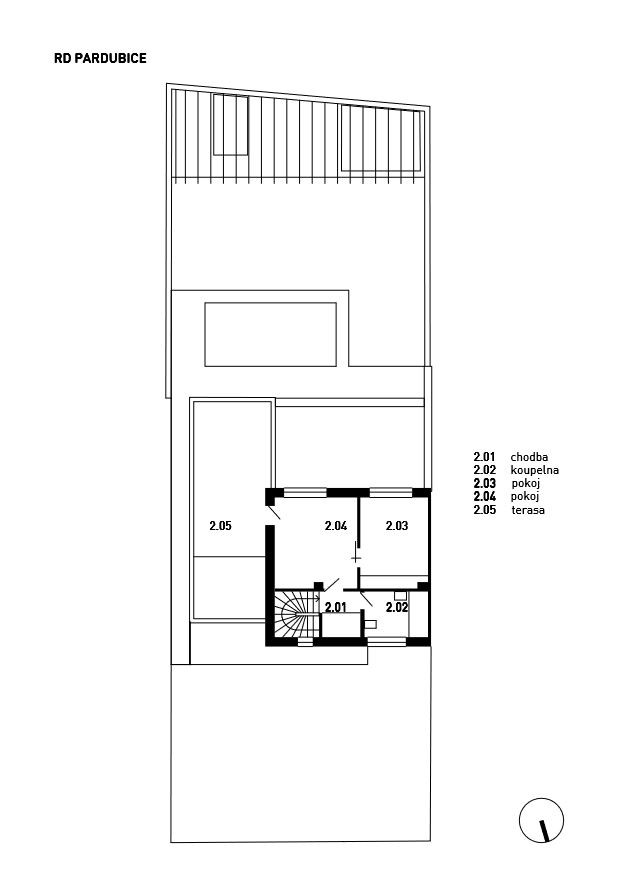
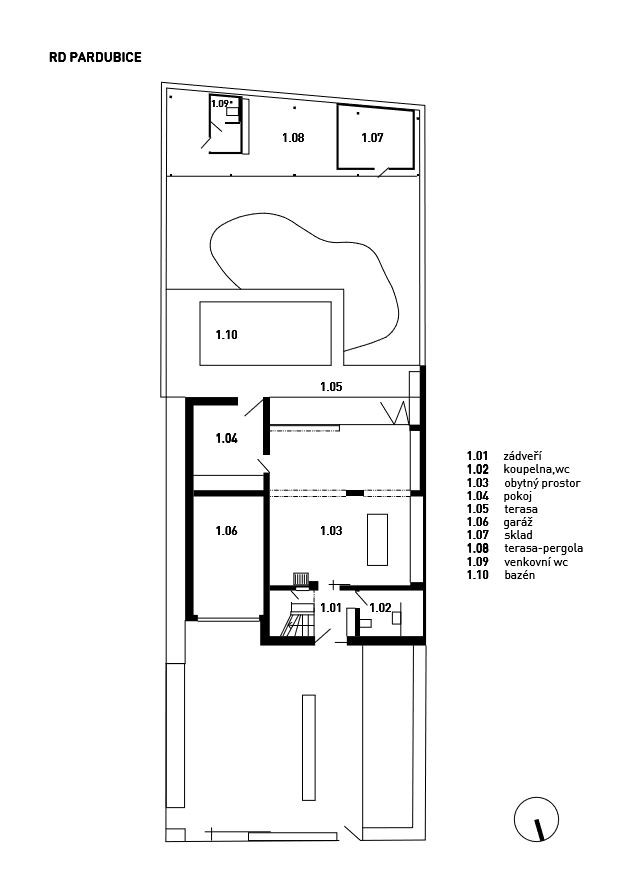
Architektonická kancelář OK PLAN Architects sídlící v Humpolci před pár lety zrekonstruovala rodinný dům v typově rozmanité rezidenční zástavbě Pardubic. Objekt, který je součástí dvojdomu, obalili architekti do výrazného cortenového pláště - původní forma však zůstala zachována a respektuje tvar sousedních domů. Směrem do ulice působí hmota kompaktním a uzavřeným dojmem, na opačné straně se ovšem dům otevírá do zahrady pomocí nově přistavěné jídelny. Rezavý plech corten použitý na fasádě evokuje industriální atmosféru, kterou přenáší několik prvků i do interiéru. Všimnout si můžeme například přiznané ocelové konstrukce v nové části jidélny nebo vlnitého plechu v ložnici. Kancelář OK PLAN má přitom s využitím cortenu bohaté zkušenosti - už v roce 2005 se proslavila svým projektem rodinného domu Plecháč.
OK PLAN ARCHITECTS , 6. 11. 2018
- Autoři: Libor Chovanec, Luděk Rýzner
- Ateliér: OK PLAN ARCHITECTS
- Země: Česká republika
- Generální dodavatel: Stavitelství Drážka s.r.o.
- Město: Pardubice
- Datum projektu: 2011
- Realizace: 2015
- Zastavěná plocha: 142.00m2
- Plocha pozemku: 435.00m2