Pražský viladům od studia SENAA poskytuje svým obyvatelům komfort bydlení jako v rodinném domě
Architekti z brněnského studia SENAA zrealizovali na západním okraji Prahy elegantní viladům s mezonety a apartmány, který respektuje své okolí po urbanistické i architektonické stránce. Přesto jej v zástavbě převážně rodinných domů nepřehlédnete.
EARCH.CZ , 30. 11. 2022 / Advertorial
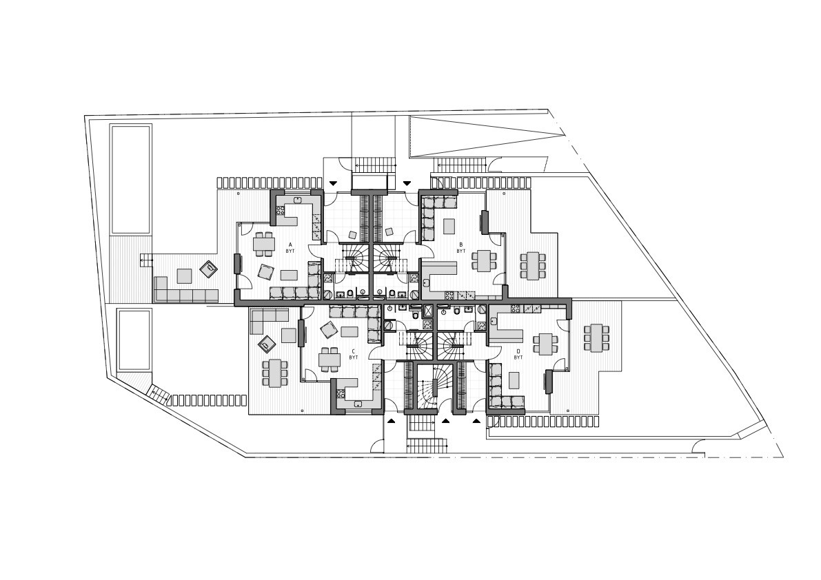
Čtyři mezonetové byty se samostatnými vstupy na vlastní zahrady a dva apartmány. To obsahuje nový pražský Viladům Máj nacházející se v blízkosti lesoparku Brouček a motolského hřbitova. U jeho řešení dbali architekti na vysoký standard bytů a soukromí, takže obyvatelé získávají pocit bydlení v rodinném domě.
Více k tématu
„Prioritou zadání bylo vytvoření příjemného prostředí domu i jednotlivých bytů s vysokým standardem nabízených prostorů a detailů. Důraz je kladen na dosažení velké individuality řešení dispozic, podporování vzájemné nezávislosti, pocitu intimity a soukromí bytů,“ upřesňují autoři návrhu ze studia SENAA.
Jednoznačným cílem architektů bylo stavbu přirozeně začlenit do původní zástavby vilové čtvrti s volně stojícími domy. Viladům proto respektuje urbanistickou strukturu lokality a pomocí detailů i použitých materiálů na okolní domy přímo odkazuje.

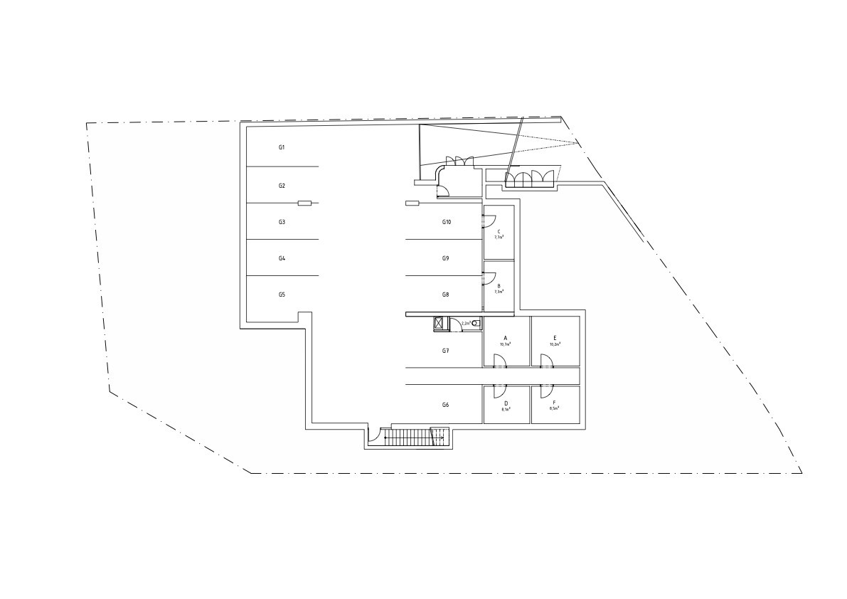
Dvoupodlažní stavba s jedním ustupujícím podlažím zahrnuje až patnáct podzemních parkovacích stání, přičemž se v podzemním patře nachází také celkem šest kójí – jedna pro každý byt. V přízemí najdeme samostatné vstupy do mezonetových bytů, do dvou apartmánů nacházejících se v ustupujícím podlaží vede společný vstup. Zadní byty mají přístup k venkovnímu bazénu na zahradě. Všechny bytové jednotky mají dispozici 4+kk. U mezonetů dochází k převýšení ložnicového patra o půl podlaží a toto uskočení zajišťuje velkorysý převýšený prostor obývacích pokojů.

Konstrukční řešení viladomu pojali architekti jako kombinované, kdy suterén tvoří železobetonová bílá vana a nadzemní podlaží jsou řešeny jako stěnový konstrukční systém se železobetonovými stropními deskami, které jsou v interiérech odhaleny. Pro všechny zděné části byly zvoleny cihly HELUZ. Stěny jsou vyzděny z akustických keramických tvarovek HELUZ FAMILY 30, které se díky svým tepelněizolačním vlastnostem hodí především pro výstavbu pasivních a energeticky úsporných budov. Využity byly také například cihelné bloky AKU zajišťující zvukovou izolaci.
- Ateliér: SENAA
- Autoři: Václav Navrátil, Jan Sedláček, Jan Gadziala, David Korsa
- Země: Česká republika
- Město: Praha
- Realizace: 2021
- Zastavěná plocha: 307 m²
- Plocha pozemku: 951 m²